GM Service Manual Online
For 1990-2009 cars only

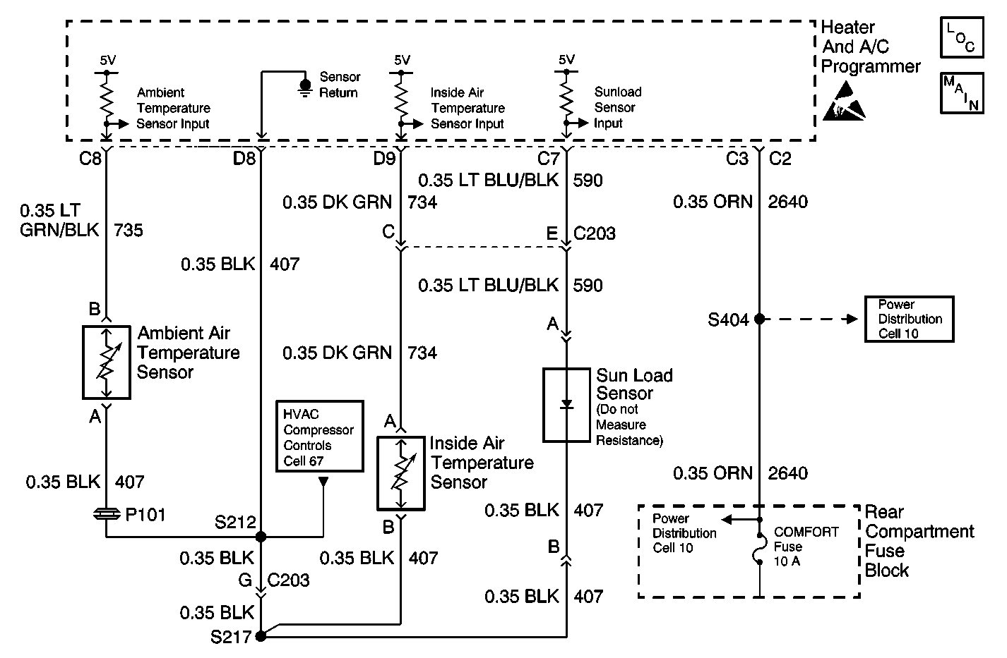
Object Number: 315450  Size: LF
HVAC Components
Cell 68: Temperature Sensors
Handling ESD Sensitive Parts Notice
Cell 10: COMFORT Fuse
Cell 10: COMFORT Fuse
(Cell 67 (2 of 2))

Circuit Description

The inside air temperature sensor is a thermistor that controls the signal voltage to the heater and A/C programmer. The heater and A/C programmer supplies voltage on CKT 734. When the sensor is cold, the following conditions exist:

    • The resistance is high.
    • The heater and A/C programmer reads a high signal voltage at pin D9.

As the sensor warms, the following actions occur:

    • The resistance decreases.
    • The signal voltage is pulled low through the sensor ground, CKT 407.

The signal voltage varies between 5 V (open circuit) and 0 V (short circuit).

Conditions for Running the DTC

    • Turn the ignition to the ON position.
    • The ambient air temperature reads above -29°C (-20°F).
    • DTCs B1310 or B1311 are not set.

Action Taken When the DTC Sets

A substitute temperature reading of 24°C (75°F) is used in order to continue the operation. As a result, the internal temperature may be overly warm or overly cold.

Notes On Intermittents

If an intermittent DTC B1316 is set, use a Scan Tool in order to select the following settings:

    • Data list
    • Open/shorts data
    • Observe the reading

Manipulate the wiring while observing the Scan Tool . If a failure is induced, the reading will jump. Inspect for the following conditions:

    • A poor terminal contact
    • An obstructed or defective sensor

Test Description

  1. Perform the Diagnostic System Check before continuing with the diagnosis of this DTC.

  1. The Scan Tool displays the inside air temperature. Jumping the harness connector determines if the wiring or the sensor is the cause.

Step

Action

Value(s)

Yes

No

1

Did you perform the diagnostic system check?

--

Go to Step 2

Go to Diagnostic System Check

2

  1. Turn the ignition to the ON position.
  2. Connect the Scan Tool .
  3. Disconnect the sensor and attach a jumper between terminal B and terminal A.

Did the DTC change from B1316 to B1317?

--

Go to Step 4

Go to Step 3

3

Measure the voltage at terminal B.

Is the measured voltage approximately equal to the specified value?

5  V

Go to Step 6

Go to Step 5

4

  1. Replace the sensor. Refer to Inside Air Temperature Sensor Replacement
  2. Using the Scan Tool clear the codes.

Is the repair complete?

--

System OK

--

5

Measure the voltage at terminal D9 of the heater and A/C programmer.

Is the measured voltage approximately equal to the specified value?

5  V

Go to Step 8

Go to Step 7

6

  1. Repair the open in CKT 407 between terminal A and S217.
  2. Using the Scan Tool clear the code.

Is the repair complete?

--

Go to Diagnostic System Check

--

7

  1. Inspect the terminal contact.
  2. If OK, replace the heater and A/C programmer. Refer to Programmer Replacement
  3. Using the Scan Tool clear the code.

Is the repair complete?

--

Go to Diagnostic System Check

--

8

Measure the voltage at cavity C of C203.

Is the measured voltage approximately equal to the specified value?

5  V

Go to Step 10

Go to Step 9

9

  1. Repair the open in CKT 734 between the heater and A/C programmer and C203.
  2. Using the Scan Tool clear the code.

Is the repair complete?

--

Go to Diagnostic System Check

--

10

  1. Repair the open in CKT 734 between C203 and the sensor.
  2. Using the Scan Tool clear the code.

Is the repair complete?

--

Go to Diagnostic System Check

--