GM Service Manual Online
For 1990-2009 cars only
Makes
🢒
Cadillac
🢒
2001
🢒
Eldorado
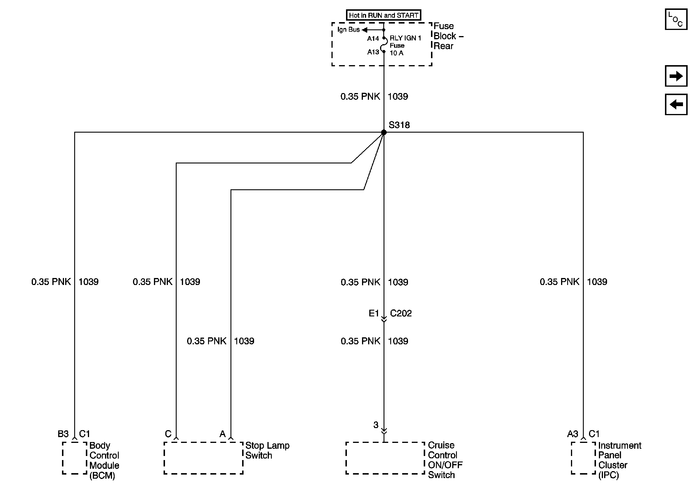
🢒 RLY IGN 1 Fuse
RLY IGN 1 Fuse
RLY IGN 1 Fuse
Master Electrical Component List
CONSOLE Fuses
SIR, RSS, and TURN Fuses