GM Service Manual Online
For 1990-2009 cars only
Makes
🢒
Cadillac
🢒
2006
🢒
Escalade - 2WD
🢒
Body
🢒
Wiring Systems
🢒 Fog Lights Schematics
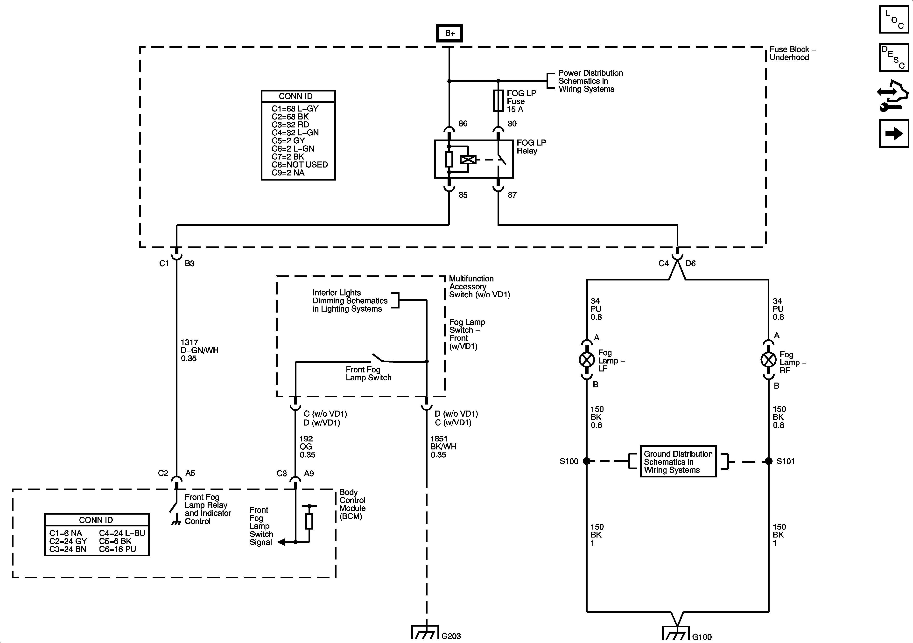
Figure
1:
Front
Master Electrical Component List
Exterior Lighting Systems Description and Operation
Control Module References
Rear - w/ VD1
B+ Bus - 1 of 2
G100, G105 2 of 4
G100, G105 1 of 4
G100, G105 1 of 4
G203 1 of 3
I/P Dimming Supply Voltage - 4 of 8
I/P Dimming Supply Voltage - 6 of 8
Dimming Control and LED Dimming Supply Voltage - 2 of 2
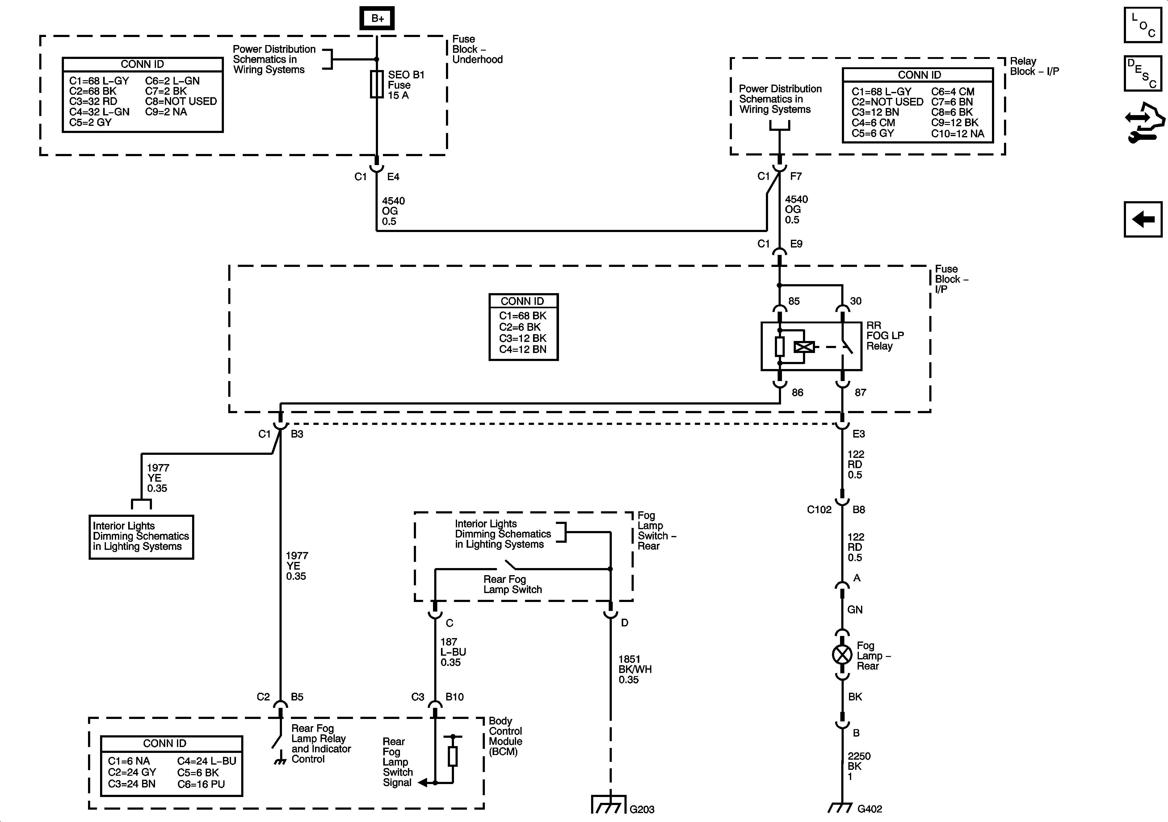
Figure
2:
Rear - w/VD1
Master Electrical Component List
Exterior Lighting Systems Description and Operation
Control Module References
Front
B+ Bus - 1 of 2
IPC/DIC, LH HID, RH HID, SEO B1, SEO B2, and TBC BATT Fuses
G203 2 of 3
I/P Dimming Supply Voltage - 3 of 8
Dimming Control and LED Dimming Supply Voltage - 1 of 2