GM Service Manual Online
For 1990-2009 cars only
Makes
🢒
Cadillac
🢒
2008
🢒
SLS
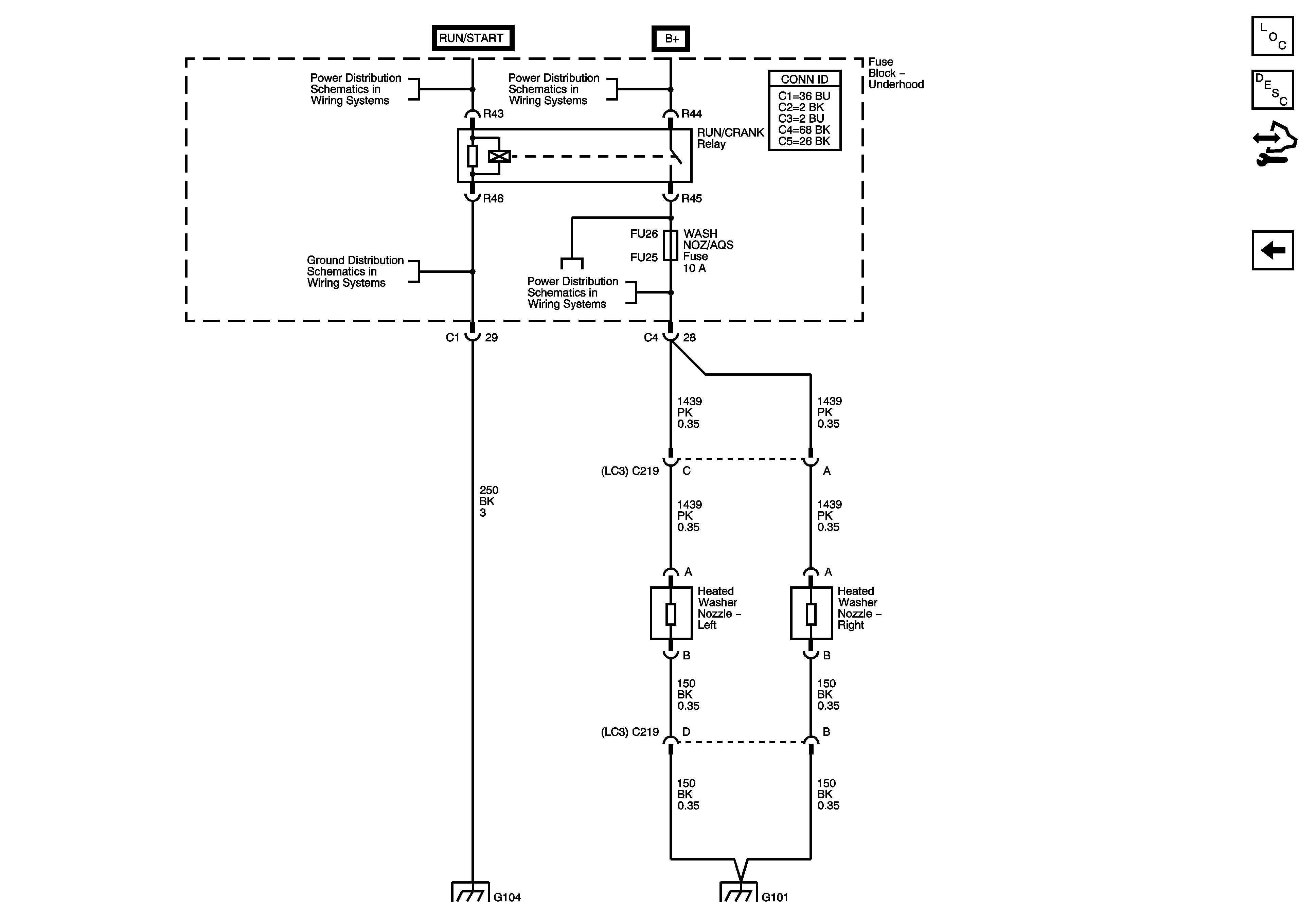
🢒 Heated Washer Nozzles w/ XA7
Heated Washer Nozzles w/ XA7
Heated Washer Nozzles w/XA7
Master Electrical Component List
Wiper/Washer System Description and Operation (STS)
Control Module References
Wiper/Washer Schematics
Rain Sensor, Windshield Washer Pump and Headlamp Washer Pump w/ TT6/TT7/TT8
Fuse Block Right Rear: LT Turn Signal, RIM(1), Rear Fog Lamp, FT Passenger Door Module, Heated Steering Column, IGN 1, RIM(2) and Airbag Fuses; Rear Fog Lamp and IGN 1 Relays
Fuse Block Underhood Bussing
G104 (1 of 2)
Fuse Block - Underhood: Starter IGN 1 Relays; Starter, Starter Relay, CCP TCM/IPM/ECM, MAF, ABS and Washer Nozzle/ACC Fuses
G104 (1 of 2)
G101