GM Service Manual Online
For 1990-2009 cars only
Makes
🢒
Cadillac
🢒
2004
🢒
SRX
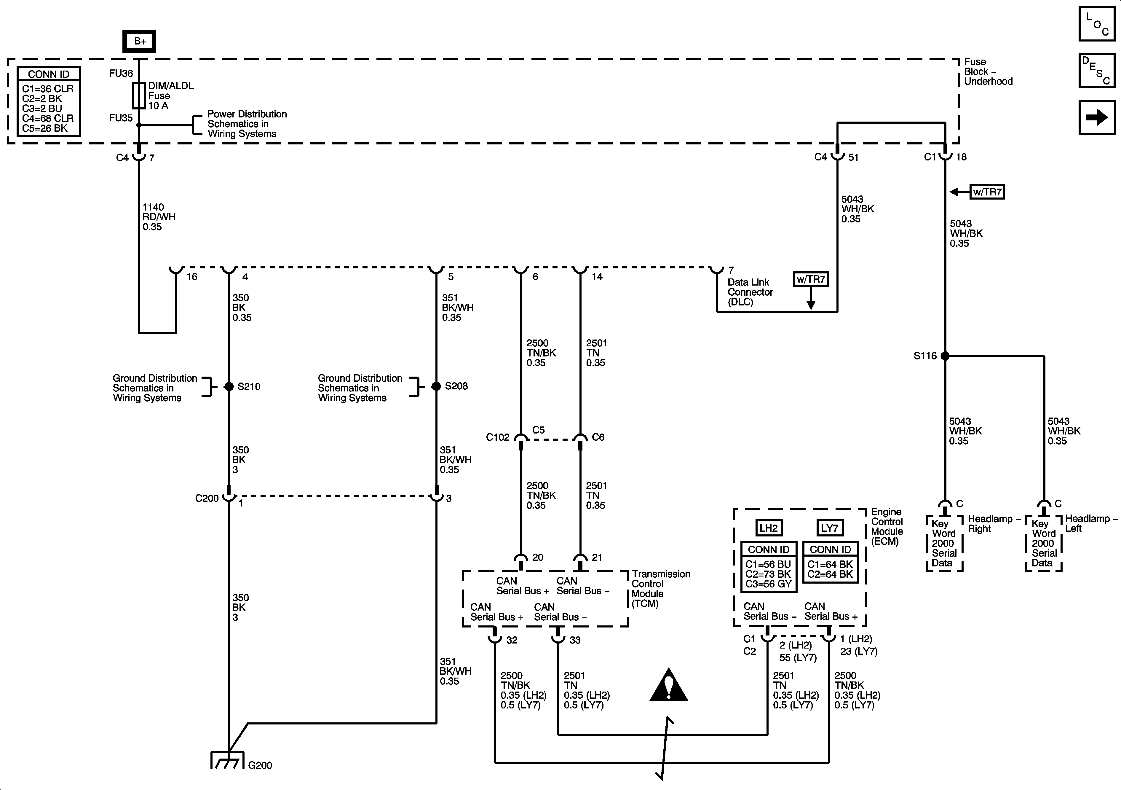
🢒 Power, Ground, GMLAN, and Key Word 2000 Serial Data
Power, Ground, GMLAN, and Key Word 2000 Serial Data
Power, Ground, GMLAN, and Key Word 2000 Serial Data
Master Electrical Component List
Data Link Communications Description and Operation
Class 2 Serial Data - 1 of 2
CCP (B+), DIM/ALDL, EBCM (B+), ECM/TCM, FLASHER, and VOLT CHECK Fuses
G200
G200
G200
Data Link Communications Schematic Icons