GM Service Manual Online
For 1990-2009 cars only
Makes
🢒
Cadillac
🢒
2004
🢒
SRX
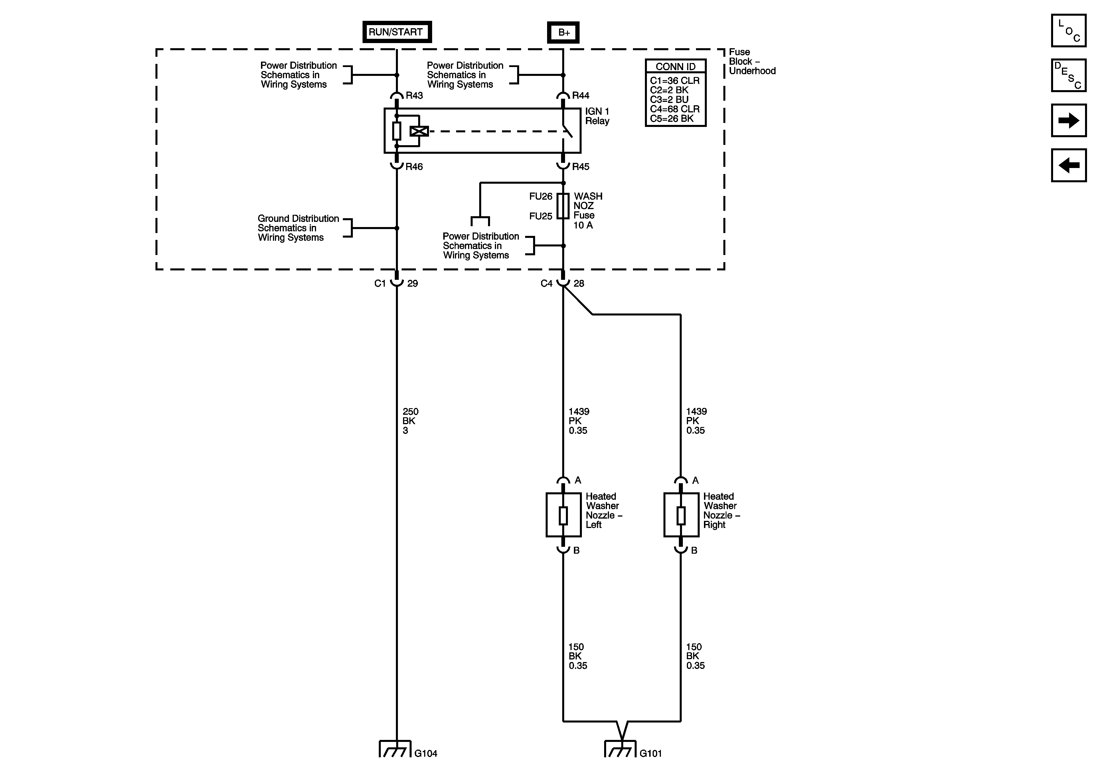
🢒 Heated Washer Nozzles (XA7)
Heated Washer Nozzles (XA7)
Heated Washer Nozzles (XA7)
Master Electrical Component List
Wiper/Washer System Description and Operation
Rear Wiper/Washer
Front Washer (w/o CE4)
RIM and THEFT Fuses and Ignition Switch - 2 of 2
Fuse Block - Underhood B+ Bus Schematic
G104
ABS, STARTER RLY, STRG CTLS, TCM/IPC, and WASH NOZ Fuses
G104
G101