GM Service Manual Online
For 1990-2009 cars only
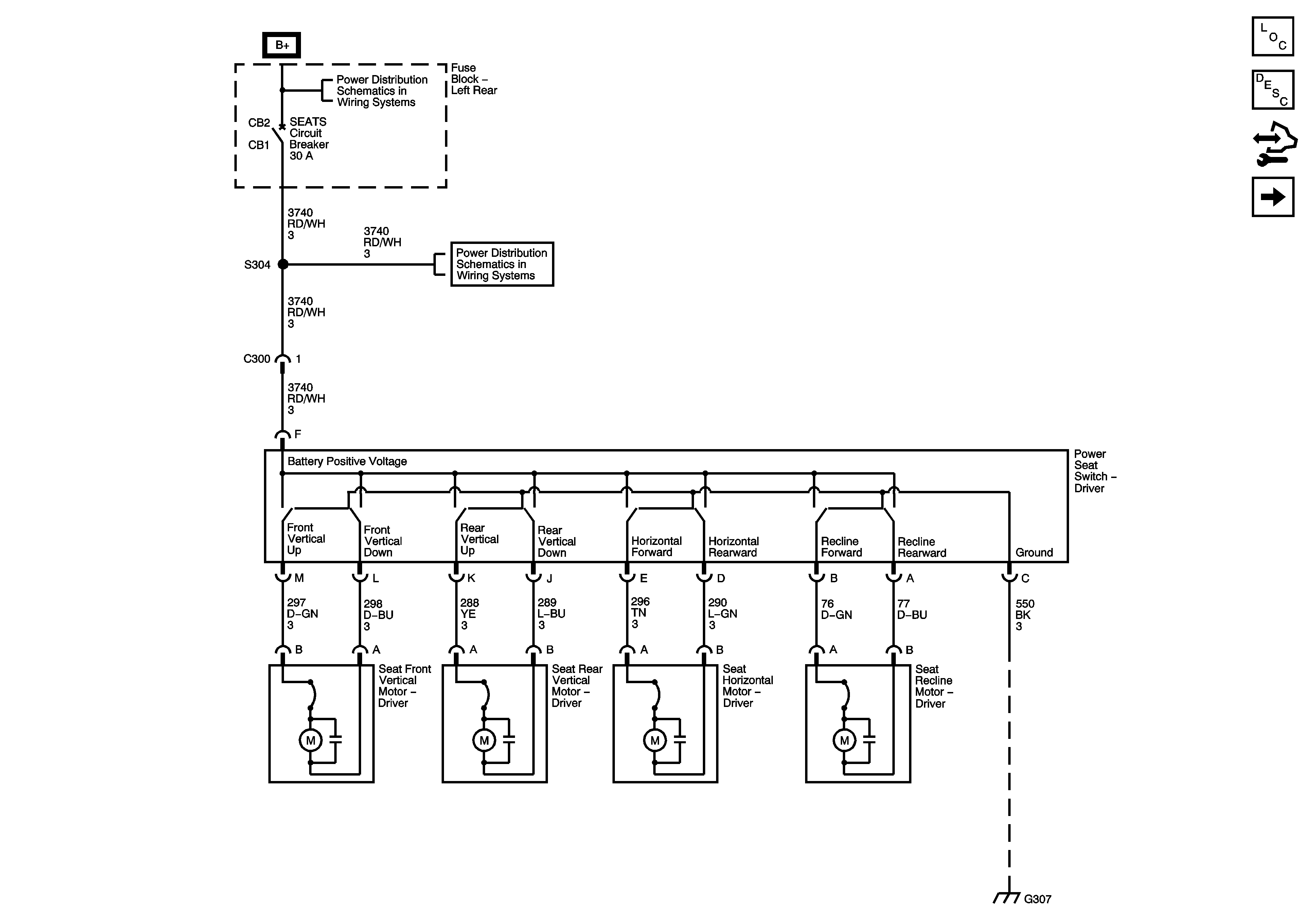
Figure 1:

Power Seat (w/o A45)


Object Number: 1452895  Size: FS
Master Electrical Component List
Power Seats System Description and Operation Front Seat
Control Module References
Heated Seat (KA1)
Fuse Block - Left Rear B+ Bus
FFSM, FFS SW, and THEFT Fuses and SEAT Circuit Breaker
G307
Figure 2:

Heated Seat (KA1)


Object Number: 1452896  Size: FS
Master Electrical Component List
Heated Seats Description and Operation
Control Module References
Memory Seat Module Power, Ground and Seat Adjuster Switches (A45)
Power Seat (w/o A45)
IGN SW Fuse and Ignition Switch - 1 of 2
Fuse Block - Left Rear B+ Bus
AIR BAG, CCP (RUN), EBCM (RUN), HDLP LEVELING, IGN 1, and IGN 3 Fuses
AIR BAG, CCP (RUN), EBCM (RUN), HDLP LEVELING, IGN 1, and IGN 3 Fuses
Class 2 Serial Data - 2 of 2
Class 2 Serial Data - 1 of 2
G402 - 1 of 2
G307
Figure 3:

Memory Seat Module Power,Ground, and Seat Adjuster Switches (A45)


Object Number: 1452898  Size: FS
Master Electrical Component List
Memory Seats Description and Operation
Control Module References
Memory Seat Controls (A45)
Heated Seat (KA1)
Fuse Block - Left Rear B+ Bus
Fuse Block - Left Rear B+ Bus
FFSM, FFS SW, and THEFT Fuses and SEAT Circuit Breaker
Adjustable Pedals Schematic
G307
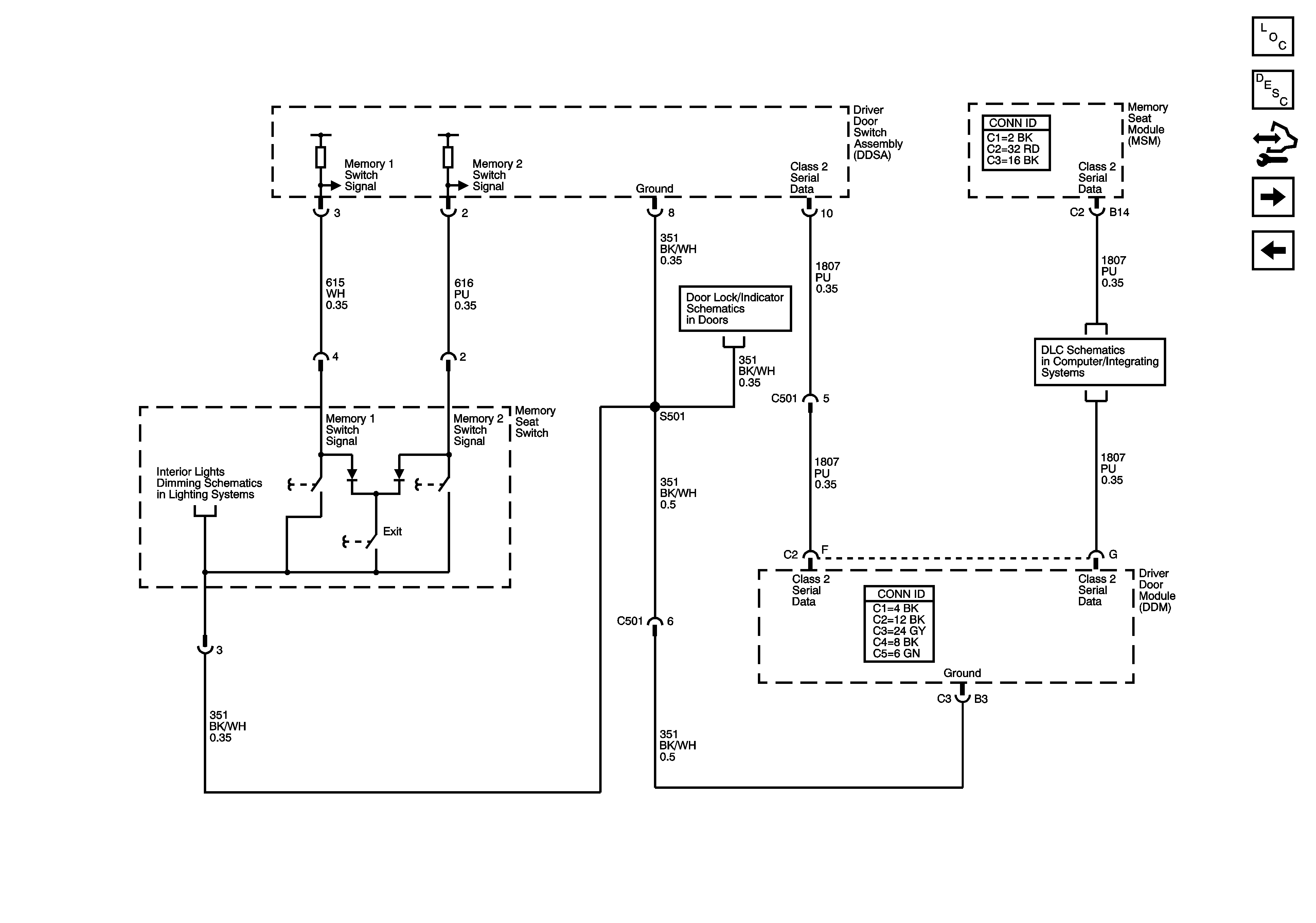
Figure 4:

Memory Seat Controls (A45)


Object Number: 1452899  Size: FS
Master Electrical Component List
Memory Seats Description and Operation
Control Module References
Memory Seat Position Sensors and Motors (A45)
Memory Seat Module Power, Ground and Seat Adjuster Switches (A45)
Dimming Lamps - 2 of 2
Driver Door Lock
Class 2 Serial Data - 1 of 2
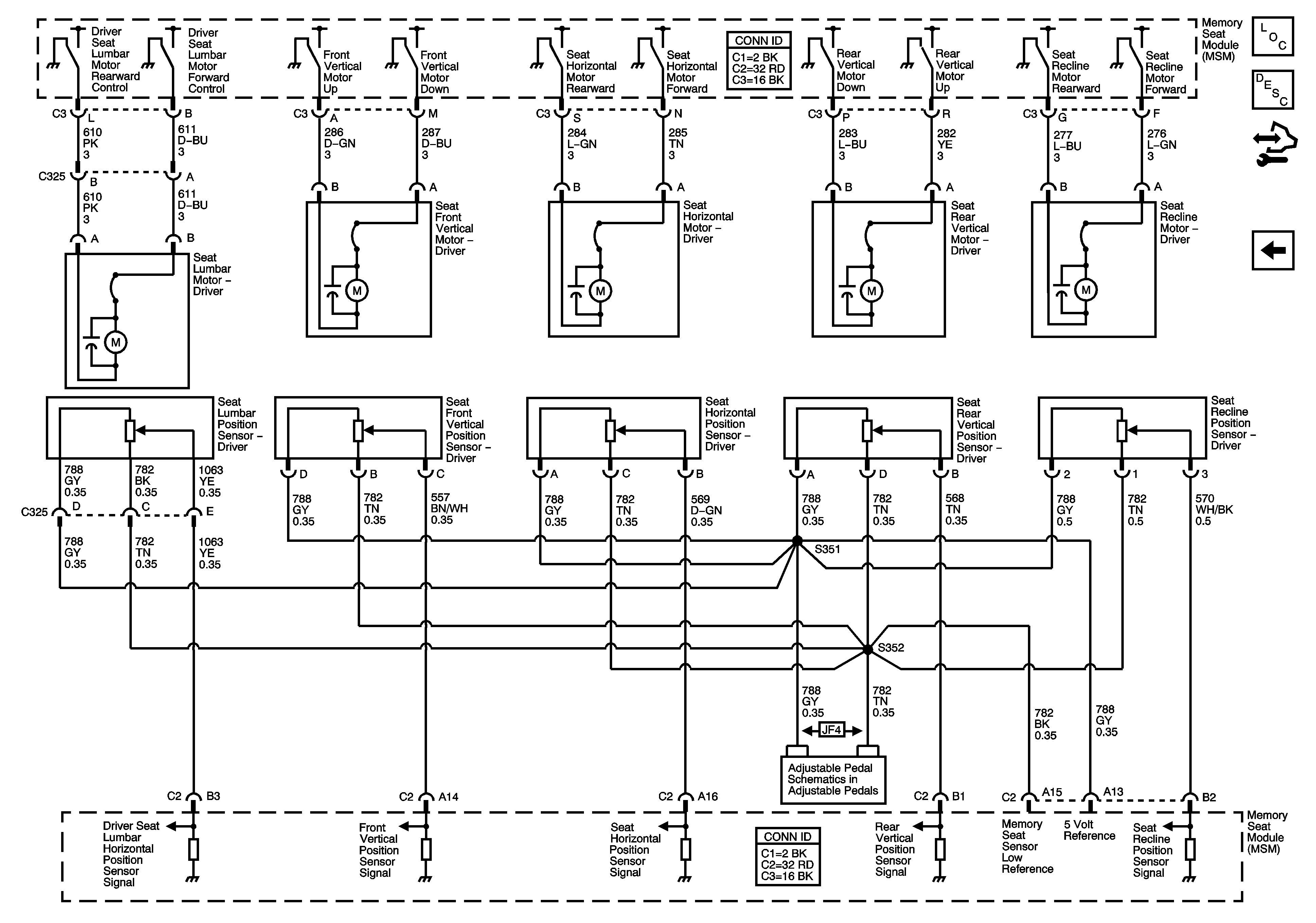
Figure 5:

Memory Seat Position Sensors and Motors (A45)


Object Number: 1452903  Size: FS
Master Electrical Component List
Memory Seats Description and Operation
Control Module References
Memory Seat Controls (A45)
Adjustable Pedals Schematic