GM Service Manual Online
For 1990-2009 cars only
Makes
🢒
Cadillac
🢒
2006
🢒
SRX
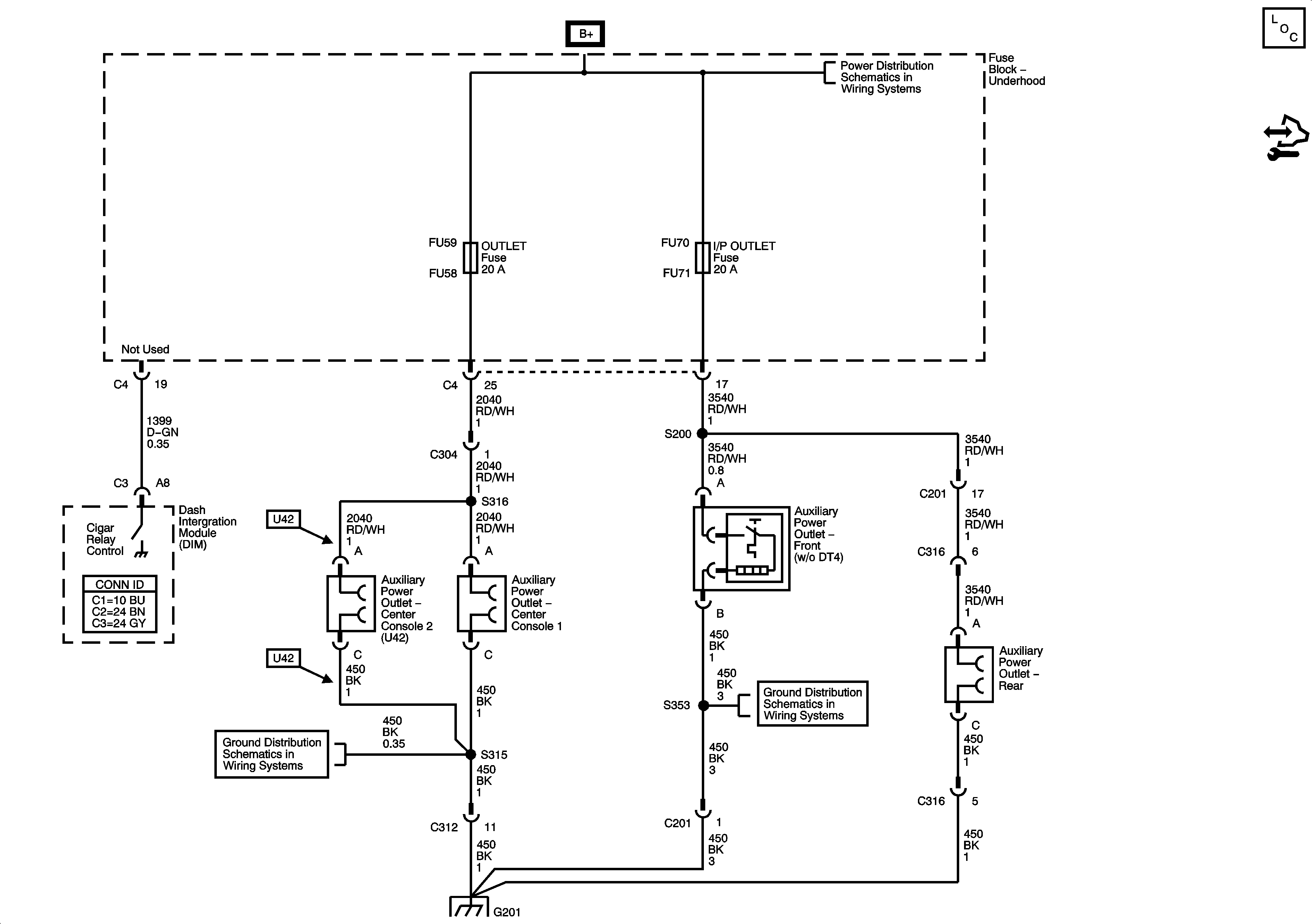
🢒 Cigar Lighter and Auxiliary Outlet Schematics
Cigar Lighter and Auxiliary Outlet Schematics
Master Electrical Component List
Control Module References
Fuse Block Underhood B+ Bus
G201
G201
G201