GM Service Manual Online
For 1990-2009 cars only
Makes
🢒
Cadillac
🢒
2007
🢒
SRX
🢒 DRL Domestic
DRL Domestic
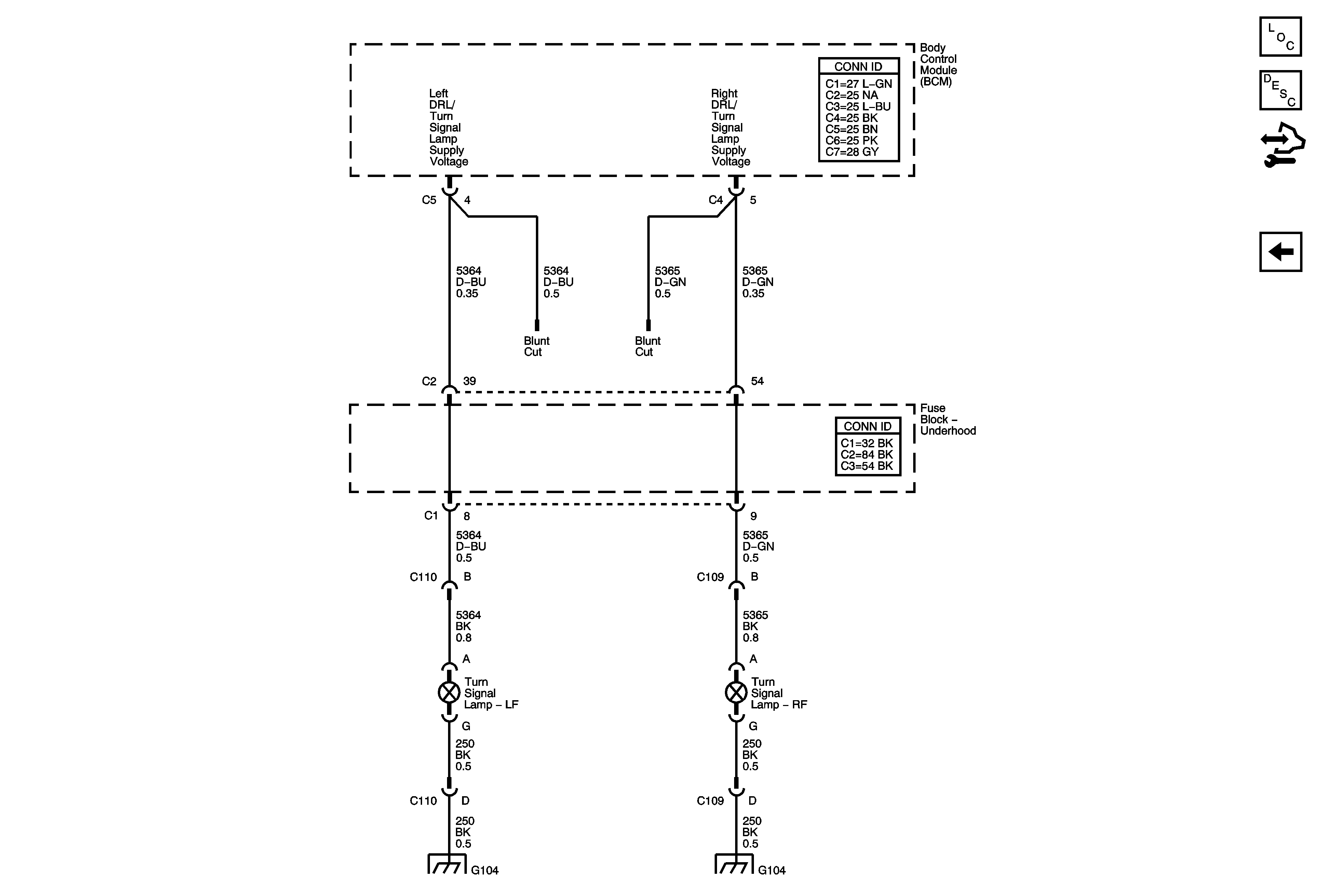
Daytime Running Lamps (DRL) (Domestic)
Master Electrical Component List
Exterior Lighting Systems Description and Operation
Control Module References
Headlamps (w/HID)
G104 (2 of 2)
G104 (2 of 2)