GM Service Manual Online
For 1990-2009 cars only
Makes
🢒
Cadillac
🢒
2006
🢒
STS
🢒
Driveline/Axle
🢒
Rear Drive Axle
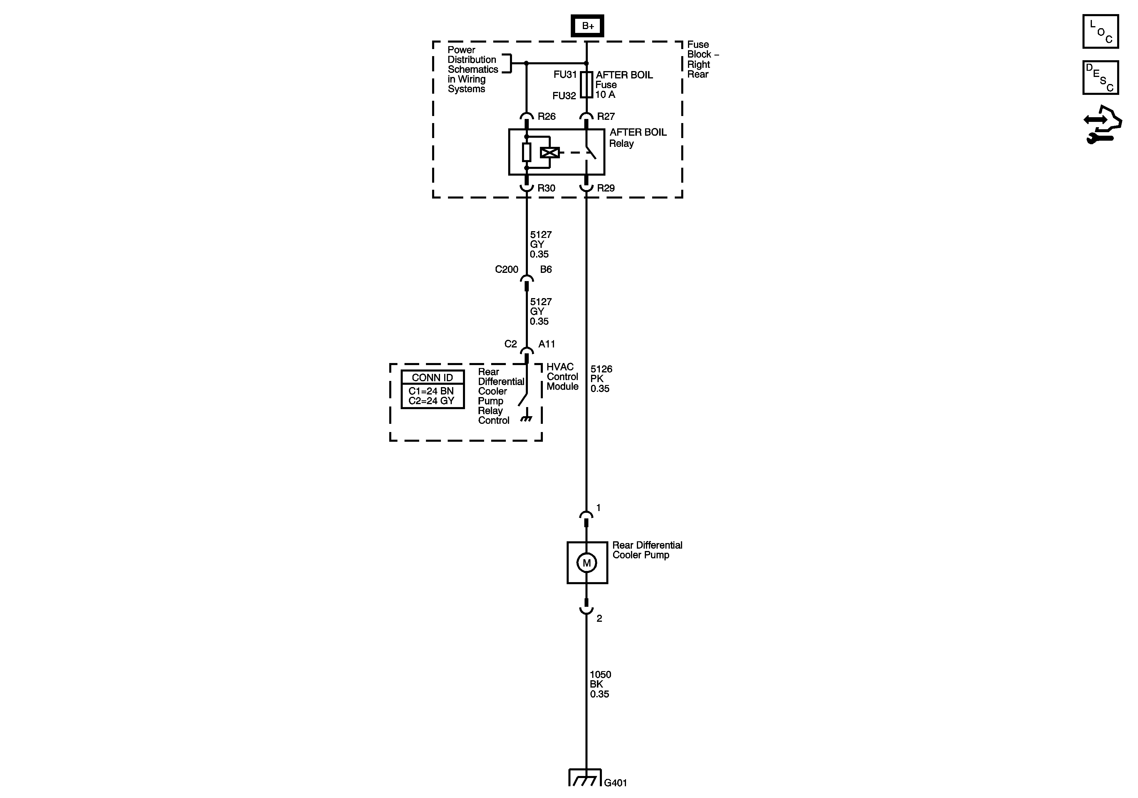
🢒 Rear Axle Schematics
Master Electrical Component List
Rear Drive Axle Description and Operation
Control Module References
Fuse Block Right Rear Bussing
G401 (2 of 2)