GM Service Manual Online
For 1990-2009 cars only
Makes
🢒
Cadillac
🢒
2007
🢒
STS
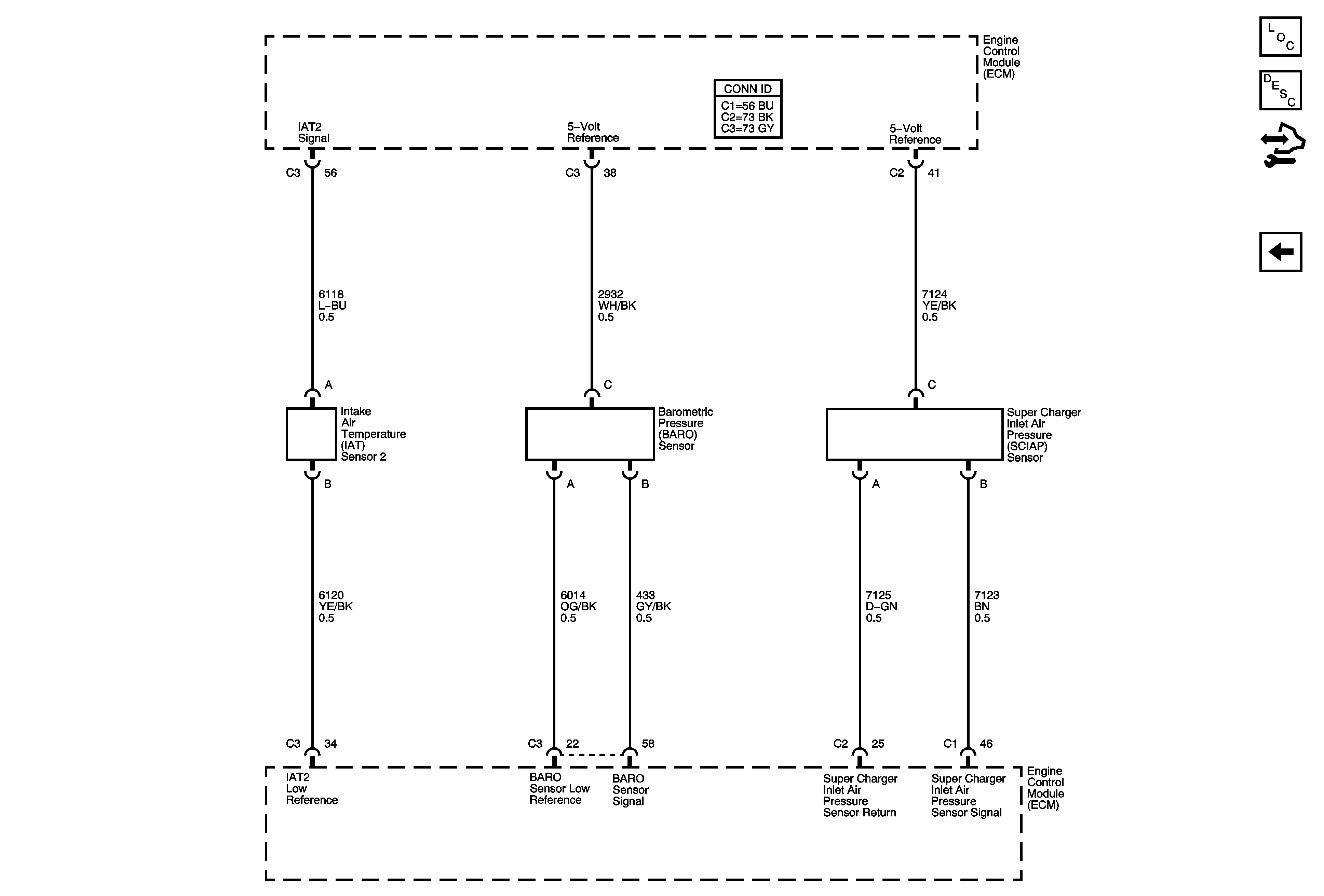
🢒 Engine Data Sensors - IAT2, BARO, SCIAP
Engine Data Sensors - IAT2, BARO, SCIAP
Engine Data Sensors -- IAT 2, BARO, SCIAP
Master Electrical Component List
Engine Control Module Description
Control Module References
Charge Air Cooler (CAC) Coolant Pump