GM Service Manual Online
For 1990-2009 cars only
Makes
🢒
Cadillac
🢒
2007
🢒
STS
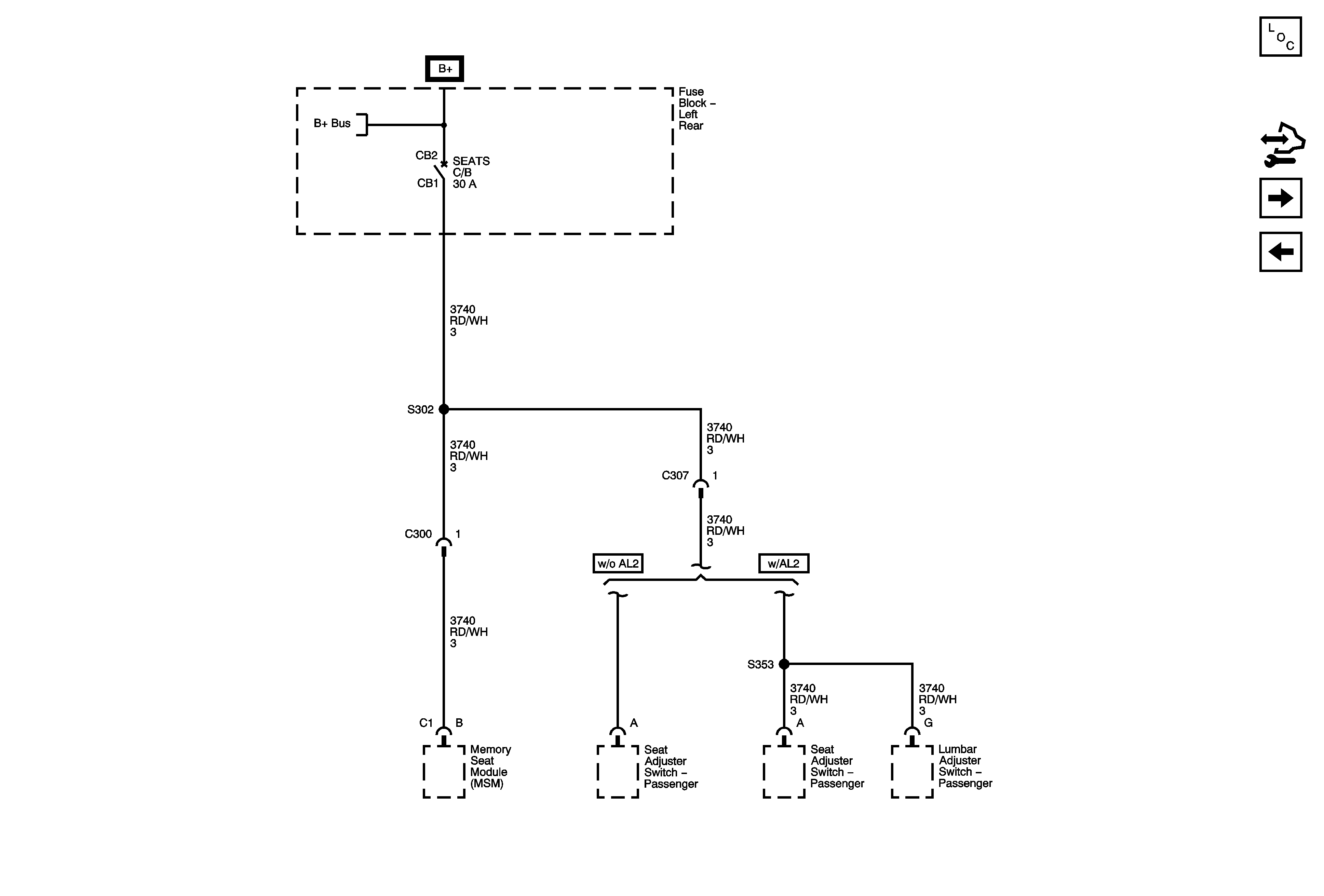
🢒 Fuse Block - Left Rear: Seats Circuit Breaker
Fuse Block - Left Rear: Seats Circuit Breaker
Fuse Block - Left Rear: Seats Circuit Breaker
Master Electrical Component List
Control Module References
Fuse Block - Left Rear - Ign 3 Relay, Ign 3, Rear Heated Seat, Memory, Airbag and Rear Shelf Speaker Fuses
Fuse Block - Left Rear: TV/VICS, ELC SOL, ESC Module, DVR DR Module, Rear Door Module, Theft Shifter and Amp Fuses
Fuse Block - Left Rear Bussing