GM Service Manual Online
For 1990-2009 cars only
Makes
🢒
Cadillac
🢒
2009
🢒
STS
🢒
Power and Signal Distribution
🢒
Data Communications
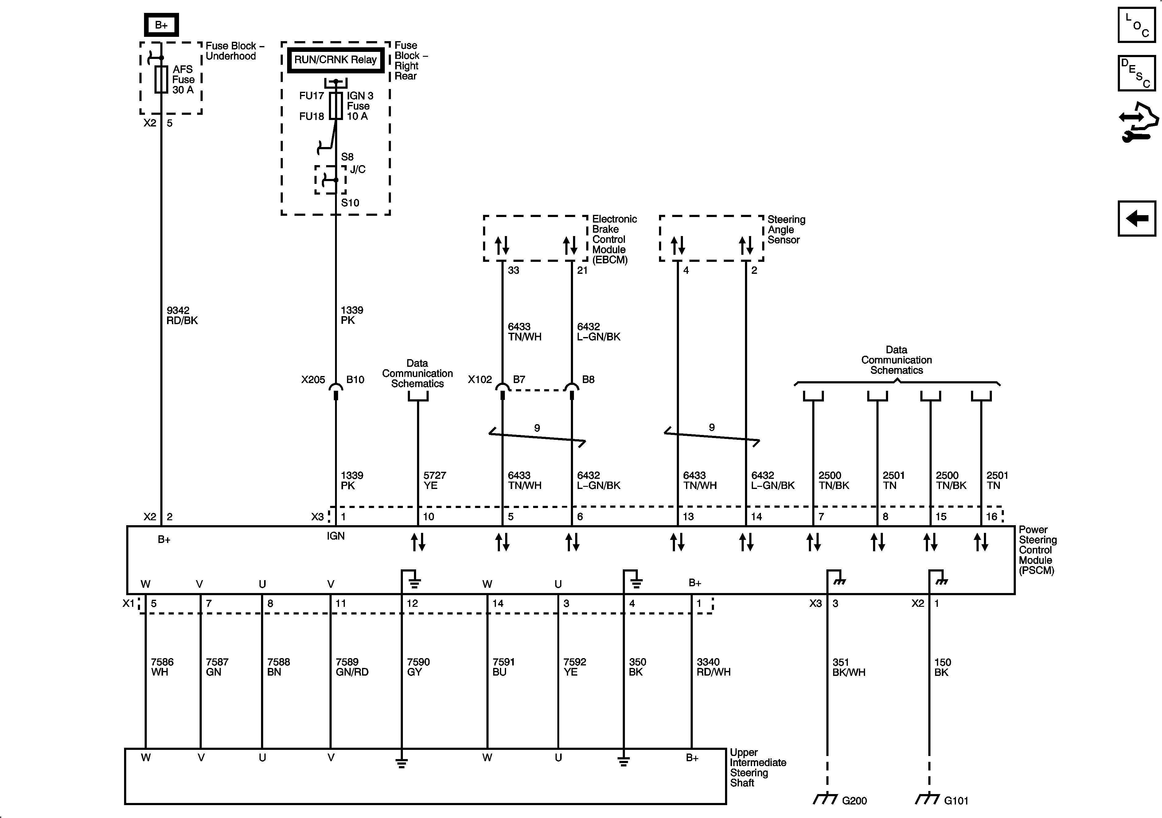
🢒 Power Steering Schematics
Figure
1:
Variable Effort
Figure
2:
Active Front Steering Module and Actuator - JL7