GM Service Manual Online
For 1990-2009 cars only
Makes
🢒
Cadillac
🢒
2009
🢒
STS
🢒
Seats
🢒
Power Seats
🢒 Passenger Seat Schematics
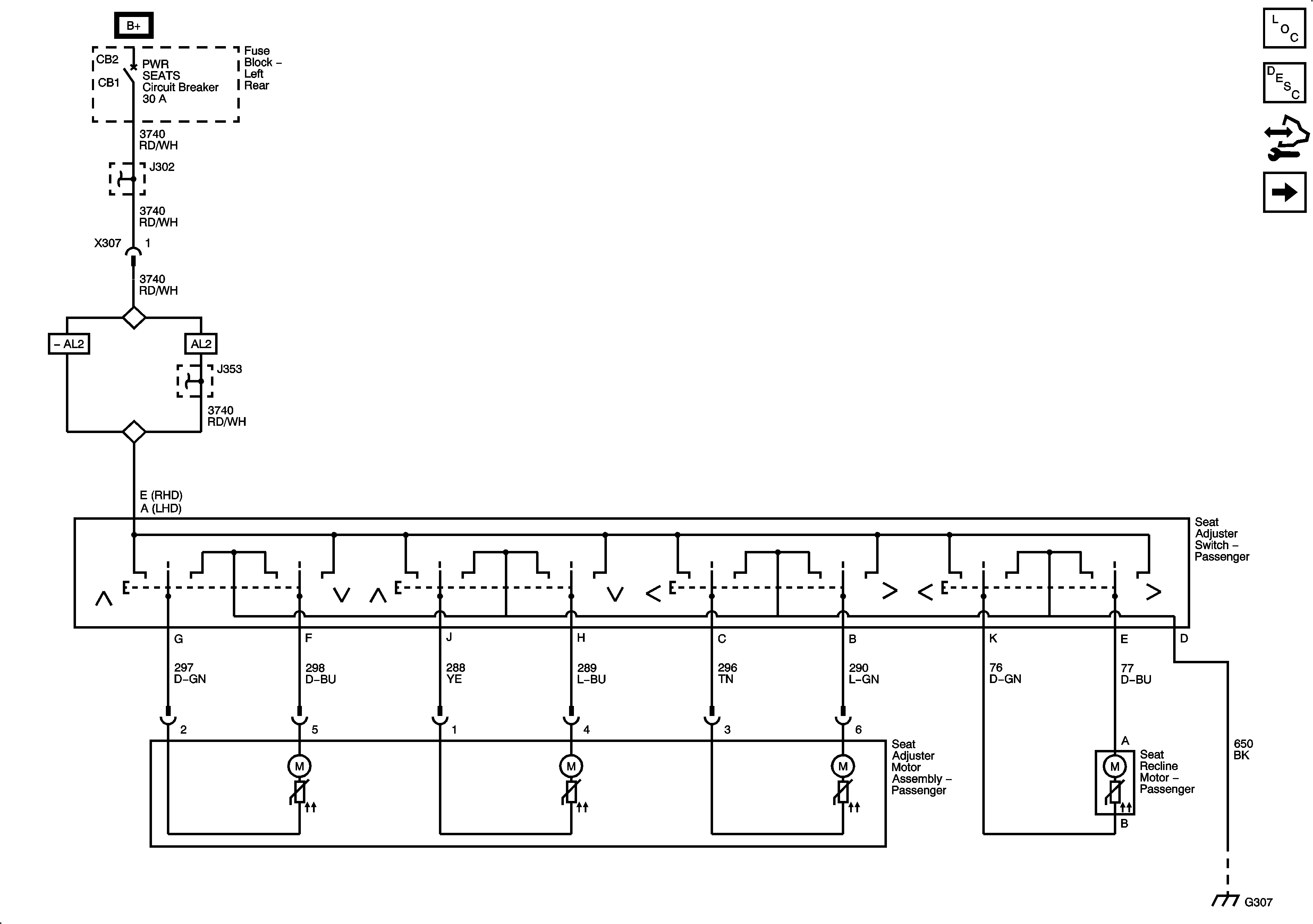
Figure
1:
Power Seat
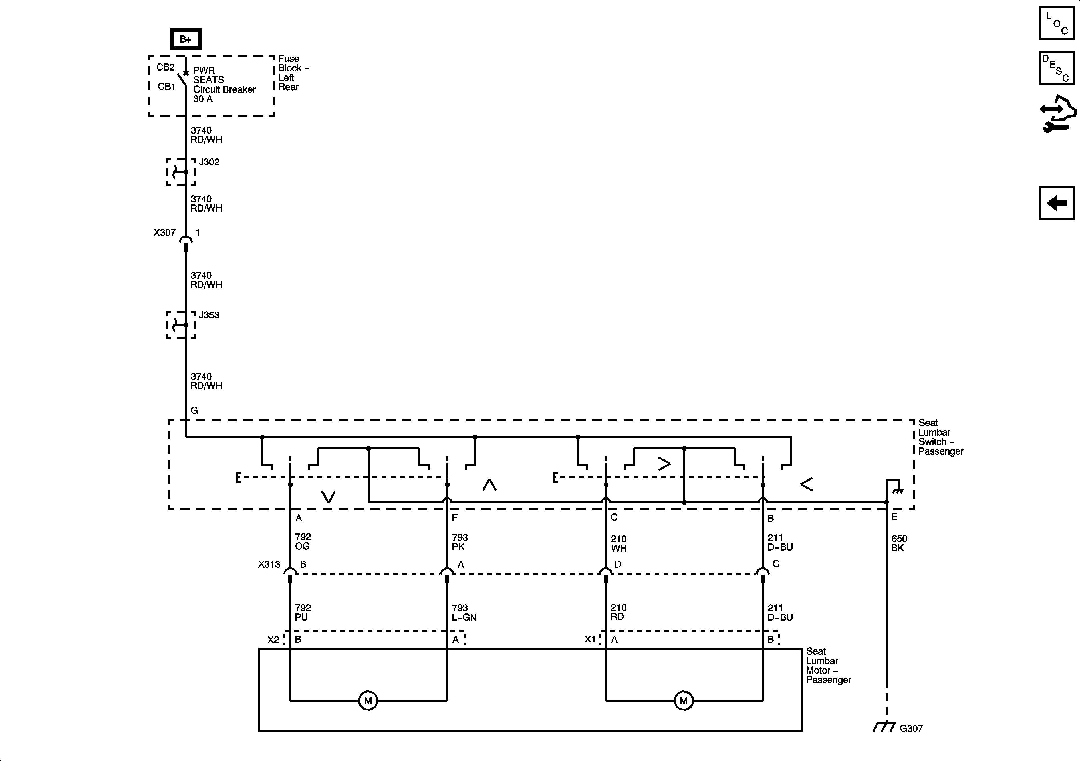
Figure
2:
Lumbar Switch and Motors