GM Service Manual Online
For 1990-2009 cars only
Makes
🢒
Cadillac
🢒
1999
🢒
Seville
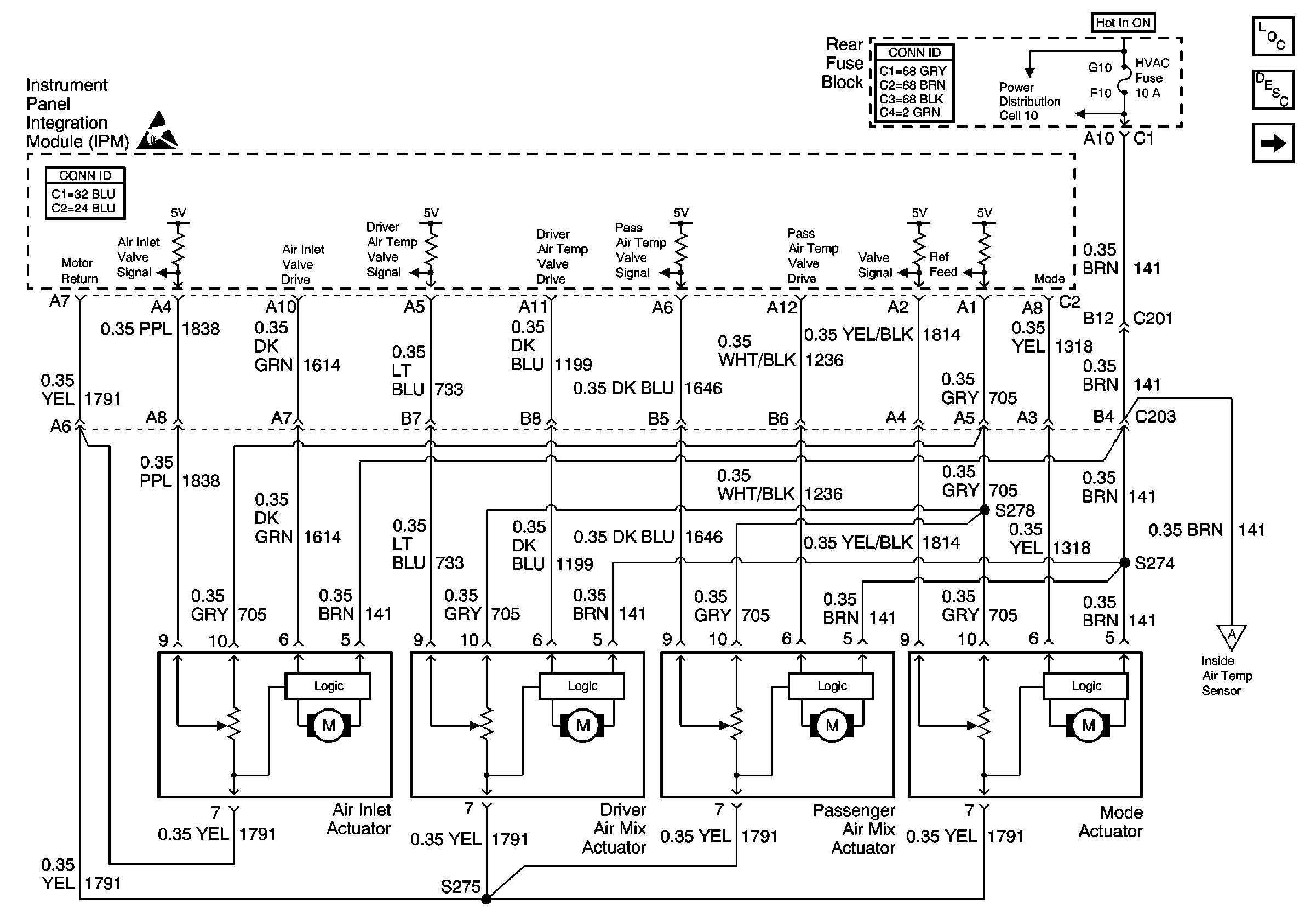
🢒 Cell 68: Electric Actuators
Cell 68: Electric Actuators
Cell 68: Electric Actuators
Handling ESD Sensitive Parts Notice
HVAC Components
HVAC Air Delivery/Temperature Control Circuit Description
Cell 68: Temperature Sensors
Cell 68: Temperature Sensors
Body Control System Connector End Views
Cell 10: IGN 3 Relay and HVAC, ABS Fuses
Power and Grounding Connector End Views