GM Service Manual Online
For 1990-2009 cars only

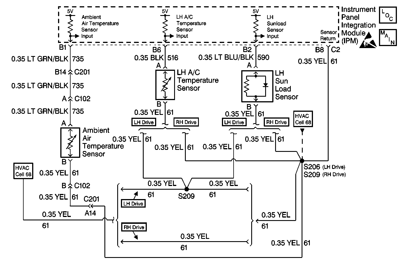
Object Number: 246614  Size: MF
HVAC Air Delivery/Temperature Control Schematics
HVAC Components
Cell 68: Temperature Sensors
Cell 68: Temperature Sensors
Handling ESD Sensitive Parts Notice

Circuit Description

The Ambient Temperature Sensor is a thermistor that controls signal voltage to the Instrument Panel Integration Module (IPM). The IPM supplies voltage on circuit 735. When the sensor is cold, the resistance is high and the IPM will sense a high signal voltage at terminal B1, connector C2. When the sensor warms, resistance is reduced and the signal voltage is pulled low through circuit 61. Signal voltage will vary from 5 V (open circuit) to 0 V (short circuit).

Conditions for Setting the DTC

    • The ignition is ON.
    • Circuit open or shorted.

Action Taken When the DTC Sets

    • A blank is displayed on the drivers information center.
    • A default value of 15°C (59°F) will be used by the IPM to allow operation of the A/C system.

Conditions for Clearing the MIL/DTC

    • Using aScan Tool .
    • A current DTC will clear when the diagnostic runs and does not fail.
    • IPM battery voltage is interrupted.

Test Description

The numbers below refer to the step numbers on the diagnostic table.

  1. Perform the Body Control Module Diagnostic (BCM) Diagnostic System Check before continuing with the diagnosis of this DTC.

  2. Ensures that the DTC was not set in error.

  3. Determines whether the malfunction is the sensor or if there is an open or a short in a circuit.

  4. Determines if the IPM is malfunctioning.

  5. TheScan Tool checks for proper sensor operation. Clear all DTCs after the repair procedures are complete.

DTC 1310 Ambient Air Temperature Sensor

Step

Action

Value(s)

Yes

No

1

Did you perform the BCM Diagnostic System Check?

--

Go to Step 2

Go to Diagnostic System Check - Body Control System

2

  1. Turn the ignition ON.
  2. Measure the voltage between sensor harness connector terminals A and B. Refer to Measuring Voltage in Wiring Systems.

Does the voltage equal the specified value?

5 V

Go to Step 3

Go to Step 4

3

  1. Turn the ignition OFF.
  2. Reconnect the sensor.
  3. Connect the Scan Tool .
  4. Turn the ignition ON.
  5. Use a Scan Tool to clear the DTC.
  6. Start the engine.

Did the DTC reset?

--

Go to Step 4

Go to Intermittents and Poor Connections in HVAC

4

  1. Connect the Scan Tool .
  2. Select IPM open/short data.
  3. Display the ambient air temperature data.
  4. Start the engine.
  5. Unplug the ambient air temperature sensor.
  6. The ambient temperature sensor voltage increases to 5 V.
  7. Reconnect the ambient temperature sensor connector.

Did the ambient air temperature sensor voltage decrease?

--

Go to Step 5

Go to Step 6

5

Replace the sensor. Refer to Ambient Temperature Sensor Replacement in HVAC.

Is the replacement complete?

--

Go to Step 7

--

6

Inspect CKT 61 (YEL) for an open or a short.

Did you locate an open or a short?

--

Go to Step 8

Go to Step 7

7

  1. Inspect CKT 735 (LT GRN/BLK) for an open or a short.
  2. If OK, replace the IPM. Refer to Control Assembly Replacement in HVAC.

Is the replacement complete?

--

Go to Step 9

--

8

Repair the open or short in CKT 61 (YEL). Refer to Wiring Repairs in Wiring Systems.

Is the repair complete?

--

Go to Step 9

--

9

  1. Using a Scan Tool clear all the DTCs.
  2. Confirm proper operation of the A/C system.

Is the A/C system operating normally?

--

Go to Diagnostic System Check - Body Control System

--