GM Service Manual Online
For 1990-2009 cars only

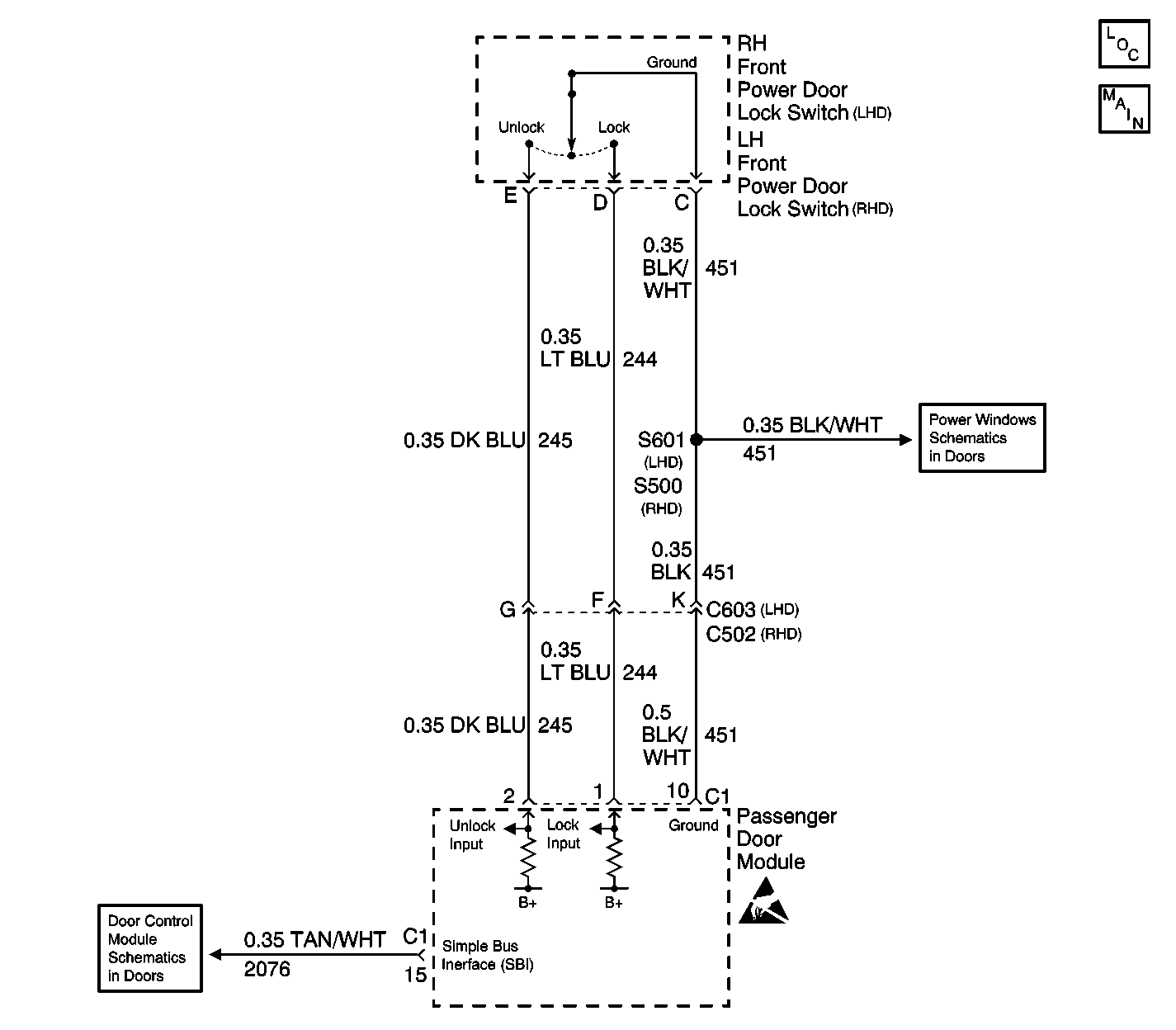
Object Number: 576280  Size: LF

Circuit Description

The RH Front Power Door Lock Switch provides a RH Front seat occupant with the ability to initiate an unlock all doors signal.

Whenever the Power Door Lock Switch is moved to the unlock position, a ground is provided on the passenger door module, Connector C1, terminal 1 input, through CKT 245 (DK BLU).

The Power Door Lock Switch ground is provided from the passenger door module via CKT 451 (BLK/WHT). If CKT 451 (BLK/WHT) is open the RH Front power window will also exhibit problems, since both the Power Door Lock Switch and the Power Window Switch share a common ground.

Module power is furnished through CKT 740 (ORN). If CKT 740 (ORN) is open or shorted to ground, the RH Front power window will also exhibit problems.

When this Power Door Lock Switch is placed in the unlock position, the unlock signal is sensed by the passenger door module, which then sends a message to the driver door module over the SBI. The driver door module sends this message to the Rear Interface Module (RIM), requesting a command to unlock all doors, since the RIM is the door lock master. Any problem with the SBI or driver door module will affect all door lock, window, and mirror functions.

Conditions for Setting the DTC

If the unlock signal to the passenger door module remains grounded for a period of 30 seconds, this DTC will be set current. The unlock signal from CKT 245 (DK BLU) is examined by the passenger door module no less than once every 300 milliseconds.

The diagnostic for this DTC will not run if either the Battery Voltage High (DTC B1982) or Battery Voltage Low (DTC B1983) are set current.

Action Taken When the DTC Sets

This DTC is dynamic, and as such, is current only while the problem is present. This switch actuation will be ignored by the passenger door module until a switch change of state is detected.

Conditions for Clearing the DTC

    • This DTC will be set from current to history when the UNLOCK input cycles off or the power mode changes from OFF to RUN.
    • The history DTC will clear after 50 ignition cycles.
    • Use the On-Board clearing DTC feature.
    • Use a scan tool.

Diagnostic Aids

    • A history DTC is evidence of a intermittent problem, clear the DTC and cycle the ignition switch from OFF to RUN. Then perform the Diagnostic System Check.
    • If DTC B2223 is current, cycle the ignition switch from OFF to RUN. If this DTC is still current, perform the following diagnostic.

Test Description

Numbers below refer to the Diagnostic Table Step Number(s).

  1. Perform the system check prior to diagnosis.

  2. Checking the RH Front Power Door Switch for an internal short.

  3. This repair procedure requires power window switch replacement.

  4. Checking the RH Front Power Door Lock Switch operation.

  5. This repair procedure requires the repair CKT 245 for a short to ground.

  6. This repair procedure requires passenger door module replacement.

  7. Clear all DTCs following repair procedure completion.

DTC B2223 RF Door Lock/Unlock Switch Stuck Unlock

Step

Action

Value(s)

Yes

No

1

Did you perform Diagnostic System Check - Power Door Systems ?

--

Go to Step 2

Go to Diagnostic System Check - Power Door Systems

2

  1. Disconnect the RH Front Power Door Lock Switch.
  2. Without pressing the RH Front Power Door Lock Switch, using a digital multimeter (DMM), measure the resistance between the RH Front Power Door Lock Switch terminal C and terminal E.

Is the resistance within the specified range?

0-5 ohms

Go to Step 3

Go to Step 4

3

Replace the RH Front Power Door Lock Switch. Refer to Door Lock Switch Replacement .

Is the repair complete?

--

Go to Step 7

--

4

  1. Turn the ignition switch to the ON position, engine off.
  2. Using a DMM, measure the voltage between the RH Front Power Door Lock Switch harness connector terminal C and terminal E.

Is the voltage within specified range?

10-15 V

Go to Step 6

Go to Step 5

5

Repair CKT 245 for a short to ground. Refer to Wiring Repairs in Wiring Systems.

Is the repair complete?

--

Go to Step 7

--

6

Replace the passenger door module. Refer to Door Control Module Replacement .

Is the repair complete?

--

Go to Step 7

--

7

  1. Turn off the ignition switch.
  2. Reconnect or reinstall any connectors or components that were disconnected or removed.
  3. Turn ON the ignition switch.
  4. Clear any DTCs. Refer to Diagnostic Trouble Code (DTC) Clearing.

Are all DTCs cleared?

--

Go to Diagnostic System Check - Power Door Systems

--