GM Service Manual Online
For 1990-2009 cars only
Makes
🢒
Cadillac
🢒
2001
🢒
Seville
🢒
Steering
🢒
Steering Wheel and Column - Tilt
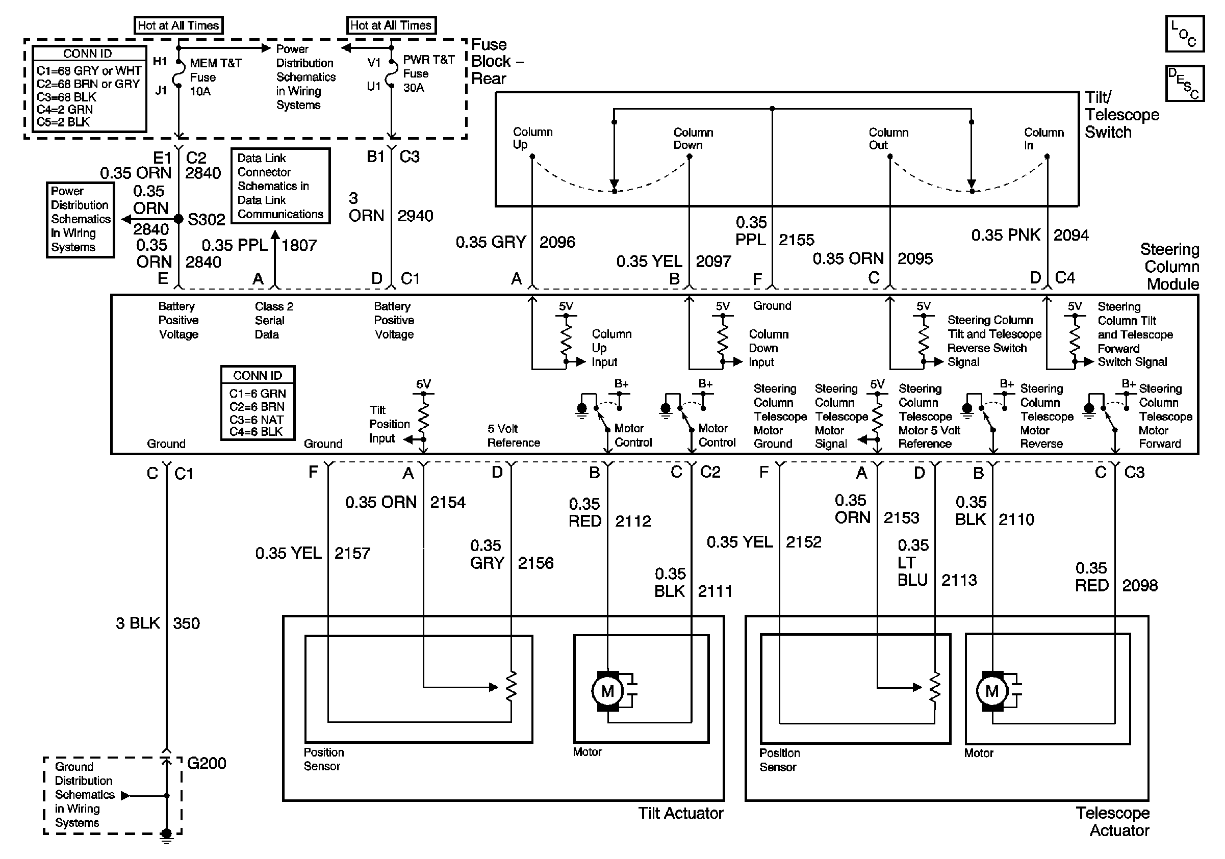
🢒 Tilt/Telescoping Steering Column Schematics
Power and Ground
Tilt Wheel/Column Component Views
Steering Wheel and Column - Tilt Description and Operation
Battery Feeds
MEM T/T, PWR T/T, and TSIG/HAZ Fuses
Class 2 Serial Data Line (LH Drive) (2 of 2)
G200