GM Service Manual Online
For 1990-2009 cars only
Makes
🢒
Cadillac
🢒
2001
🢒
Seville
🢒 Starting Controls
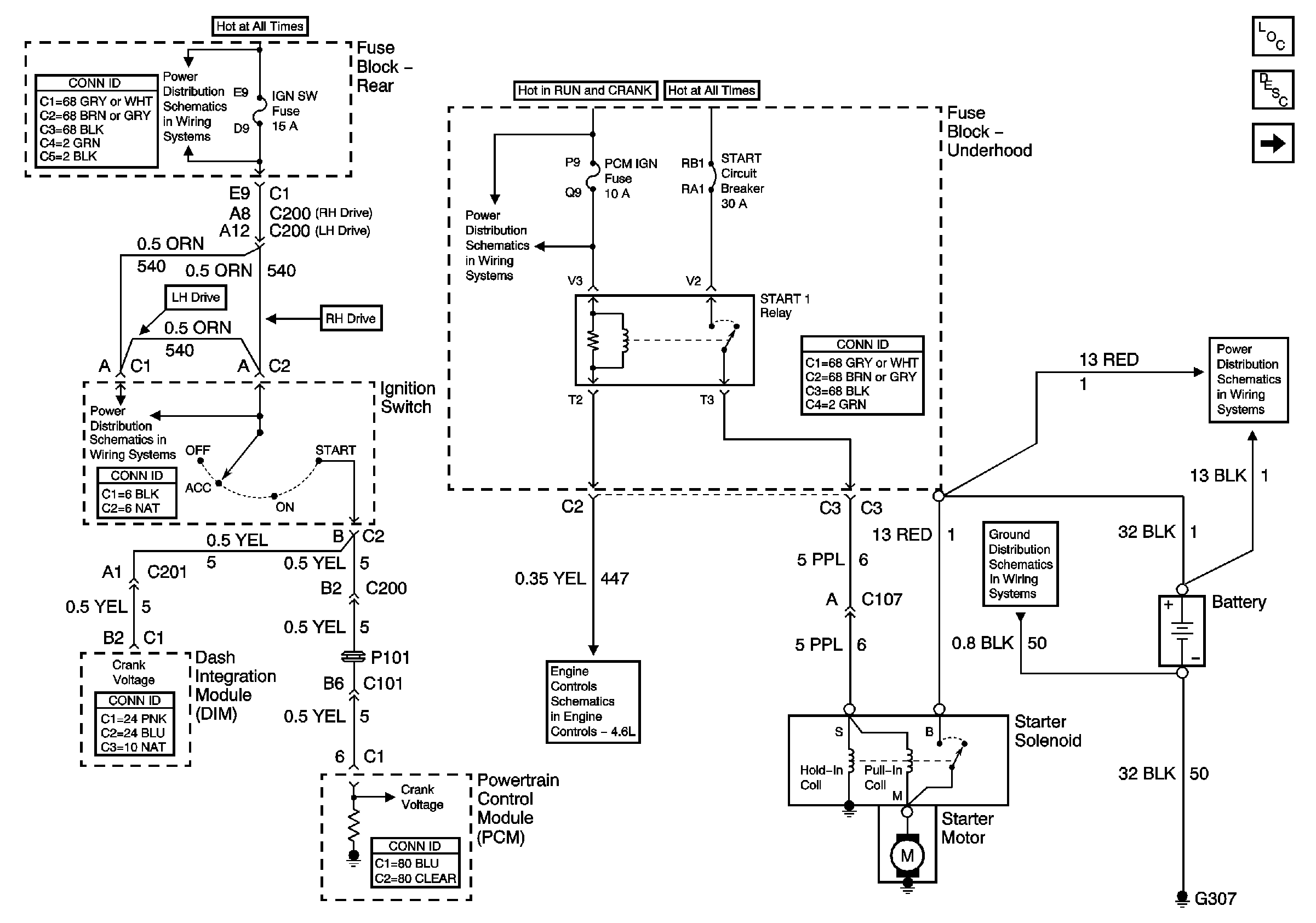
Starting Controls
Starting Controls
Generator Controls
Engine Electrical Component Views
Starting System Description and Operation
Battery Feeds
Ignition Switch
Power to Underhood Fuse Block
PCM Inputs/Outputs (1 of 2)
G303, G304, and G307
Power to Underhood Fuse Block