GM Service Manual Online
For 1990-2009 cars only
Makes
🢒
Cadillac
🢒
2001
🢒
Seville
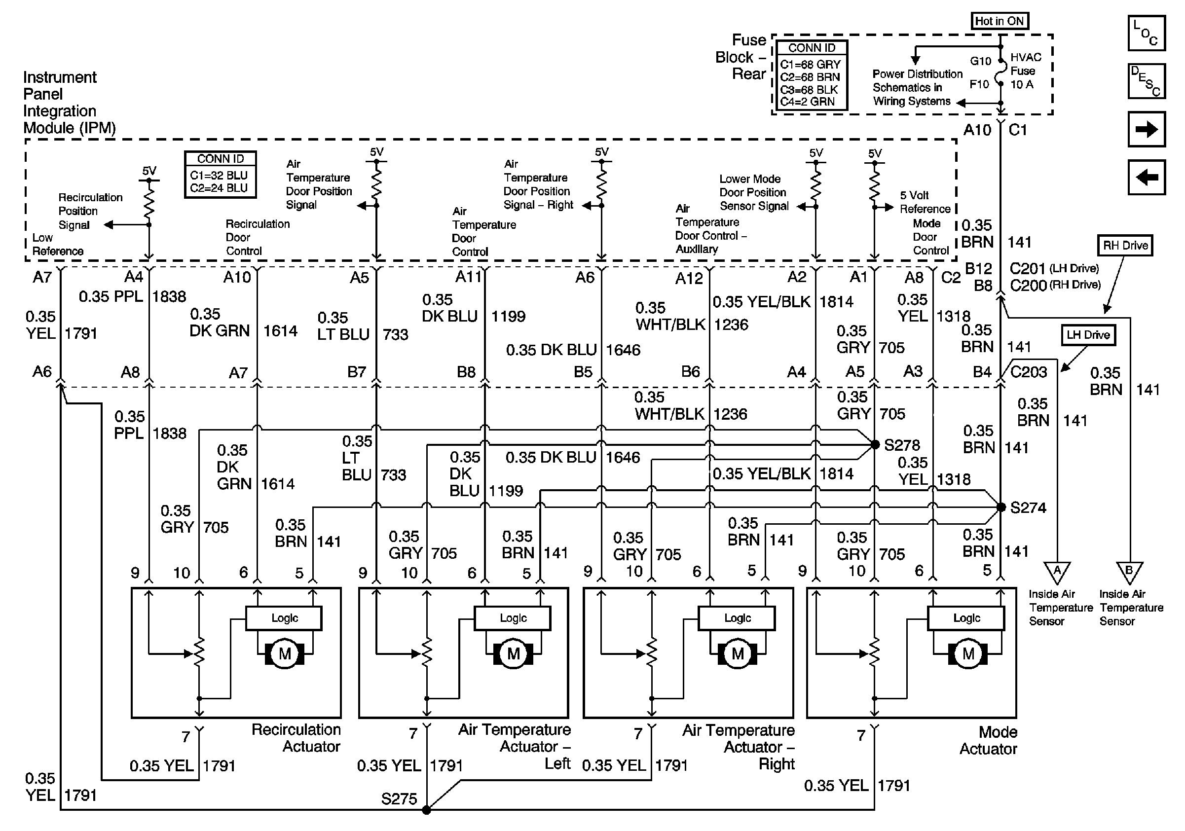
🢒 Electric Actuators
Electric Actuators
Electric Actuators
A/C Compressor Clutch
Temperature Sensors - LH Drive
HVAC Component Views
Temperature Sensors - LH Drive
IGN 3 RR Relay, HVAC and ABS Fuses
Air Temperature Description and Operation