GM Service Manual Online
For 1990-2009 cars only
Makes
🢒
Cadillac
🢒
2002
🢒
Seville
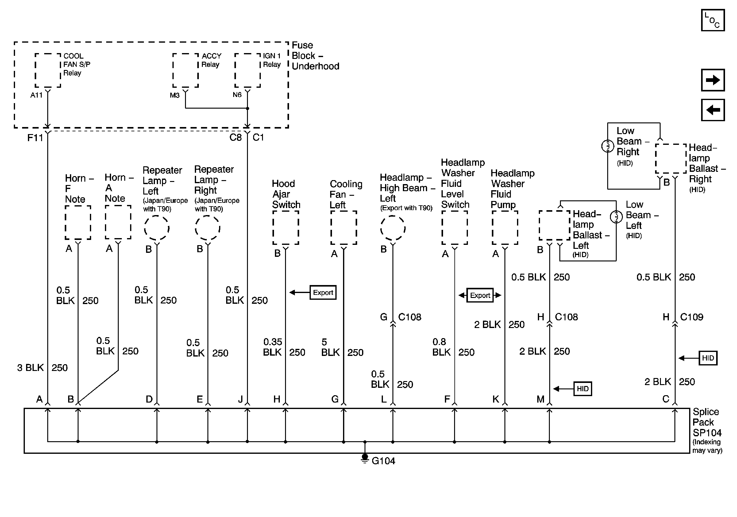
🢒 G104
G104
G104
Master Electrical Component List
G106, G109, and G110
G101 and G105