GM Service Manual Online
For 1990-2009 cars only
Makes
🢒
Cadillac
🢒
2003
🢒
Seville
🢒
Suspension
🢒
Electronic Suspension Control (ESC)
🢒 Suspension Controls Schematics
Figure
1:
Power and Ground
Master Electrical Component List
Electronic Suspension Control Description and Operation
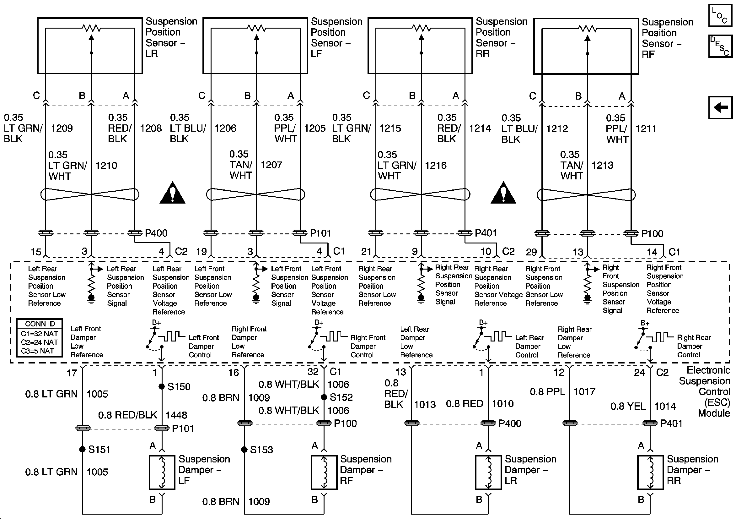
Sensors and Actuators
Battery Feed to Fuse Block - Rear
Battery Feed to Fuse Block - Rear
G401 (1 of 3)
Serial Data Line (RH Drive) (1 of 2)
Automatic Level Control (w/F55)
Figure
2:
Sensors and Actuators
Master Electrical Component List
Electronic Suspension Control Description and Operation
Power and Ground
Suspension Controls Schematic Icons
Suspension Controls Schematic Icons