GM Service Manual Online
For 1990-2009 cars only
Makes
🢒
Cadillac
🢒
2005
🢒
XLR
🢒 Brake Warning System
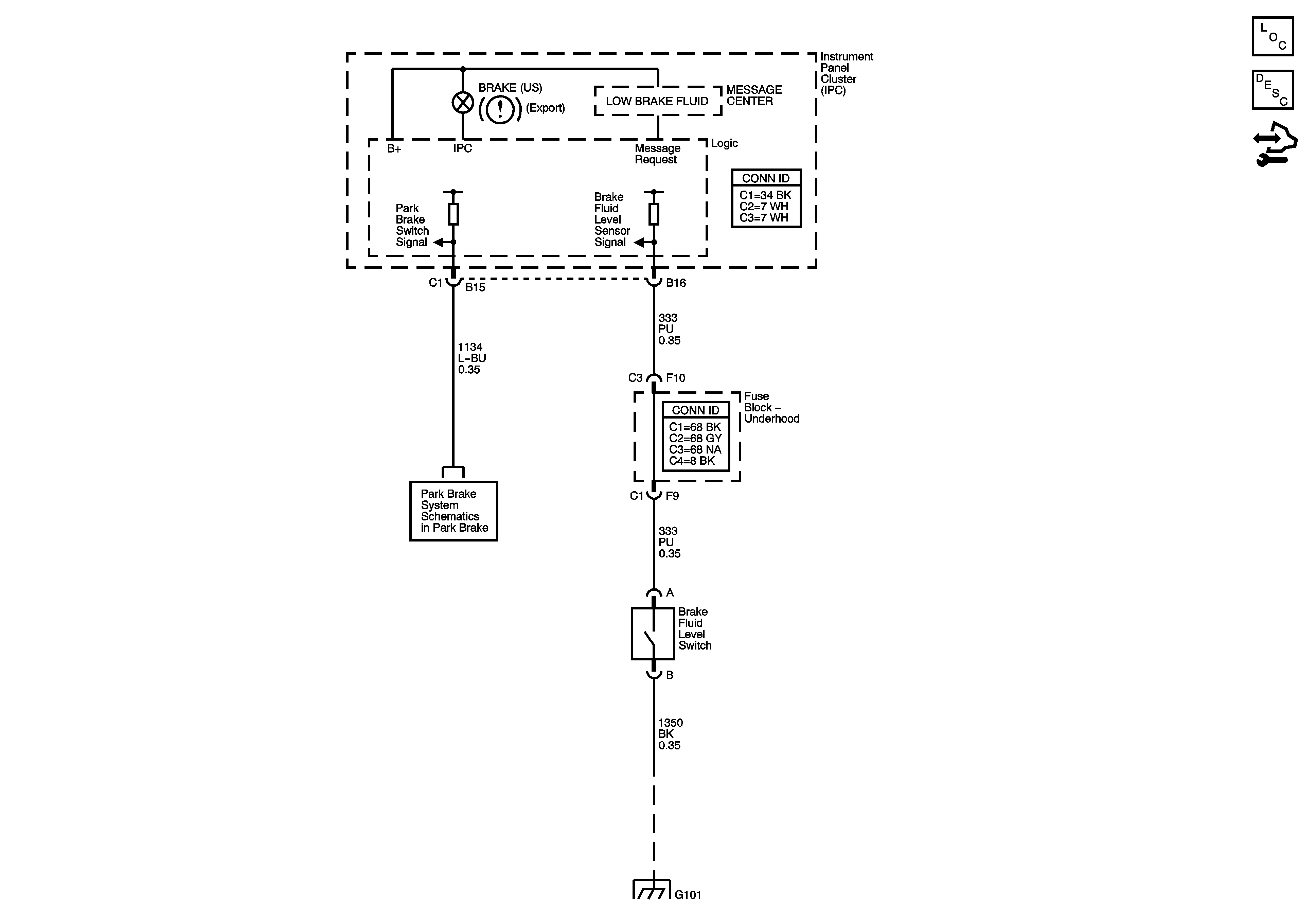
Brake Warning System
Master Electrical Component List
Hydraulic Brake System Description and Operation
Control Module References
Park Brake System
G101