GM Service Manual Online
For 1990-2009 cars only
Makes
🢒
Cadillac
🢒
2005
🢒
XLR
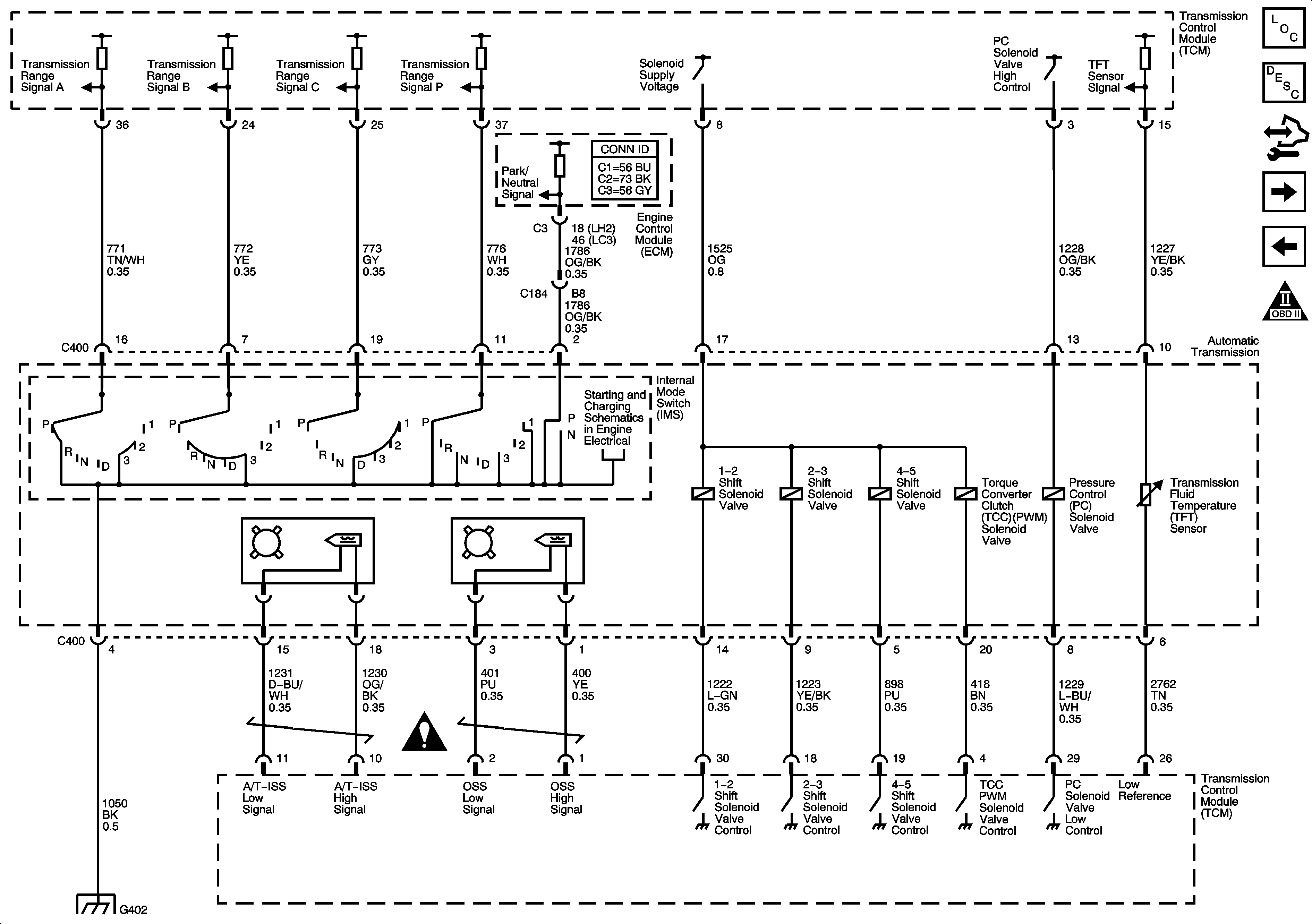
🢒 IMS, ISS, Solenoids, TFT and VSS
IMS, ISS, Solenoids, TFT and VSS
IMS, ISS, Solenoids, TFT, and VSS
Master Electrical Component List
Transmission Component and System Description
Control Module References
Shift Lever
DLC, Ground, MIL and Power
OBD II Symbol Description Notice
Cranking
Automatic Transmission Schematic Icons
G302, G401 and G402