GM Service Manual Online
For 1990-2009 cars only
Makes
🢒
Cadillac
🢒
2008
🢒
XLR
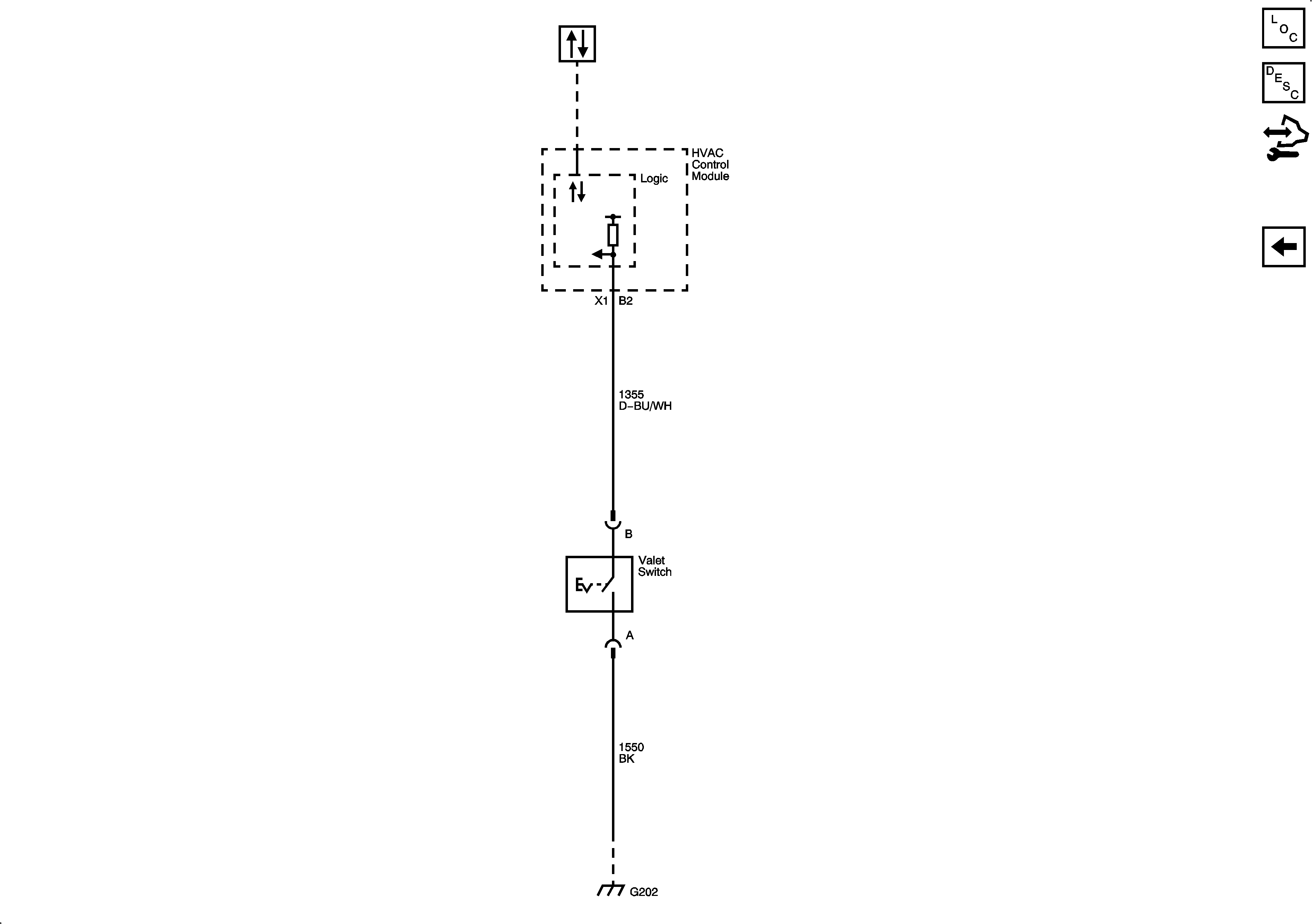
🢒 Valet Switch
Valet Switch
Valet Switch
Master Electrical Component List
Fuel Fill Door Description and Operation
Control Module References
Fuel Door, and Rear Compartment Lid Release
Power, Ground, and Class 2
G202