GM Service Manual Online
For 1990-2009 cars only
Makes
🢒
Cadillac
🢒
2009
🢒
XLR
🢒 Messages
Messages
Messages
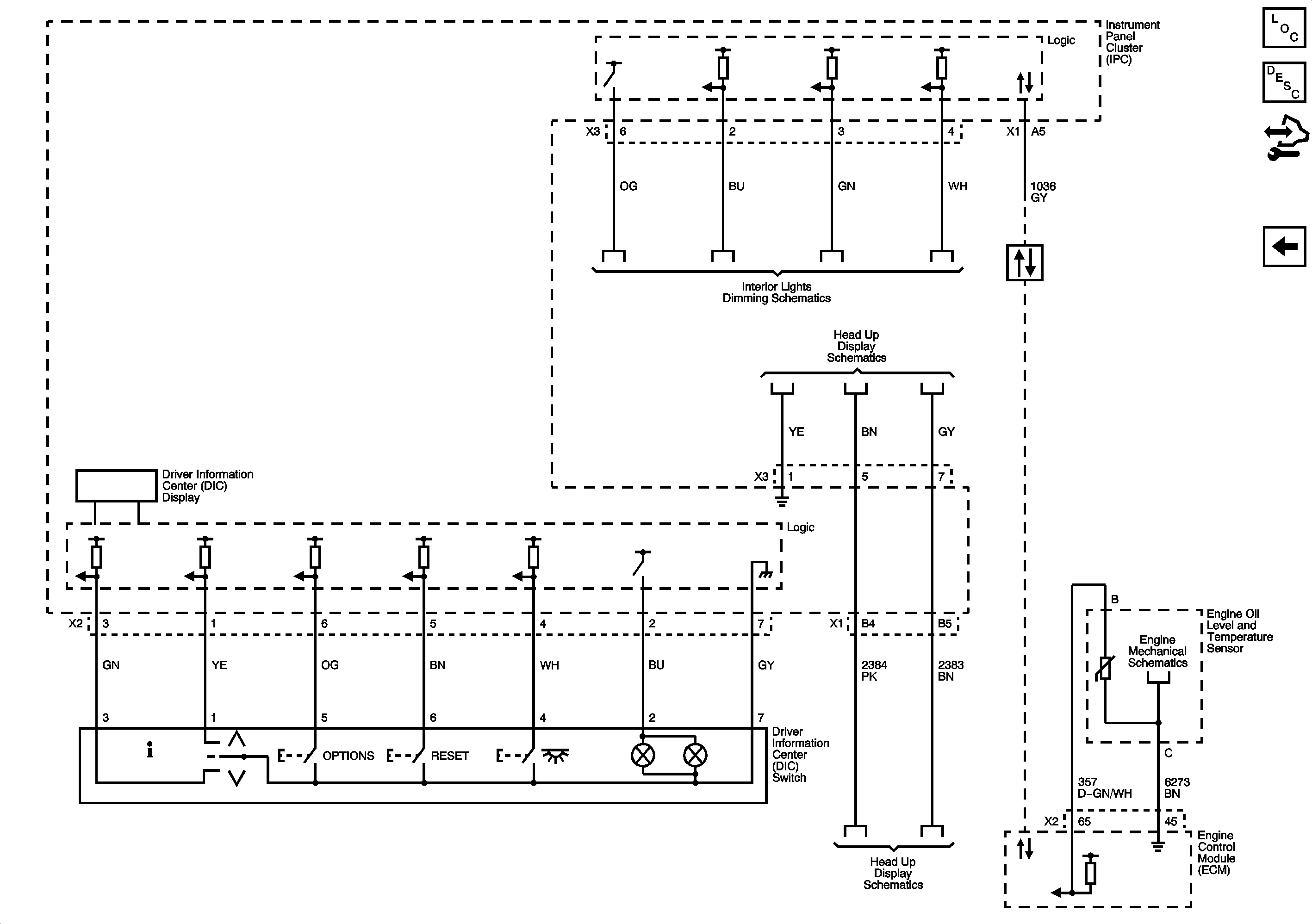
Master Electrical Component List
Instrument Cluster Description and Operation
Control Module References
Gages
Dimmer Controls, IPC, Switches, and DLC
Head Up Display Schematics
Head Up Display Schematics
Engine Mechanical Schematics
Power, Ground, and Class 2