GM Service Manual Online
For 1990-2009 cars only
Makes
🢒
Cadillac
🢒
2009
🢒
XLR
🢒 Door and Rear Compartment Courtesy Lamps
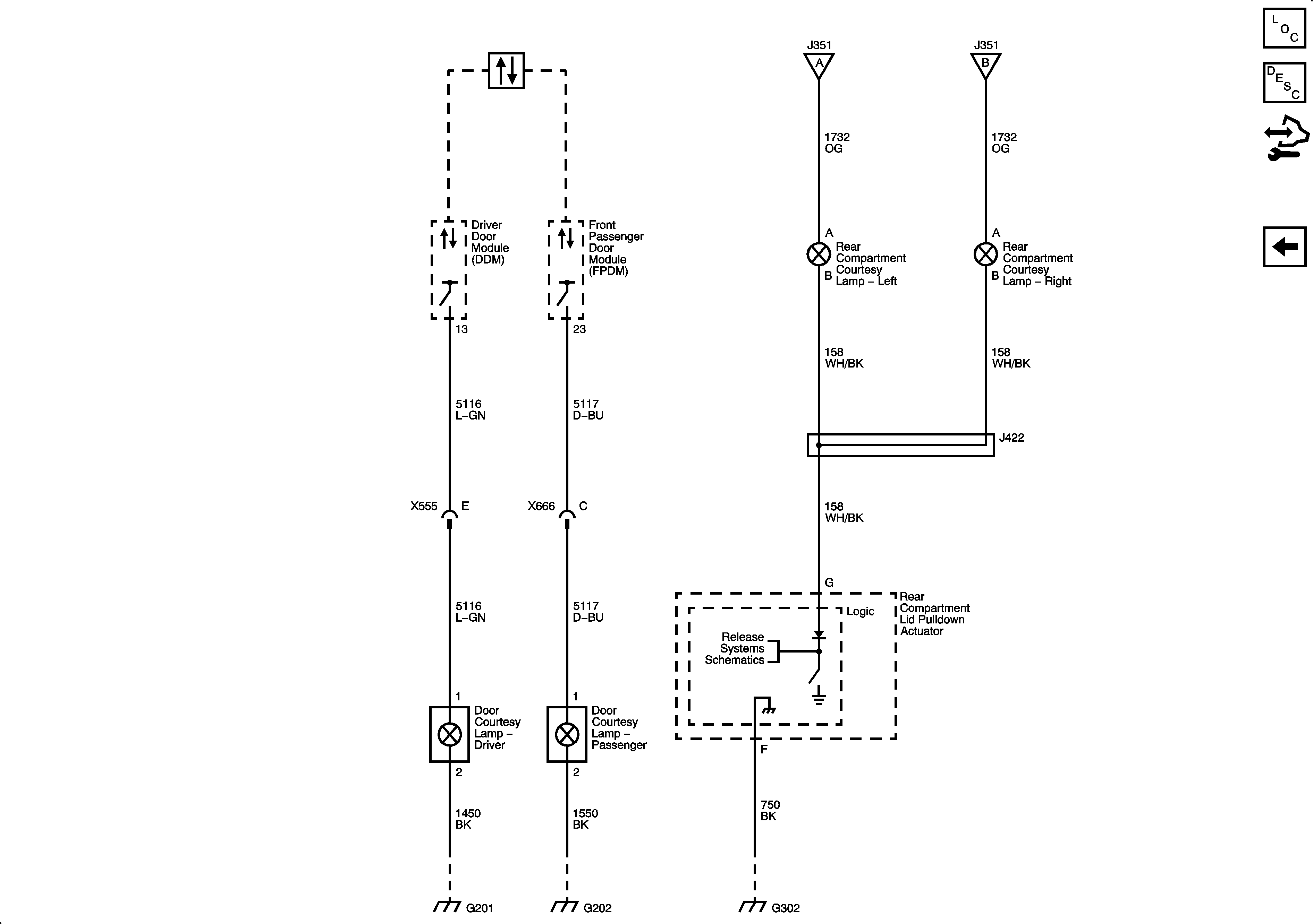
Door and Rear Compartment Courtesy Lamps
Door and Rear Compartment Courtesy Lamps
Master Electrical Component List
Interior Lighting Systems Description and Operation
Control Module References
Lamp Controls, I/P Compartment, Sunshades, and Inside Rearview Mirror Lamps
Power, Ground, and Class 2
Lamp Controls, I/P Compartment, Sunshades, and Inside Rearview Mirror Lamps
Fuel Door and Rear Compartment Lid Release
G201
G202 2 of 2
G302, G401, and G402