GM Service Manual Online
For 1990-2009 cars only
Makes
🢒
Cadillac
🢒
2009
🢒
XLR
🢒 Power Steering Schematics
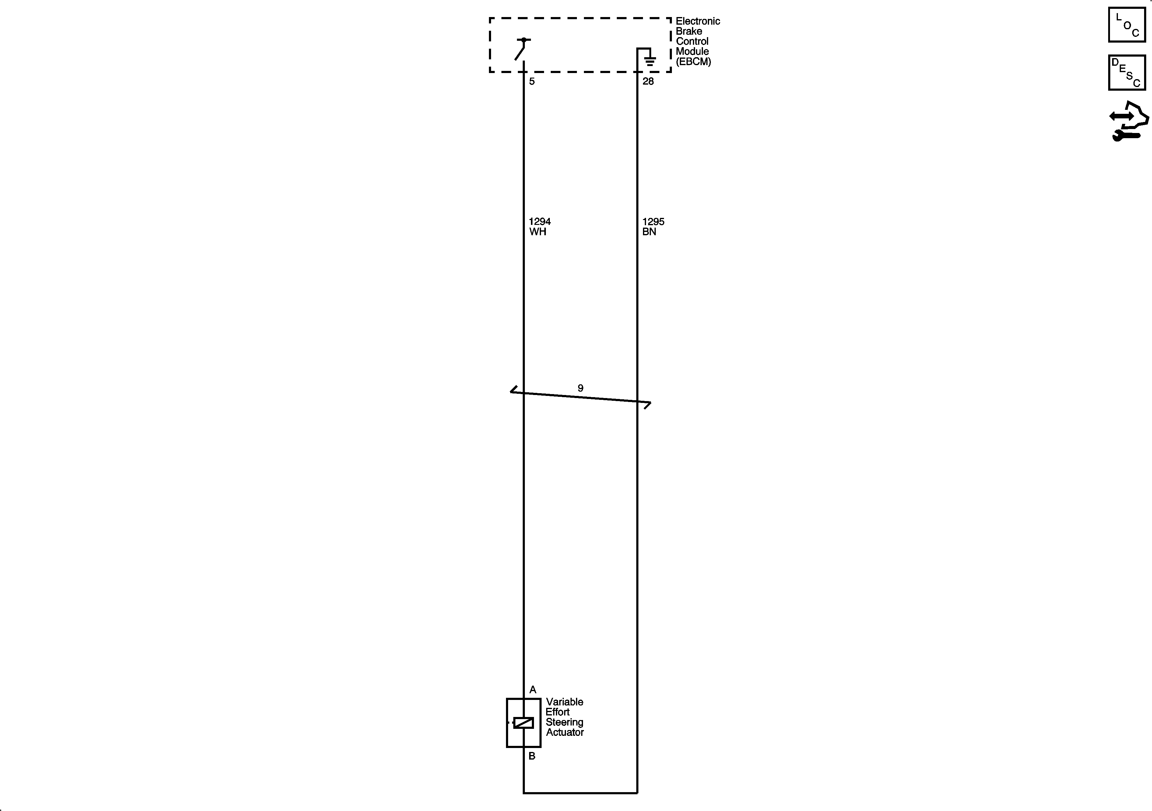
Power Steering Schematics
Master Electrical Component List
Power Steering System Description and Operation (w/o Electro-Hydraulic Steering)
Control Module References
Stability Control Sensors
Stability Control Sensors