GM Service Manual Online
For 1990-2009 cars only

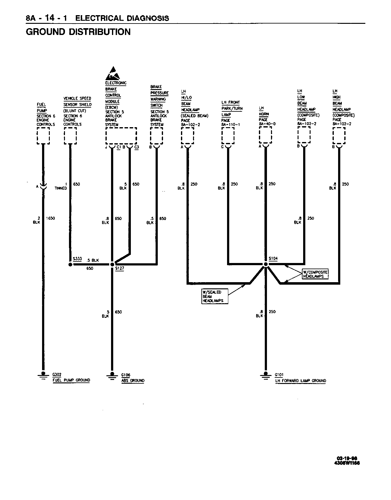
SMU - SEC. 8A-14 - GROUND DISTRIBUTION REV. SCHEMATICS

SUBJECT: SERVICE MANUAL UPDATE - SECTION 8A-14 - GROUND DISTRIBUTION REVISED SCHEMATICS

MODELS: 1998 CHEVROLET AND GMC TRUCK M/L MODELS

THIS BULLETIN REVISES THE SCHEMATICS ON PAGES 8A-14-1 AND 8A-14-9 IN THE 1998 M/L SERVICE MANUAL.

FIGURES: 00 ATTACHMENTS: 02


Object Number: 337034  Size: FS


Object Number: 337036  Size: FS

GENERAL MOTORS BULLETINS ARE INTENDED FOR USE BY PROFESSIONAL TECHNICIANS, NOT A "DO-IT-YOURSELFER". THEY ARE WRITTEN TO INFORM THOSE TECHNICIANS OF CONDITIONS THAT MAY OCCUR ON SOME VEHICLES, OR TO PROVIDE INFORMATION THAT COULD ASSIST IN THE PROPER SERVICE OF A VEHICLE. PROPERLY TRAINED TECHNICIANS HAVE THE EQUIPMENT, TOOLS, SAFETY INSTRUCTIONS AND KNOW-HOW TO DO A JOB PROPERLY AND SAFELY. IF A CONDITION IS DESCRIBED, DO NOT ASSUME THAT THE BULLETIN APPLIES TO YOUR VEHICLE, OR THAT YOUR VEHICLE WILL HAVE THAT CONDITION. SEE A GENERAL MOTORS DEALER SERVICING YOUR BRAND OF GENERAL MOTORS VEHICLE FOR INFORMATION ON WHETHER YOUR VEHICLE MAY BENEFIT FROM THE INFORMATION.