GM Service Manual Online
For 1990-2009 cars only
Makes
🢒
Chevrolet
🢒
2000
🢒
Astro - 4WD
🢒
Restraints
🢒
SIR
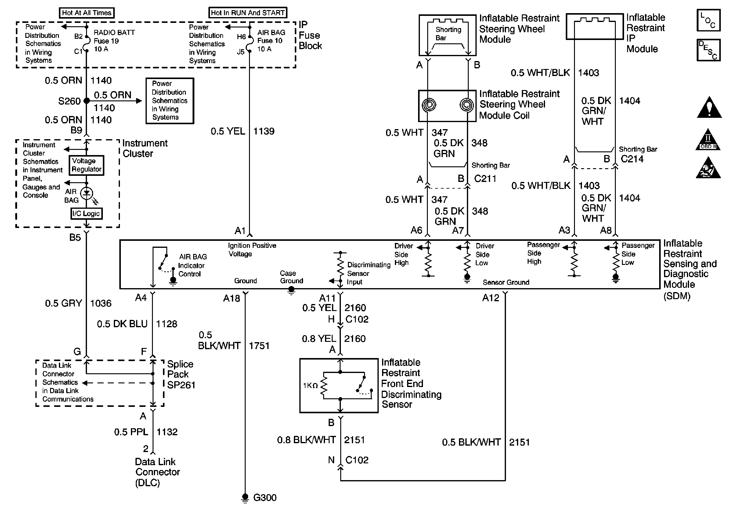
🢒 SIR Schematics
SIR Components
SIR System Component Description and Definitions
Handling ESD Sensitive Parts Notice
SIR Schematic Icons
CIG LTR Fuse 13, RADIO BATT Fuse 19 and CRANK Fuse 8
CIG LTR Fuse 13, RADIO BATT Fuse 19 and CRANK Fuse 8
RADIO BATT Fuse, Data Link, and CRUISE Fuse
Data Link Schematics (1 of 2)
SIR Schematic Icons