GM Service Manual Online
For 1990-2009 cars only
Makes
🢒
Chevrolet
🢒
2008
🢒
Avalanche - 2WD
🢒
Diagnostic Navigation
🢒
Vehicle Diagnostic Information
🢒 Power Moding Schematics
Figure
1:
Ignition 3 and Accessory Voltage
Master Electrical Component List
Power Mode Description and Operation
Control Module References
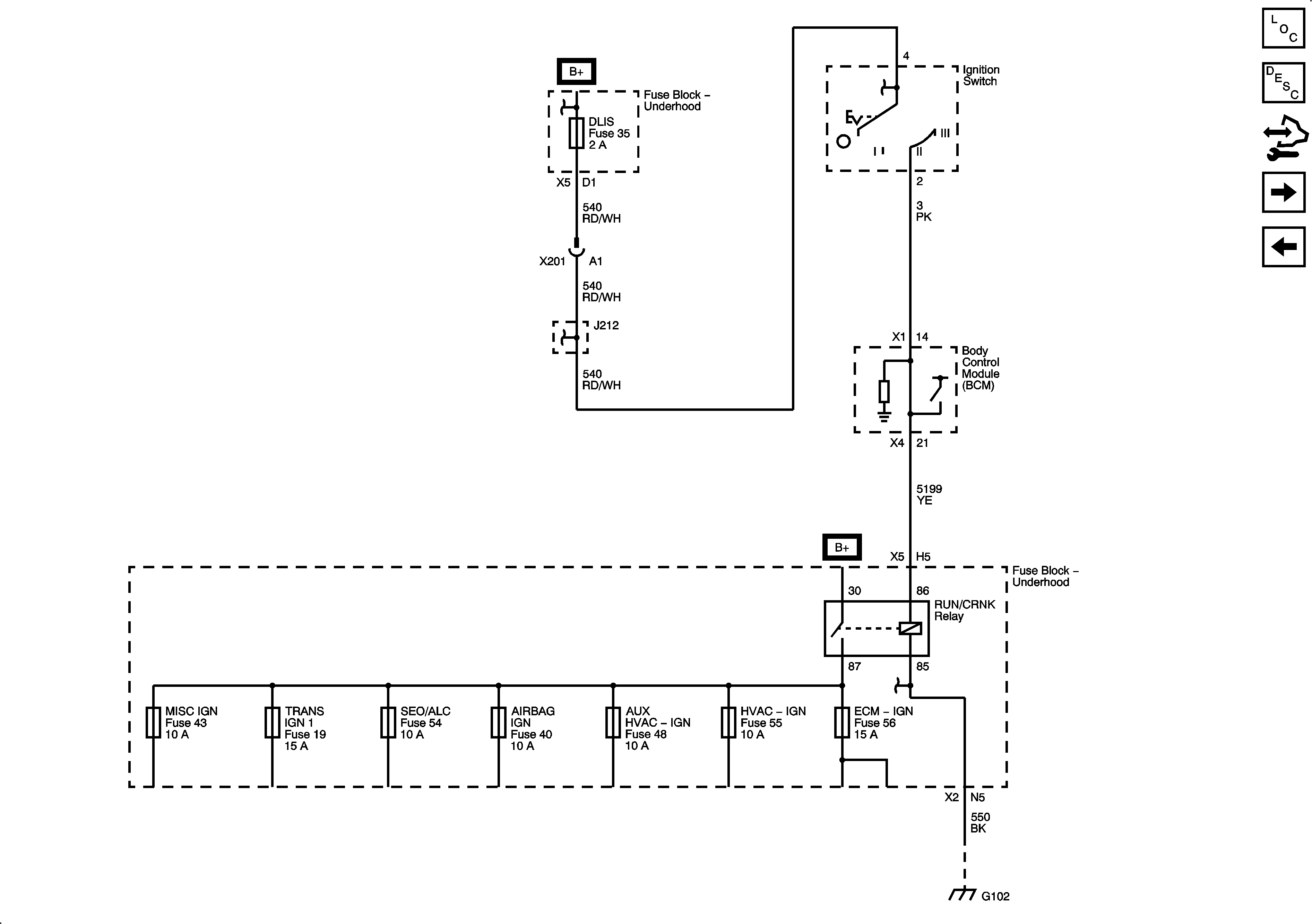
Ignition 2/3 Voltage
Figure
2:
Ignition 2/3 Voltage
Master Electrical Component List
Power Mode Description and Operation
Control Module References
Ignition 1 Voltage
Ignition 3 and Accessory Voltage
DLIS Fuse and Ignition Switch
RUN/CRANK Bus - AIRBAG IGN, MISC IGN and SEO/ALC Fuses
RUN/CRANK Bus - ECM-IGN and TRANS IGN 1 Fuses
RUN/CRANK Bus - AIRBAG IGN, MISC IGN and SEO/ALC Fuses
RUN/CRANK Bus - AIRBAG IGN, MISC IGN and SEO/ALC Fuses
RUN/CRANK Bus - AUX HVAC - IGN and HVAC - IGN Fuses
RUN/CRANK Bus - AUX HVAC - IGN and HVAC - IGN Fuses
G102, G104, and G108
Figure
3:
Ignition 1 Voltage
Master Electrical Component List
Power Mode Description and Operation
Control Module References
Ignition 2/3 Voltage