GM Service Manual Online
For 1990-2009 cars only
Makes
🢒
Chevrolet
🢒
2005
🢒
Aveo
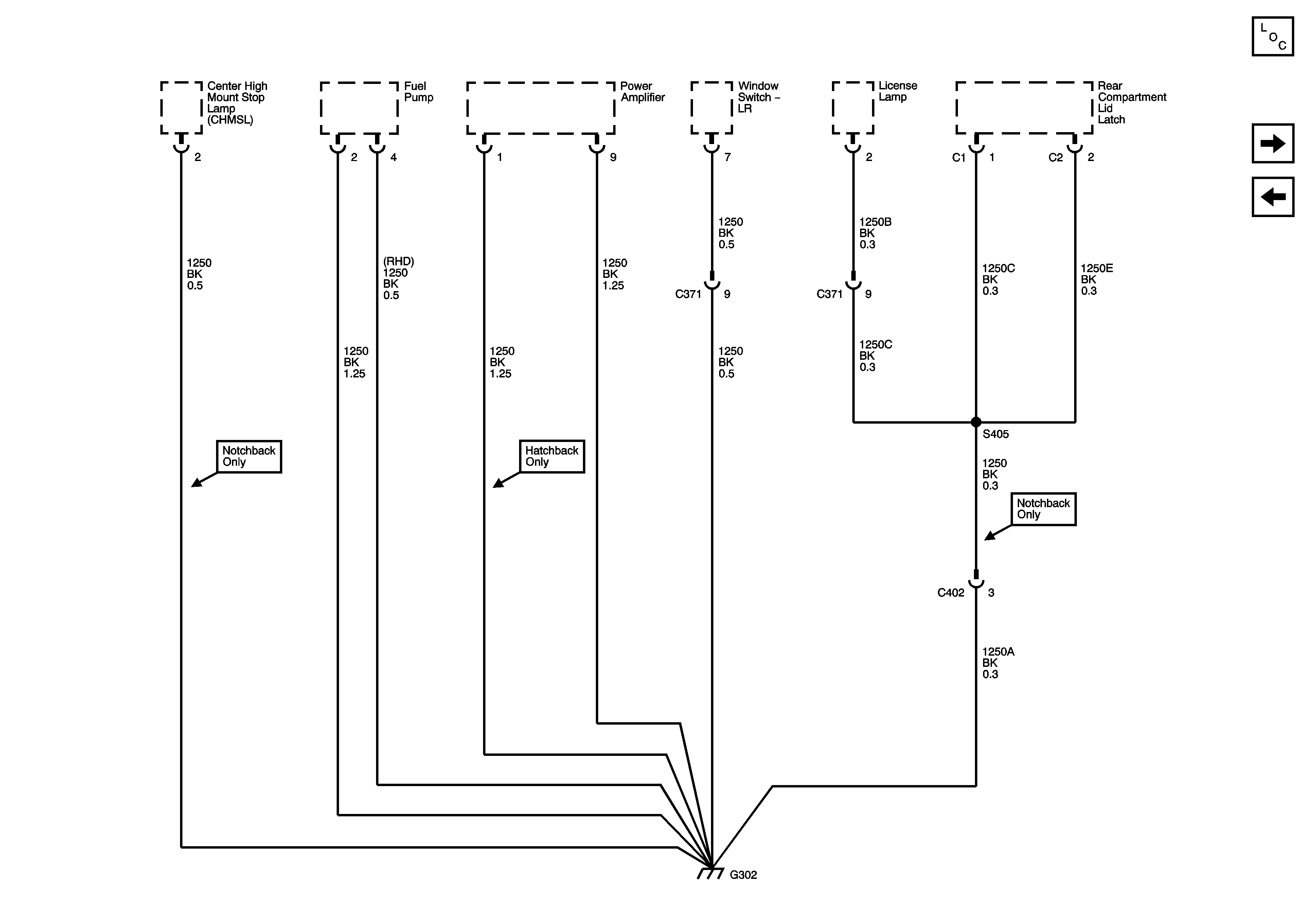
🢒 G302
G302
G302
Master Electrical Component List
G303 - Hatchback RHD
G301 - Hatchback, Notchback, LHD