GM Service Manual Online
For 1990-2009 cars only

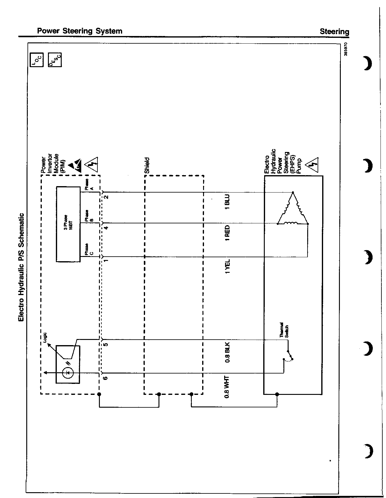
SMU - SEC. 2/3 - POWER STEERING GEAR PUMP

SUBJECT: SERVICE MANUAL UPDATE - SECTIONS 2/3 - POWER STEERING GEAR PUMP - REVISED SCHEMATIC, COMPONENT VIEWS, AND DIAGNOSTIC CHARTS

MODELS: 1997-98 CHEVROLET S-10 ELECTRIC TRUCK

THIS BULLETIN REPLACES THE FOLLOWING INFORMATION IN SECTION 3 OF THE 1997 S-10 ELECTRIC TRUCK SERVICE MANUAL, AND SECTION 2 OF THE 1998 S-10 ELECTRIC TRUCK SERVICE MANUAL.

- POWER STEERING SYSTEM TEST PROCEDURE - POWER STEERING DIAGNOSTIC CHART #1 - POWER STEERING DIAGNOSTIC CHART #2 - POWER STEERING DIAGNOSTIC CHART #3

PLEASE REPLACE WITH THE ATTACHED.

FIGURES: 00 ATTACHMENTS: 07


Object Number: 484751  Size: FS


Object Number: 484753  Size: FS


Object Number: 484755  Size: FS


Object Number: 484757  Size: FS


Object Number: 484759  Size: FS


Object Number: 484761  Size: FS


Object Number: 484763  Size: FS

GENERAL MOTORS BULLETINS ARE INTENDED FOR USE BY PROFESSIONAL TECHNICIANS, NOT A "DO-IT-YOURSELFER". THEY ARE WRITTEN TO INFORM THOSE TECHNICIANS OF CONDITIONS THAT MAY OCCUR ON SOME VEHICLES, OR TO PROVIDE INFORMATION THAT COULD ASSIST IN THE PROPER SERVICE OF A VEHICLE. PROPERLY TRAINED TECHNICIANS HAVE THE EQUIPMENT, TOOLS, SAFETY INSTRUCTIONS AND KNOW-HOW TO DO A JOB PROPERLY AND SAFELY. IF A CONDITION IS DESCRIBED, DO NOT ASSUME THAT THE BULLETIN APPLIES TO YOUR VEHICLE, OR THAT YOUR VEHICLE WILL HAVE THAT CONDITION. SEE A GENERAL MOTORS DEALER SERVICING YOUR BRAND OF GENERAL MOTORS VEHICLE FOR INFORMATION ON WHETHER YOUR VEHICLE MAY BENEFIT FROM THE INFORMATION.

COPYRIGHT 1998 GENERAL MOTORS CORPORATION. ALL RIGHTS RESERVED.