GM Service Manual Online
For 1990-2009 cars only
Makes
🢒
Chevrolet
🢒
2002
🢒
Blazer - 2WD
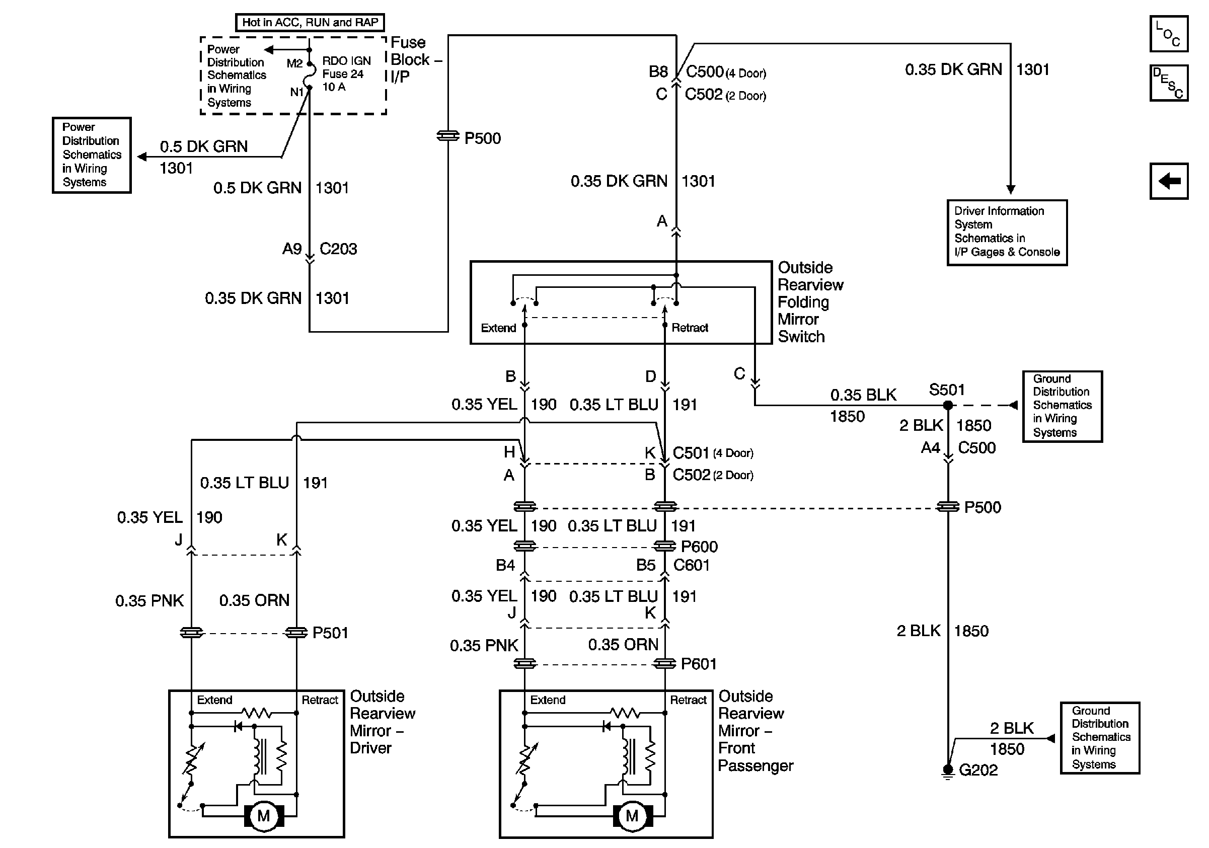
🢒 Folding Mirrors (Export Only)
Folding Mirrors (Export Only)
Folding Mirrors-- Export Only
Master Electrical Component List
Outside Mirror Description and Operation Folding Mirrors
Outside Rearview Mirror Switch
RDO IGN and STR WHL RDO IGN Fuses
Power and Ground (w/ Trip Computer)
S501 (Utility)
G202 (Utility and Crew Cab)