GM Service Manual Online
For 1990-2009 cars only
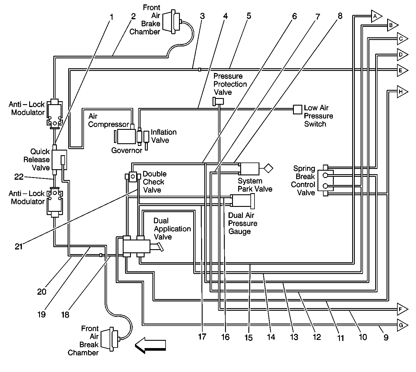
Figure 1:

Front Air Brake Schematic


Object Number: 448963  Size: LF
(1) Right Front Anti-Lock Modulator to Frame (FC-350) O.D. 13 mm, 0.50 in
(2)Air compressor to Frame Connector (Copper) O.D. 16 mm, 0.625 in
(3)Low Air Pressure Warning Switch to Governor Valve (Black) O.D. 10 mm, 0.375 in
(4)Frame Connector to Supply Reservoir (Copper) O.D. 16 mm, 0.625 in
(5)Double Check Valve to Bulkhead Connector (Brown) O.D. 10 mm, 0.375 in
(6)System Park Valve to Bulkhead Connector (Red) O.D. 6 mm, 0.250 in
(7)Bulkhead Connector to System Park Valve (Brown) O.D. 6 mm, 0.250 in
(8)Dual Application Valve to Front Reservoir (Blue) O.D. 13 mm, 0.50 in
(9)Supply Reservoir to Low Air Pressure Warning Switch (Black) O.D. 10 mm, 0.375 in
(10)Dual Application Valve to Spring Brake Control Valve (Blue) O.D. 10 mm, 0.375 in
(11)Bulkhead Connector to Spring Brake Control Valve (Red) O.D. 10 mm, 0.375 in
(12)Double Check Valve to Relay Valve with Double Check (Red) O.D. 13 mm, 0.50 in
(13)Spring Brake Control Valve to Dual Application Valve (Green) O.D. 13 mm, 0.50 in
(14)Dual Application Valve to Relay Valve (Green) O.D. 10 mm, 0.375 in
(15)Dual Application Valve to Dual Air Pressure Gauge (Blue) O.D. 5 mm, 0.187 in
(16)Dual Application Valve to Dual Air Pressure Gauge (Green) O.D. 5 mm, 0.187 in
(17)Dual Application valve to Frame Connector (Blue) O.D. 13 mm, 0.50 in
(18)Left Front Anti-Lock Modulator to Frame (FC-350 O.D. 13 mm, 0.50 in
(19)Frame Connector to Quick Release Valve (Copper) O.D. 13 mm, 0.625 in
(20)Dual Application Valve to Double Check Valve (Blue) O.D. 13 mm, 0.50 in
(21)Double Check Valve to Dual Application Valve
(22)Quick Release Valve to Anti-Lock Modulator
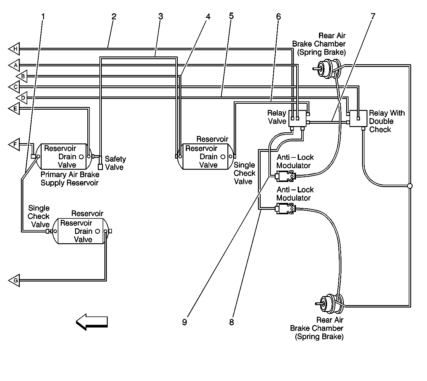
Figure 2:

Rear Air Brake Schematic


Object Number: 448969  Size: LF
(1)Supply Reservoir to Front Reservoir (Black) O.D. 13 mm, 0.50 in
(2)Spring Brake Control Valve to Relay Valve (Blue) O.D. 10 mm, 0.375 in
(3)Supply Reservoir to Rear Reservoir (Black) O.D. 13 mm, 0.50 in
(4)Rear Reservoir to Spring Brake Control Valve (Green) O.D. 13 mm, 0.50 in
(5)Spring Brake Valve to Relay Valve with Double Check (Black) O.D. 10 mm, 0.375 in
(6)Rear Reservoir to Relay Valve (Green) O.D. 13 mm, 0.50 in
(7)Relay Valve to Relay Valve with Double Check (Green) O.D. 6 mm, 0.250 in
(8)Relay Valve to Left Rear Anti-Lock Modulator (Green) O.D. 13 mm, 0.50 in
(9)Relay Valve to Right Rear anti-Lock Modulator (Green) O.D. 13 mm, 0.50 in