GM Service Manual Online
For 1990-2009 cars only
Makes
🢒
Chevrolet
🢒
2002
🢒
Chevy C Cab/Chassis HD (GMT 400)
🢒
Transmission/Transaxle
🢒
Shift Lock Control
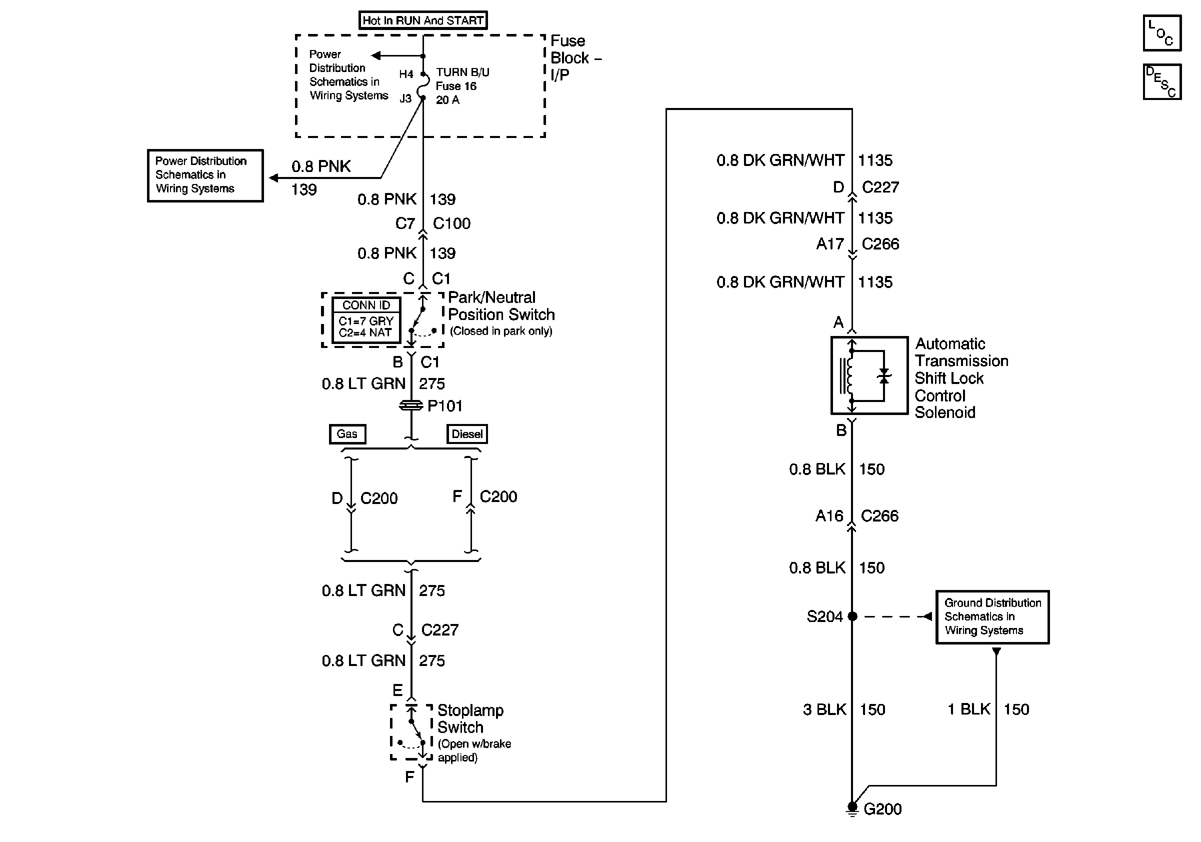
🢒 Shift Lock Control Schematics
Gauges and Turn-B/U Fuses
IGN A Fuse and Ignition Switch
Master Electrical Component List
Automatic Transmission Shift Lock Control Description and Operation
G200