GM Service Manual Online
For 1990-2009 cars only

Refer to

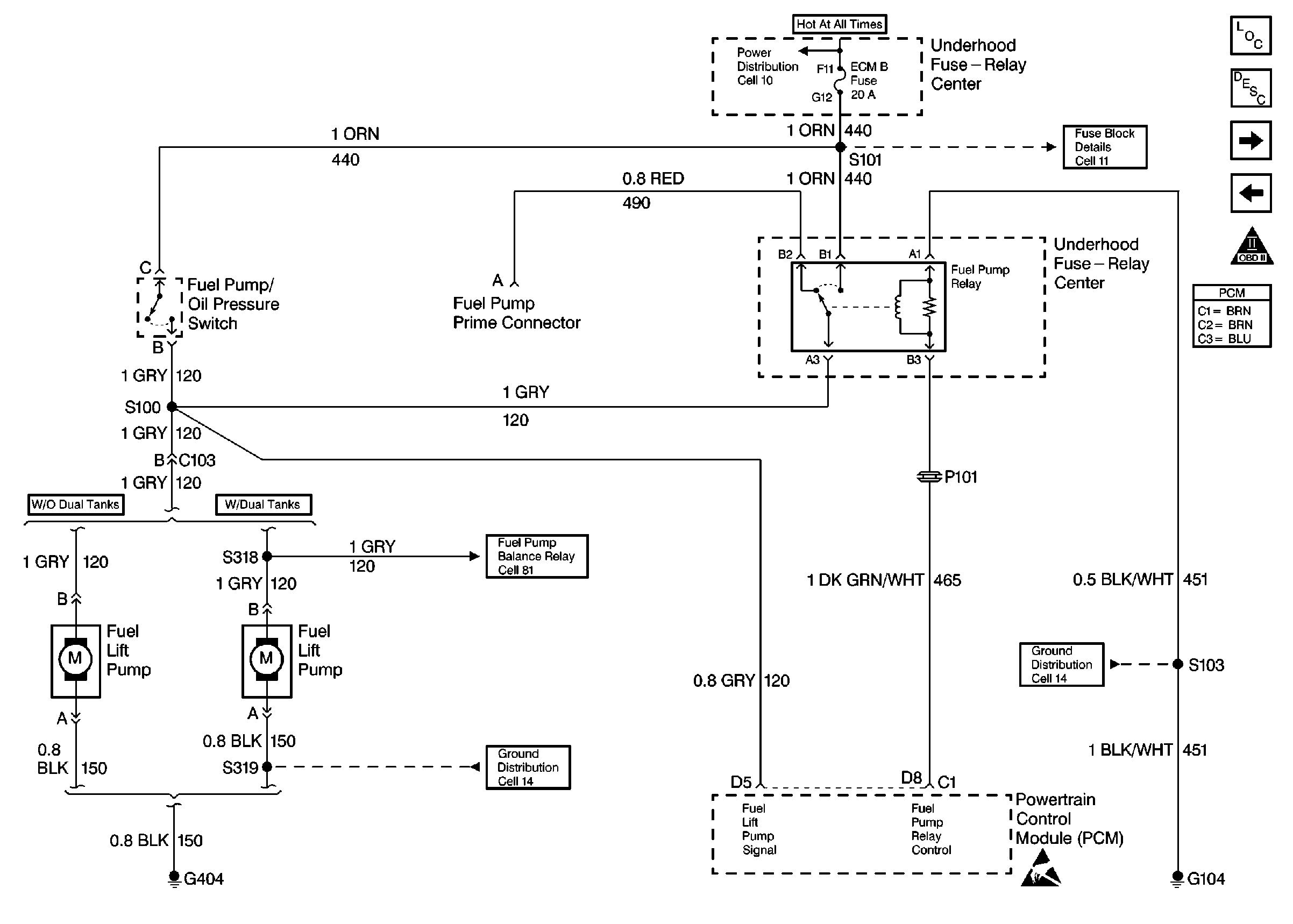
DIESEL FUEL PUMP, LIFT PUMP


Object Number: 52754  Size: FS
Engine Controls Components
DIESEL PCM, FUEL SOLENOID, WATER IN FUEL
DIESEL PCM, GLOW PLUGS, FUSE-RELAY
OBD II Symbol Description Notice
Engine Controls Schematic References
Engine Controls Schematic References
Engine Controls Schematic References
Engine Controls Schematic References
Handling Electrostatic Discharge Sensitive Parts Notice
Engine Controls Schematic References

Circuit Description

The status of the lift pump is monitored by the PCM. This signal is also used to store a DTC if the fuel pump relay is defective or fuel pump voltage is lost while the engine is running. There should be about 12 volts on circuit 120 during glow plug cycle. This is a type B DTC.

Conditions for Setting the DTC

    • Fuel lift pump commanded ON.
    • The difference between ignition voltage and fuel pump voltage is geater than 4 volts.
    • Condition met for 2 seconds.

Action Taken When the DTC Sets

No action taken.

Conditions for Clearing the MIL/DTC

    • The PCM will turn the MIL off after three consecutive trips without a fault condition.
    • A History DTC will clear when forty consecutive warm-up cycles that the diagnostic does not fail (coolant temperature has risen 5°C (40°F) from start up coolant temperature and engine coolant temperature exceeds 71°C (160°F) that same ignition cycle.
    • Use of a Scan Tool

Diagnostic Aids

This DTC will not check the fuel pump operation.

Test Description

Number(s) below refer to the step number(s) on the Diagnostic Table.

  1. This step checks the fuel lift pump circuit.

Step

Action

Value(s)

Yes

No

1

Important: Before clearing DTCs use the scan tool to record Freeze Frame and failure Records for reference, as data will be lost when Clear Info function is used.

Was the Powertrain On-Board Diagnostic (OBD) System Check performed?

--

Go to Step 2

Go to Powertrain On Board Diagnostic (OBD) System Check

2

  1. Install the scan tool.
  2. Turn the ignition ON.
  3. With the scan tool, command the fuel pump ON.

Does the scan tool indicate the fuel pump is operating?

--

Go to Diagnostic Aids

Go to Step 3

3

  1. Turn the ignition OFF.
  2. With a J 39200 connected to ground, backprobe the fuel lift pump signal circuit at the PCM.
  3. Probe the fuel pump test terminal with a fused jumper to B+.

Is the voltage at the specified value?

B+

Go to Step 8

Go to Step 4

4

  1. Remove the fuel pump relay.
  2. Verify the J 39200 is still connected.
  3. From underneath the U/H relay center, probe the A3 terminal with a fused jumper to B+.

Is the voltage at the specified value?

B+

Go to Step 5

Go to Step 6

5

  1. Check for a poor connection at the fuel pump relay center.
  2. If a problem is found, repair the problem as necessary.

Was a problem found?

--

Go to Step 18

Go to Step 17

6

  1. Check for an open or short to ground on the fuel pump signal circuit.
  2. If a problem is found, repair the problem as necessary.

Was a problem found?

--

Go to Step 18

Go to Step 7

7

  1. Check for poor connections at the PCM and at the relay center.
  2. If a problem is found, repair the problem as necessary.

Was a problem found?

--

Go to Step 18

Go to Step 15

8

  1. Remove the fuel pump relay.
  2. Turn the ignition ON.
  3. Connect a test light to ground.
  4. Probe the fuel pump relay harness connector terminal B1.

Is the test light ON?

--

Go to Step 10

Go to Step 9

9

Repair the open in the battery feed circuit to the fuel pump relay.

Is the action complete?

--

Go to Step 18

--

10

Connect a test light between terminal number B1 and terminal number A1 of the fuel pump relay harness connector.

Is the test light ON?

--

Go to Step 12

Go to Step 11

11

Repair the open fuel pump relay ground circuit.

Is the action complete?

--

Go to Step 18

 

12

  1. Turn the ignition OFF.
  2. Connect a test light between terminal number B3 of the fuel pump relay harness connector and ground.
  3. Monitor the test light.
  4. Turn the ignition ON.

Does the test light come ON during the glow plug cycle and then go OFF after the glow plug cycle is complete?

--

Go to Step 16

Go to Step 13

13

Check for an open or short to ground in the circuit from the fuel pump relay harness connector terminal number B3 and PCM.

Was a problem found?

--

Go to Step 14

Go to Step 15

14

Repair the open or short to ground in the fuel pump relay control circuit.

Is the action complete?

--

Go to Step 18

--

15

Replace the PCM.

Important: The new PCM must be programmed. Refer to Powertrain Control Module Replacement/Programming .

Is the action complete?

--

Go to Step 18

--

16

Check for poor connections at the fuel pump relay connector.

Was a problem found?

--

Go to Step 18

Go to Step 17

17

Replace the fuel pump relay. Refer to Fuel Pump Relay Replacement .

Is the action complete?

--

Go to Step 18

--

18

After Repair, use the scan tool Clear Info function and road test vehicle. check for DTCs, Current or history. Review test status information. If status is test(s) Failed or DTCs are present begin diagnosis again, on that DTCs. If last test Failed is not present and no DTCs are present repair is complete.

Are the repairs complete?

--

Go to Step 19

--

19

Using the Scan Tool, select Capture Info, Review Info.

Are any DTCs displayed that have not been diagnosed?

--

Go to the Applicable DTC Table

System OK