GM Service Manual Online
For 1990-2009 cars only
Makes
🢒
Chevrolet
🢒
2002
🢒
Chevy C Silverado - 2WD
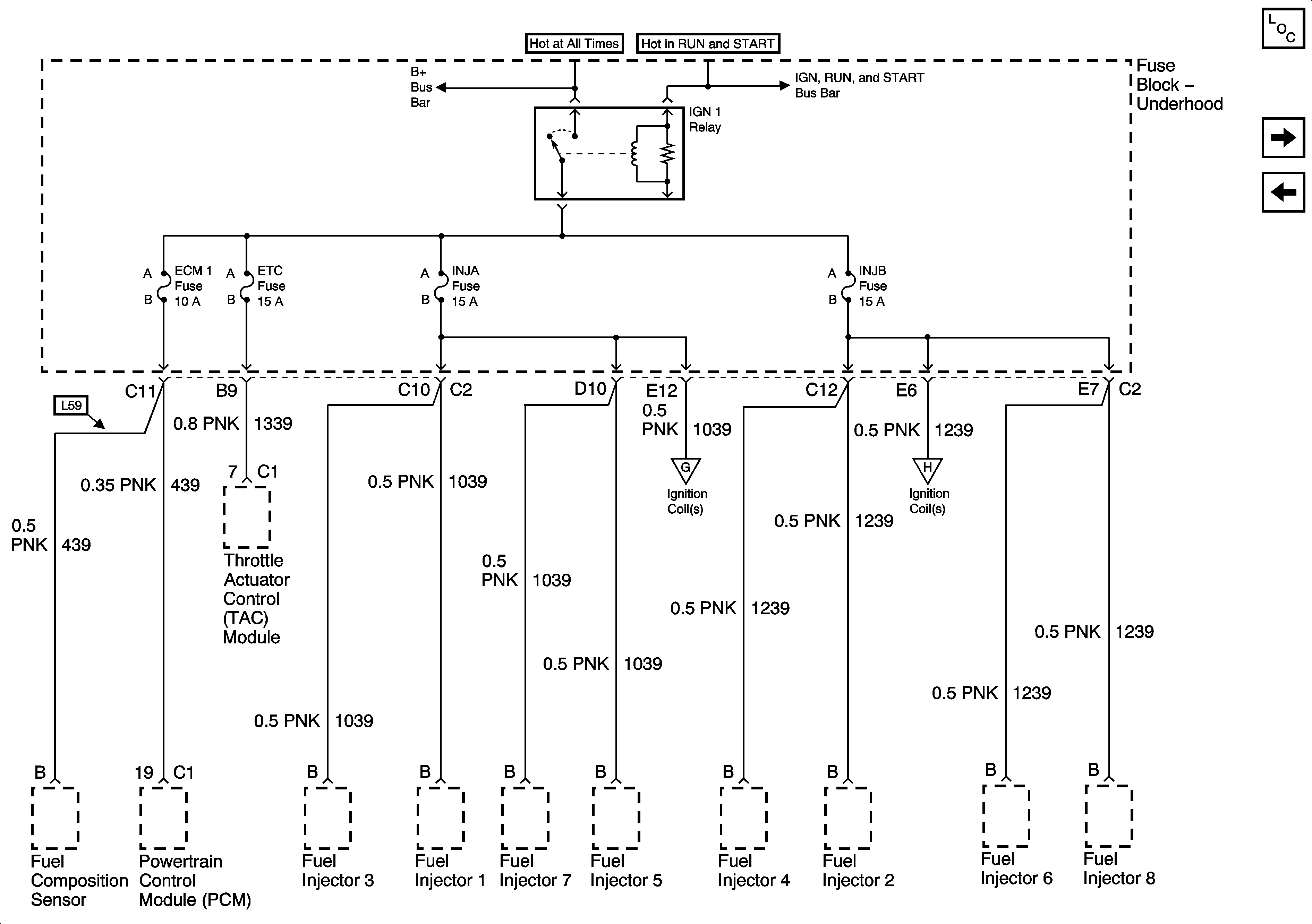
🢒 ECM 1, ETC, INJ A, and INJ B Fuses - Gas Only
ECM 1, ETC, INJ A, and INJ B Fuses - Gas Only
ECM 1, ETC, INJ A, and INJ B Fuses - Gas Only
Master Electrical Component List
Ignition Coils - Gas Only
SEO 1, SEO 2, RR HVAC, EXP LPS, ATC, and RR WPR
B+ Bus Bar
Ignition, Run, and Start Bus Bar
Ignition Coils - Gas Only
Ignition Coils - Gas Only