GM Service Manual Online
For 1990-2009 cars only
Makes
🢒
Chevrolet
🢒
2004
🢒
Chevy C Silverado - 2WD
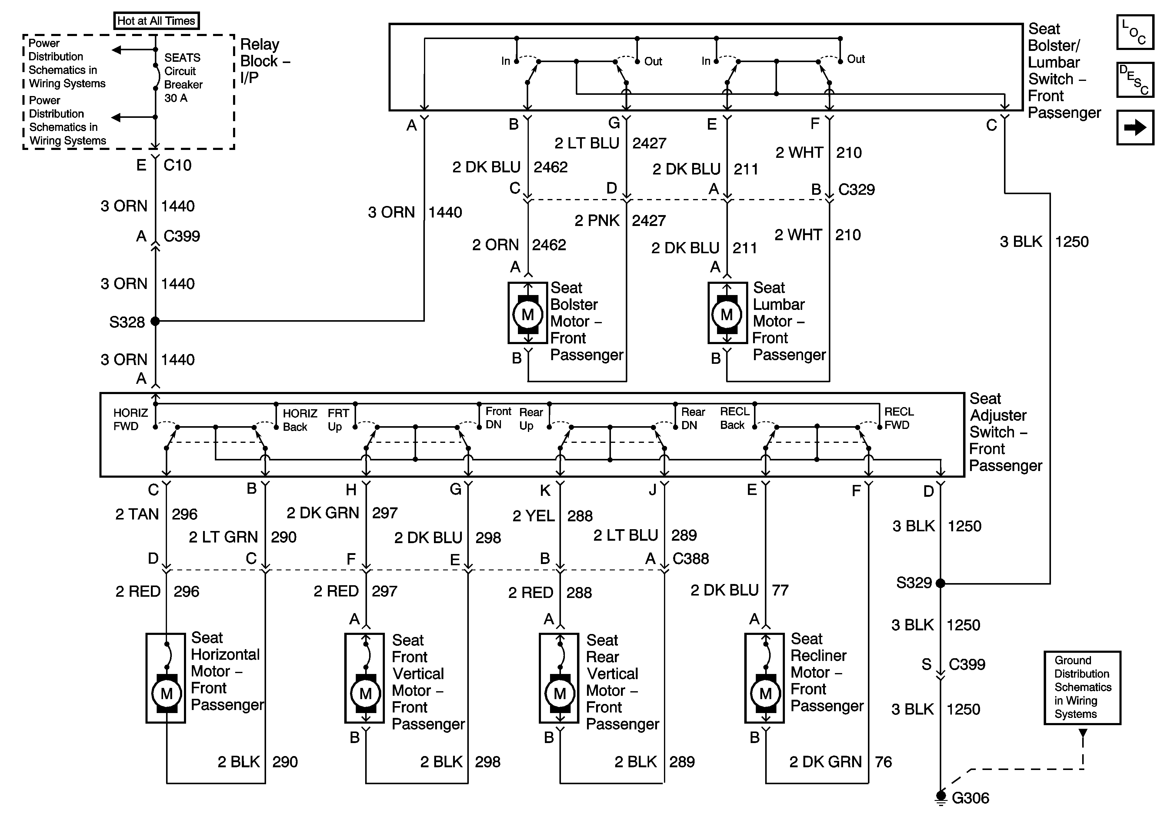
🢒 Power and Lumbar Controls
Power and Lumbar Controls
Power and Lumbar Controls
Master Electrical Component List
Power Seats System Description and Operation
Heat Controls - 1 of 2
B+ Bus Bar - 1 of 2
TBC 2A, TBC 2B, TBC 2C Fuses and LT DOORS, RT DOOR, SEAT Circuit Breakers
G306, G310, and G390