GM Service Manual Online
For 1990-2009 cars only
Makes
🢒
Chevrolet
🢒
2002
🢒
Chevy K Silverado - 4WD
🢒
Driveline/Axle
🢒
Transfer Case - NVG 236/246-NP8 (Two Speed Automatic)
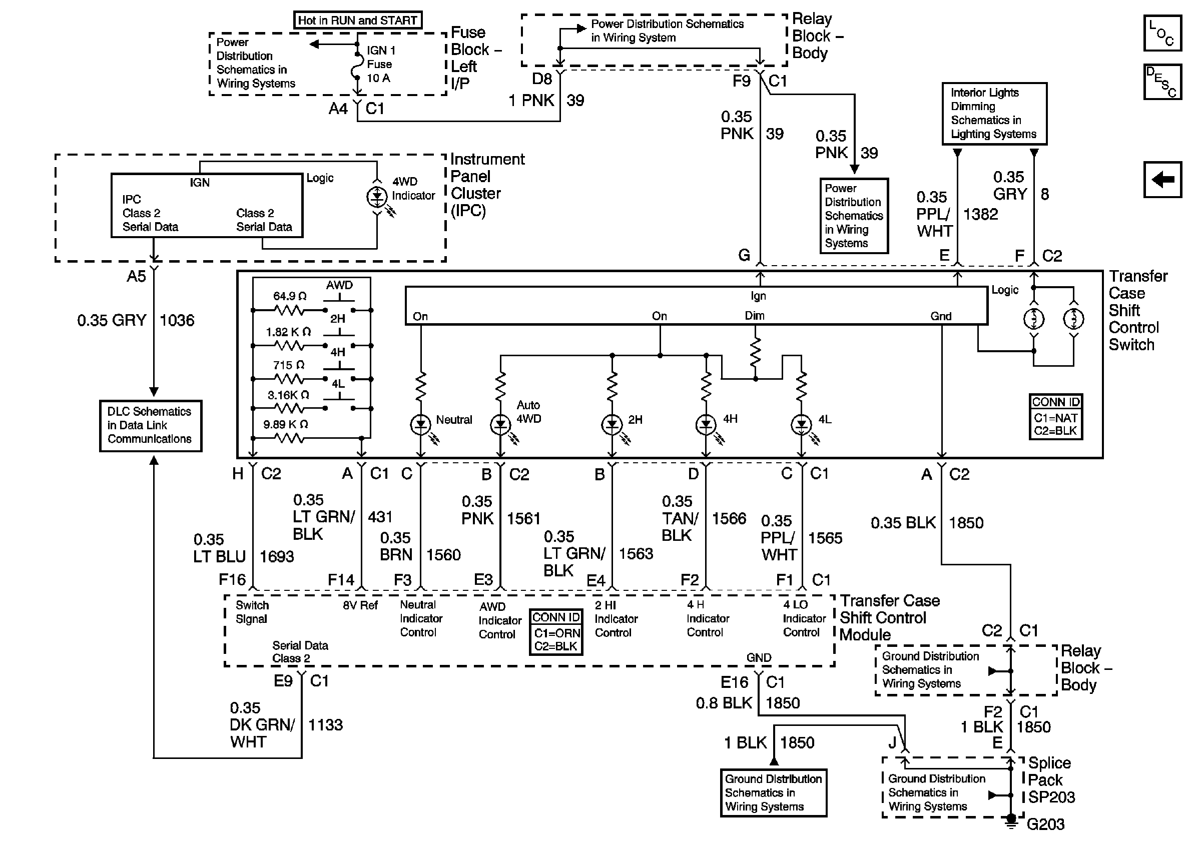
🢒 Transfer Case Control Schematics
Figure
1:
Power, Ground and Transfer Case Encoder Motor
Master Electrical Component List
Transfer Case Description and Operation
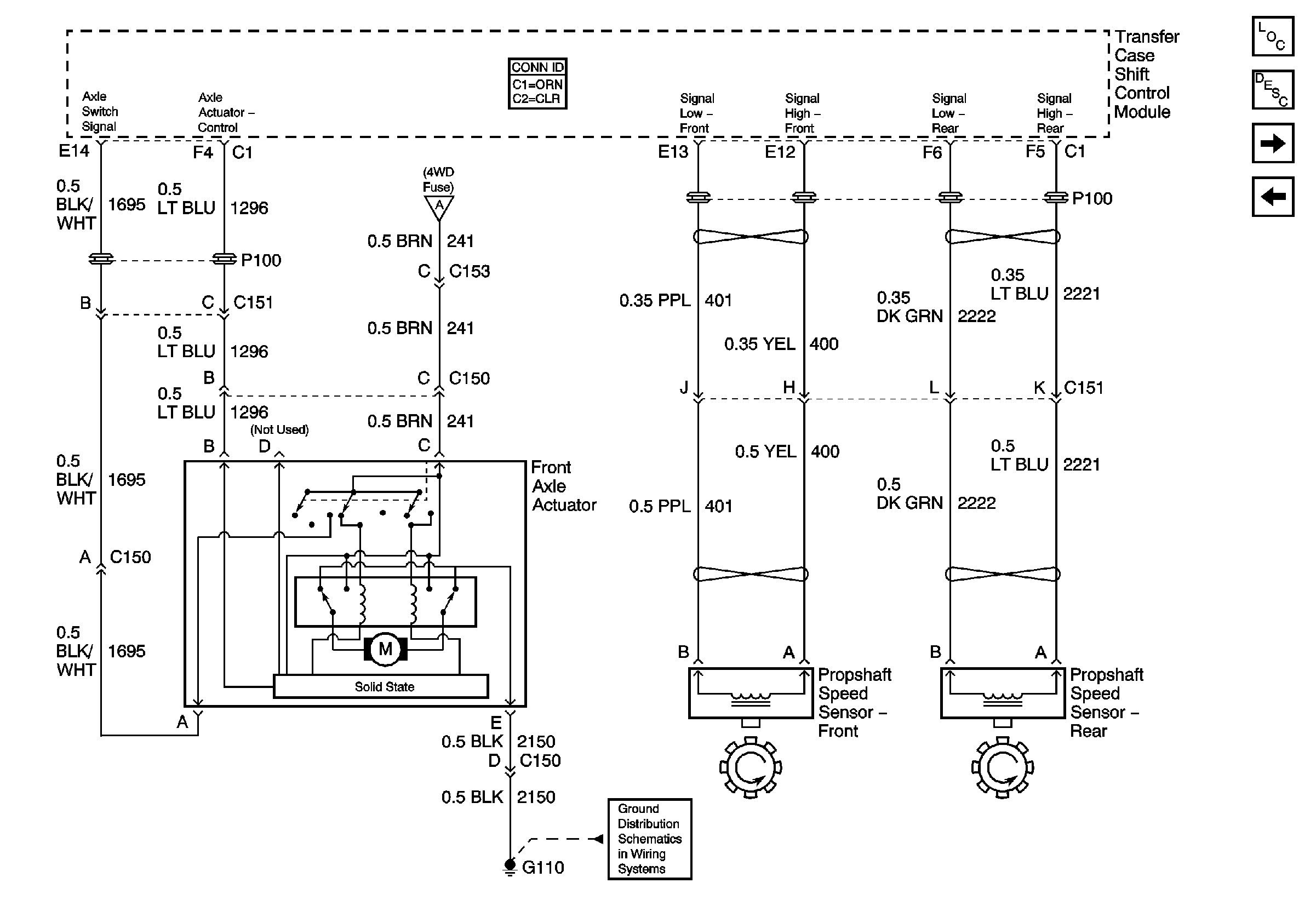
Propshaft Speed Sensors and Front Axle Actuator
4WD, HVAC 1, and IGN 3 Fuses
4WD, HVAC 1, and IGN 3 Fuses
SEO 1, SEO 2, RR HVAC, EXP LPS, ATC, and RR WPR
Propshaft Speed Sensors and Front Axle Actuator
G100 and G110
Figure
2:
Propshaft Speed Sensors and Front Axle Actuator
Master Electrical Component List
Transfer Case Description and Operation
Switch Inputs and Class 2
Power, Ground and Transfer Case Encoder Motor
Power, Ground and Transfer Case Encoder Motor
G100 and G110
Figure
3:
Switch Inputs and Class 2
Master Electrical Component List
Transfer Case Description and Operation
Propshaft Speed Sensors and Front Axle Actuator
IGN 1, TURN, SEO IGN, AIR BAG, CRANK, and IGN 0 Fuses
AUX PWR and HORN Fuses
Indicators
AUX PWR and HORN Fuses
AUX PWR and HORN Fuses
HVAC Control Module/Blower Control Switch, Traction Control Switch, and Transfer Case Shift Control Switch
Splice Pack SP205
G203 - 2 of 3 - Base Except Crew Cab
G203 - 2 of 3 - Uplevel and Crew Cab
G203 - 1 of 3
G203 - 1 of 3