GM Service Manual Online
For 1990-2009 cars only
Makes
🢒
Chevrolet
🢒
2004
🢒
Chevy K Silverado - 4WD
🢒
Transmission/Transaxle
🢒
Manual Transmission - NV 3500
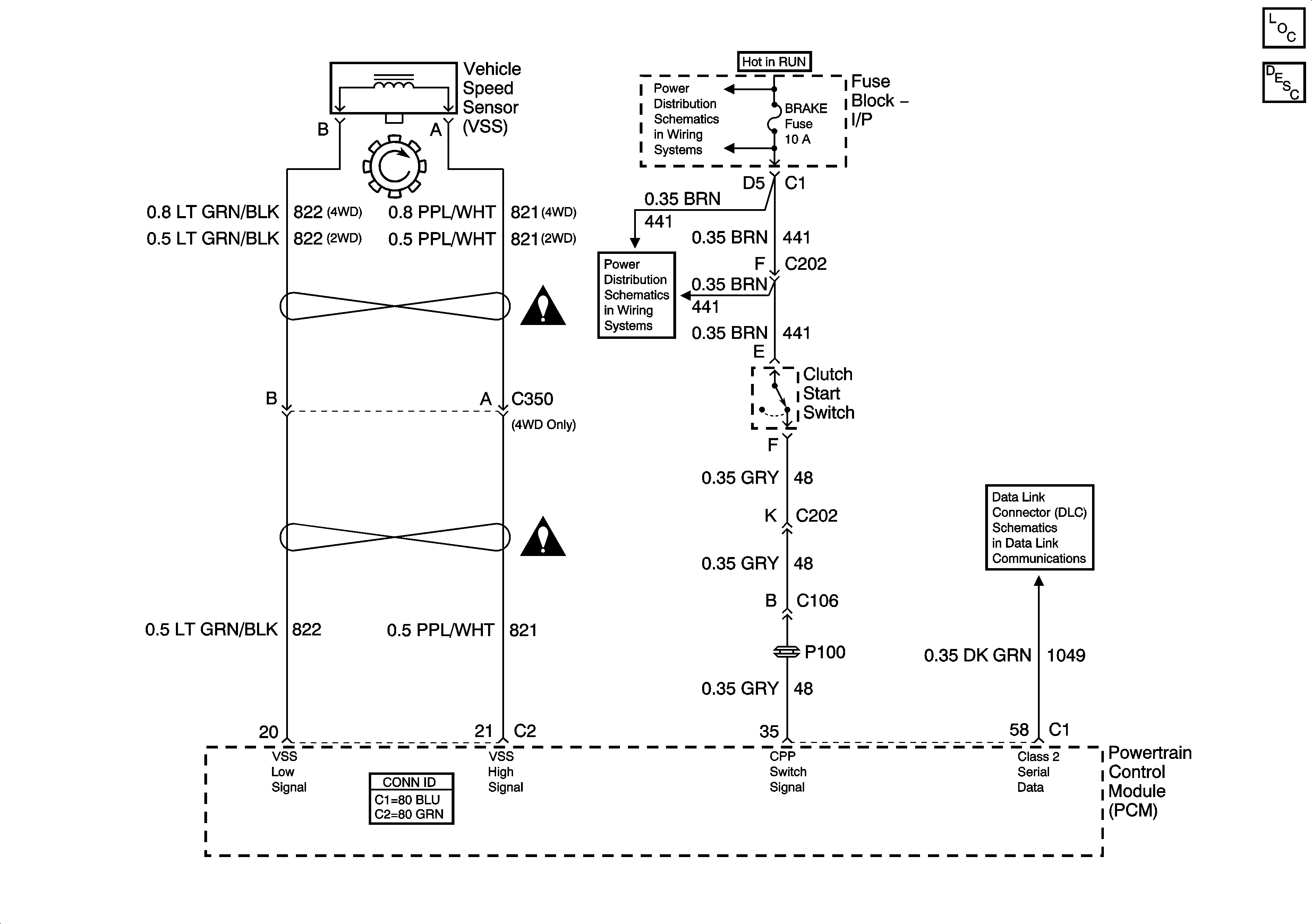
🢒 Manual Transmission Schematics
Master Electrical Component List
Transmission System Description and Operation
BRAKE, HTR/AC, and HVAC 1 Fuses
Manual Transmission Schematic Icons
BRAKE, HTR/AC, and HVAC 1 Fuses
Manual Transmission Schematic Icons
SP205 - 2 of 2