GM Service Manual Online
For 1990-2009 cars only
Makes
🢒
Chevrolet
🢒
2007
🢒
Chevy Suburban - 4WD
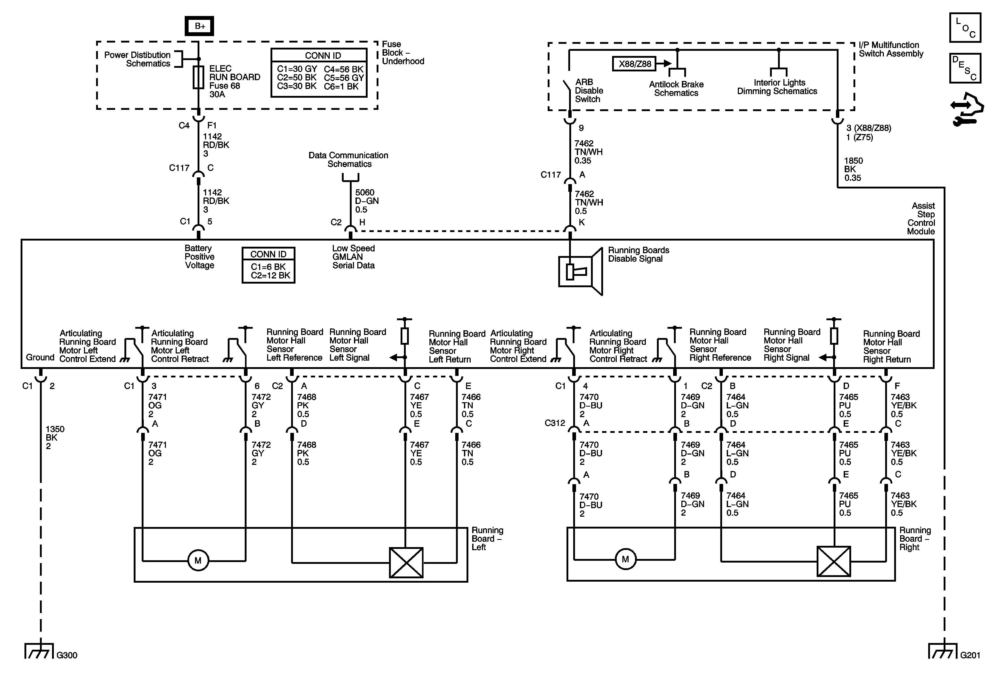
🢒 Running Board Schematics
Running Board Schematics
Master Electrical Component List
Object Detection Description and Operation
Control Module References
B+ Bus - 1 of 3
Low Speed Bus - SP200 - 1 of 3
Module Power, Ground, and Serial Data, Pump Motor and Brake Switch - JD9 Under 8600 GVW
LED Dimming - 3 of 3
G103, G110, and G111
G201