GM Service Manual Online
For 1990-2009 cars only
Makes
🢒
Chevrolet
🢒
2005
🢒
Cobalt
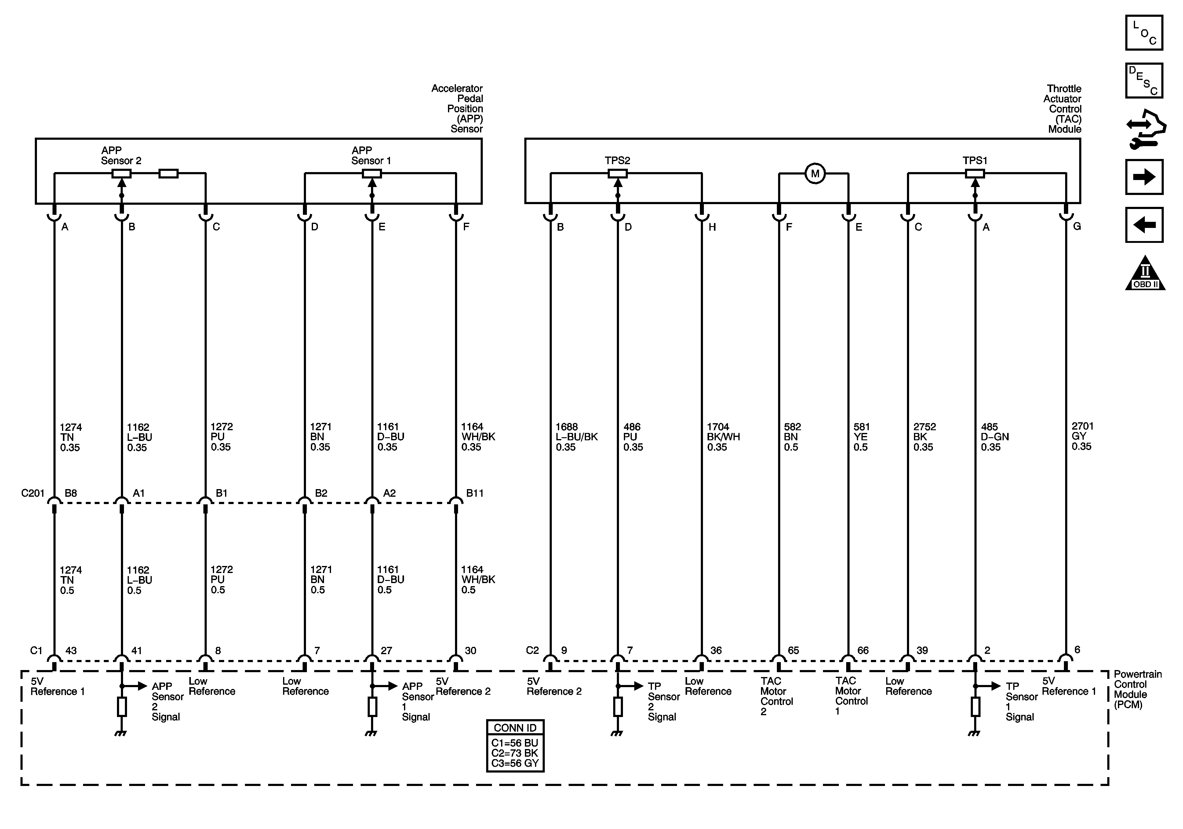
🢒 Engine Data Sensors - APP and TAC
Engine Data Sensors - APP and TAC
Engine Data Sensors - APP and TAC
Master Electrical Component List
Throttle Actuator Control (TAC) System Description
Control Module References
Ignition Controls
Engine Data Controls - HO2S
Engine Controls Schematic Icons