GM Service Manual Online
For 1990-2009 cars only
Makes
🢒
Chevrolet
🢒
2005
🢒
Cobalt
🢒 Data Link Communications
Data Link Communications
Data Link Communications
Master Electrical Component List
ABS Description and Operation
Control Module References
Power, Ground, and Wheel Speed Sensor
DLC Power, Ground, and Low Speed GMLAN
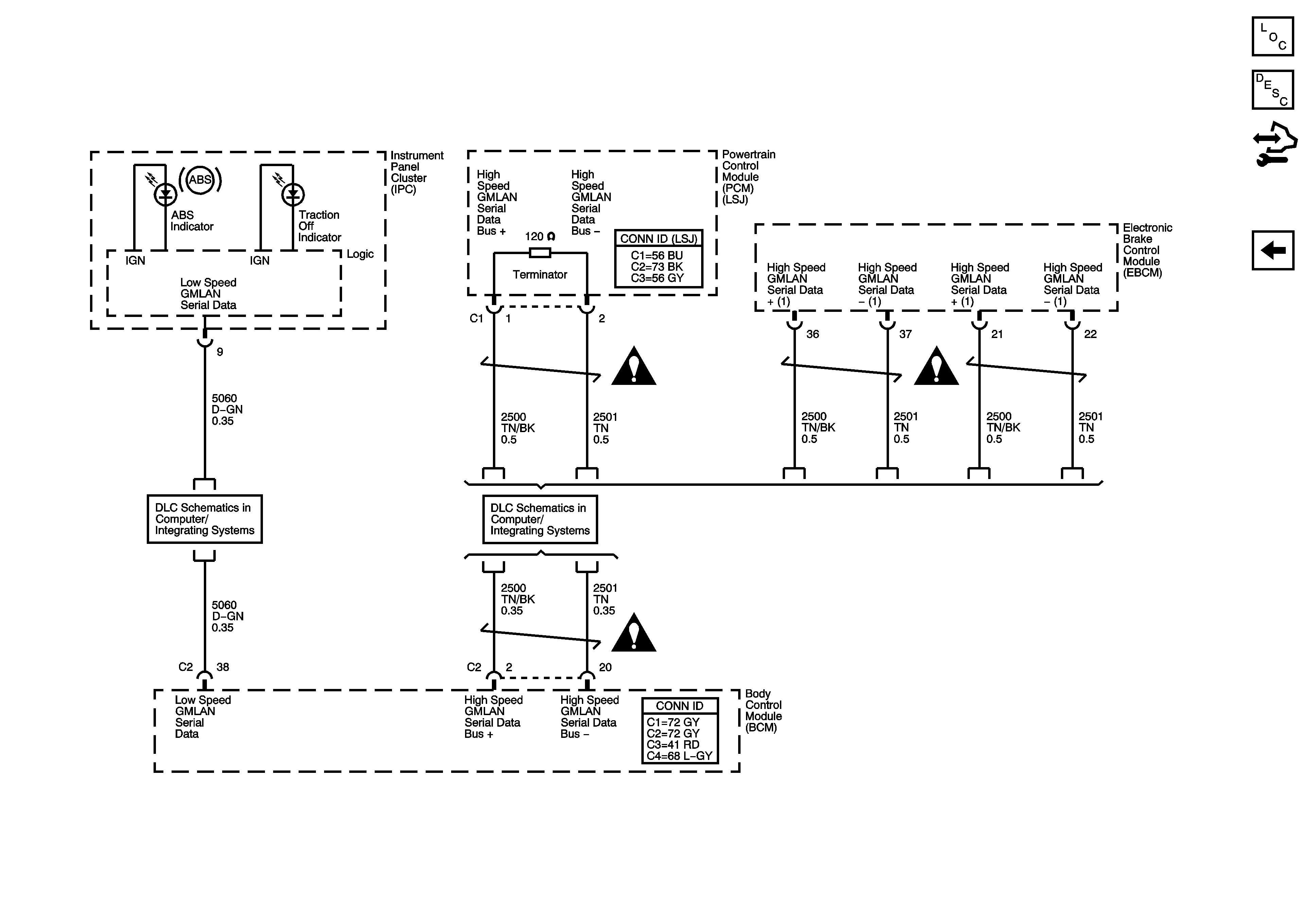
DLC High Speed, Serial Data, Class 2
Antilock Brake System Schematic Icons
Antilock Brake System Schematic Icons
Antilock Brake System Schematic Icons