GM Service Manual Online
For 1990-2009 cars only
Makes
🢒
Chevrolet
🢒
2005
🢒
Colorado Pickup - 2WD
🢒
Vehicle Control Systems
🢒
Vehicle DTC Information
🢒 Radio/Audio System Schematics
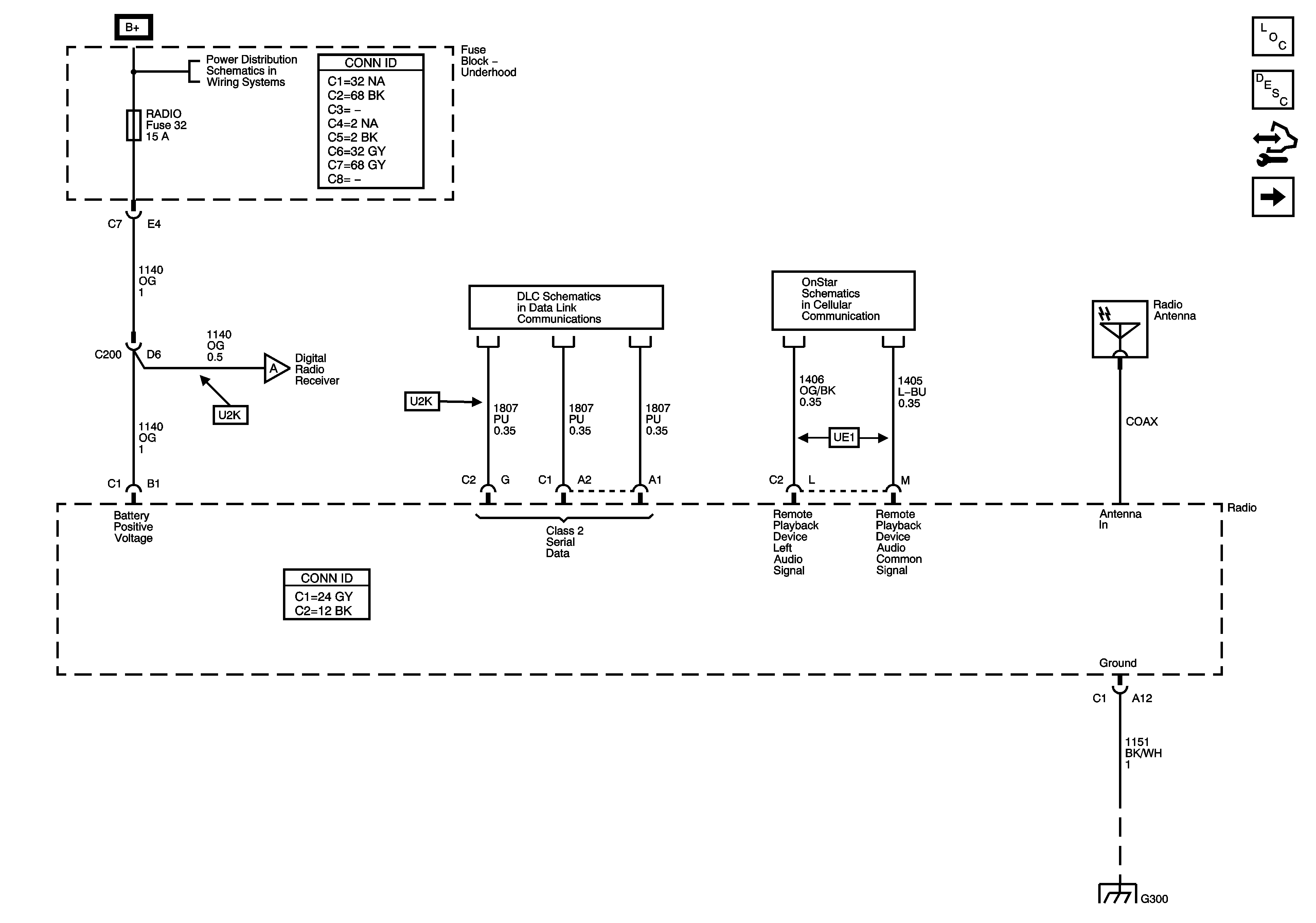
Figure
1:
Power, Ground, and DLC
Master Electrical Component List
Radio/Audio System Description and Operation
Body Control Module (BCM) Programming/RPO Configuration
Speakers
B+ Bus - Underhood Fuse Block
Digital Radio - U2K
Data Link Connector (DLC) Schematics
OnStar Schematics
G300, G301, G302, and G303
Figure
2:
Speakers
Master Electrical Component List
Radio/Audio System Description and Operation
Body Control Module (BCM) Programming/RPO Configuration
Digital Radio - U2K
Power, Ground, and DLC
Entertainment Schematic Icons
Entertainment Schematic Icons
Entertainment Schematic Icons
Entertainment Schematic Icons
Entertainment Schematic Icons
Entertainment Schematic Icons
Entertainment Schematic Icons
Entertainment Schematic Icons
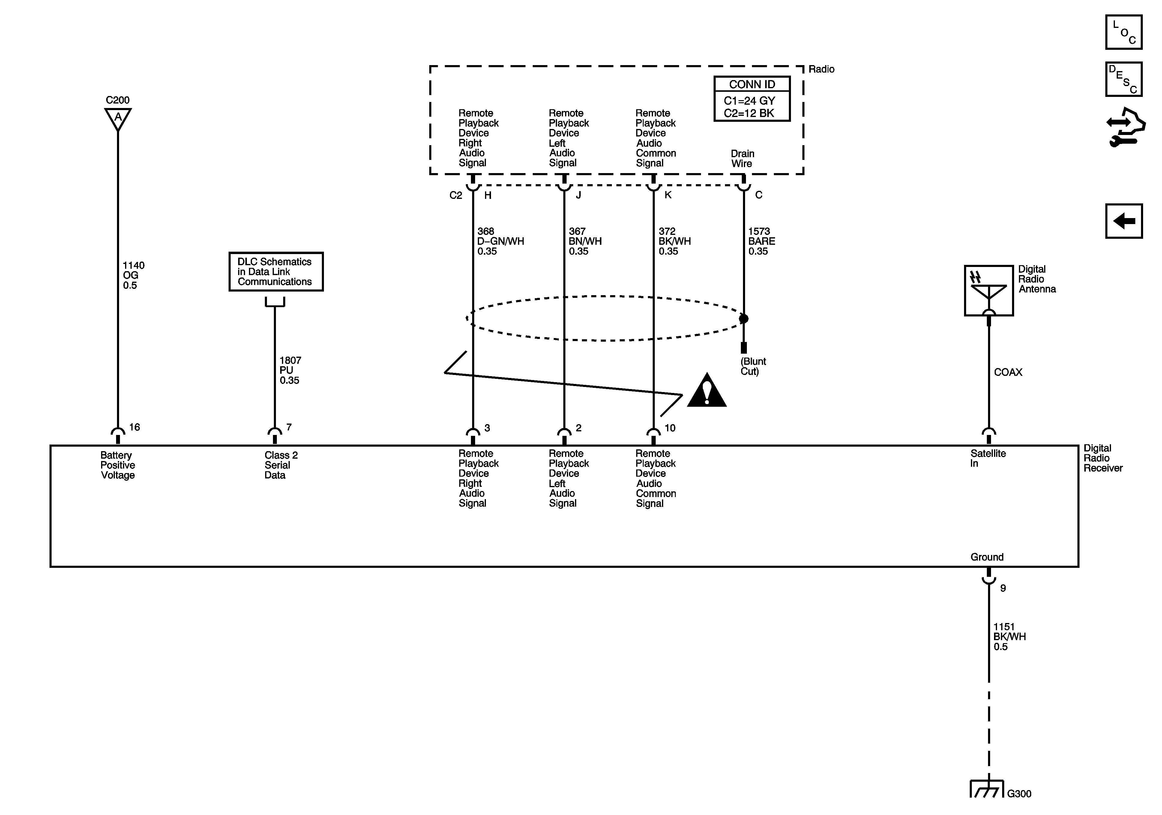
Figure
3:
Digital Radio - U2K
Master Electrical Component List
Radio/Audio System Description and Operation
Body Control Module (BCM) Programming/RPO Configuration
Speakers
Power, Ground, and DLC
Data Link Connector (DLC) Schematics
Entertainment Schematic Icons
G300, G301, G302, and G303