GM Service Manual Online
For 1990-2009 cars only
Makes
🢒
Chevrolet
🢒
2007
🢒
Colorado Pickup - 2WD
🢒
Safety and Security
🢒
Theft Deterrent
🢒 Theft Deterrent System Schematics
Master Electrical Component List
Content Theft Deterrent (CTD) Description and Operation
Body Control Module (BCM) Programming/RPO Configuration
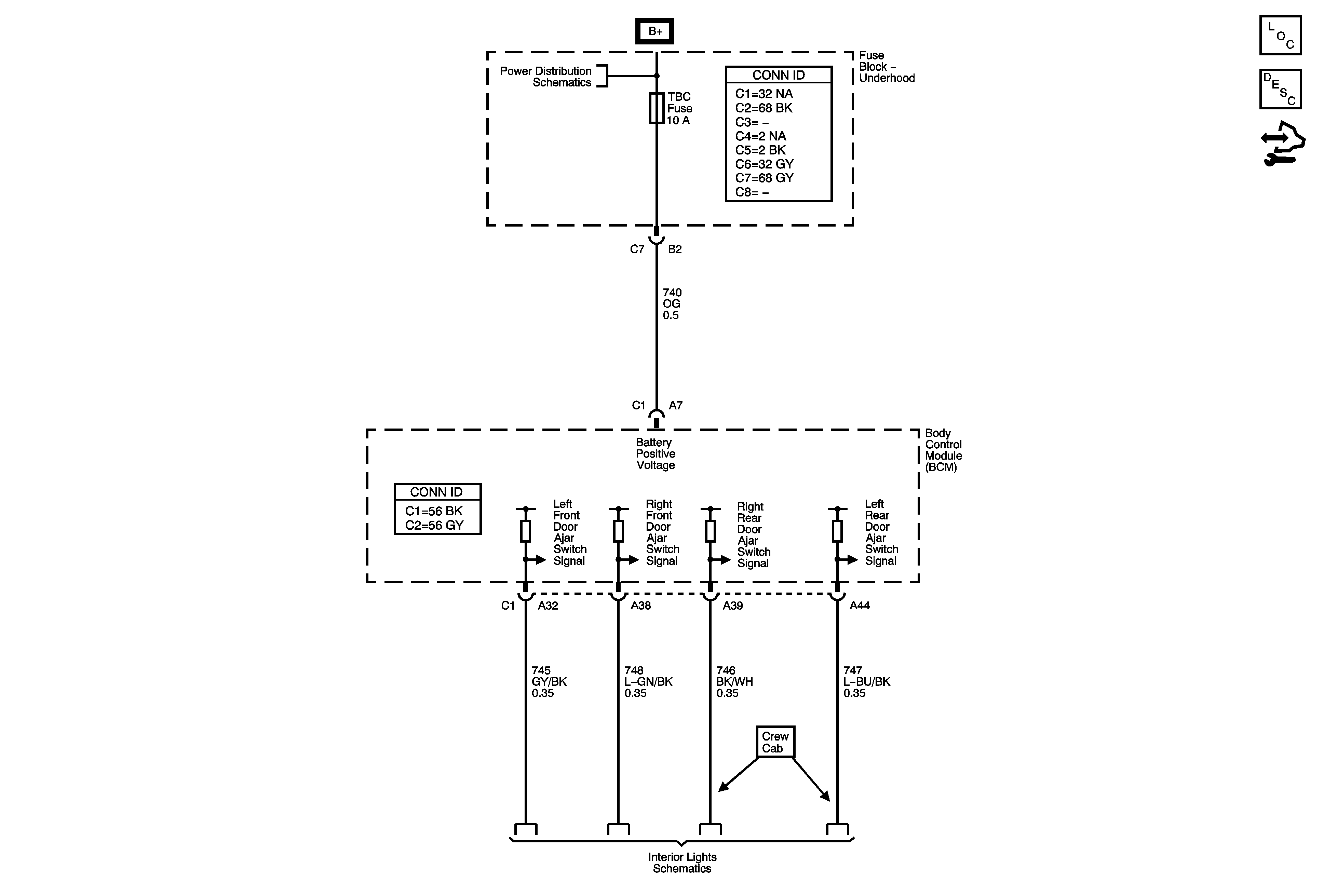
B+ Bus - Underhood Fuse Block
Door Jamb Switches