GM Service Manual Online
For 1990-2009 cars only
Table 1: TFP Manual Valve Position Switch Logic
Table 2: DTC P1810 Transmission Fluid Pressure Manual Valve Position Switch Circuit Malfunction

Object Number: 105587  Size: LF

Circuit Description

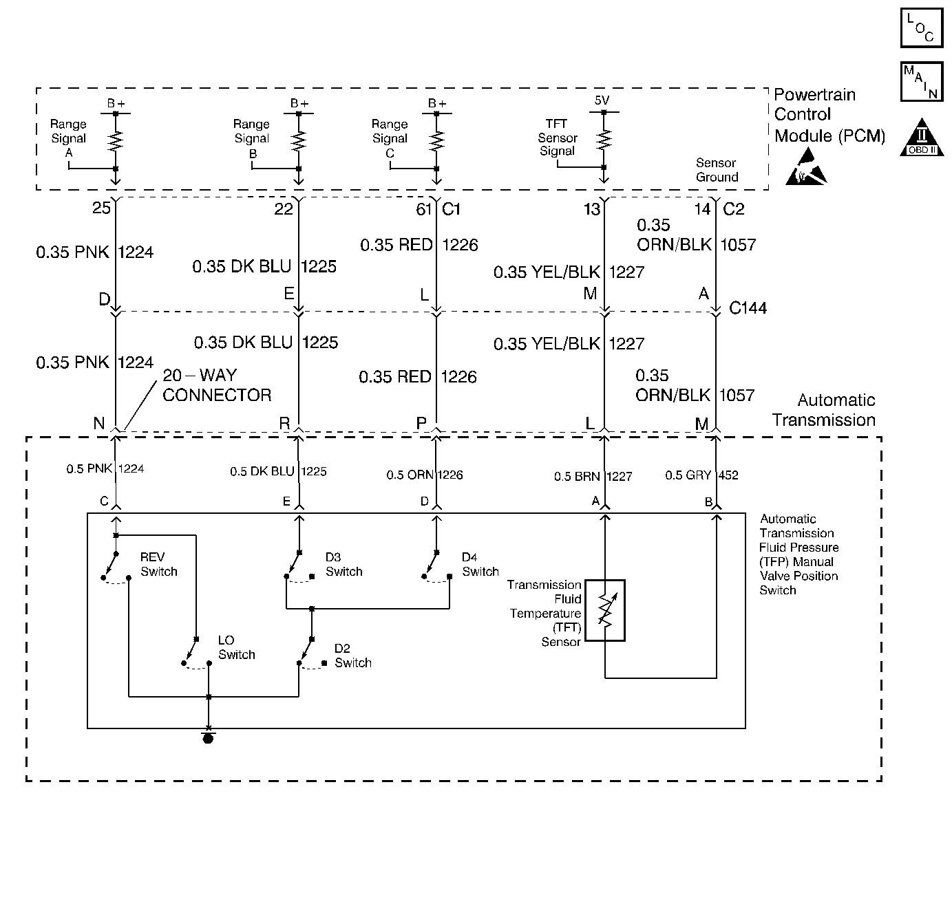
The Automatic Transmission Fluid Pressure Manual Valve Position Switch (TFP Val. Position Sw.) consists of five pressure switches (two normally-closed and three normally-open) and a Transmission Fluid Temperature (TFT) sensor combined into one unit. The combined unit mounts on the valve body.

The Powertrain Control Module (PCM) supplies the battery voltage for each range signal. By grounding one or more of the circuits through various combinations of the pressure switches, the PCM detects which manual valve position you select. The PCM compares the actual voltage combination of the switches to a TFP Val. Position Sw. combination chart stored in memory.

The TFP Val. Position Sw. cannot distinguish between Park and Neutral because the monitored valve body pressures are identical. With the engine OFF and the ignition switch in the RUN position, the TFP Val. Position Sw. indicates Park/Neutral. Disconnecting the transmission 20-way connector removes the ground potential for the three range signals to the PCM. In this case, with the engine OFF, and the ignition switch in the RUN position, D2 will be indicated.

When the PCM detects an invalid state of the TFP Val. Position Sw. or the TFP Val. Position Sw. circuit by deciphering the TFP Val. Position Sw. inputs, then DTC P1810 sets. DTC P1810 is a type B DTC.

Conditions for Setting the DTC

DTC P1810 sets if any of the following Conditions occurs two consecutive times:

Condition 1 detects an illegal switch combination.

Condition 2 detects D2, D4 or Rev during an engine start.

Condition 3 detects Park or Neutral when the vehicle should be in D4.

Condition 1

    • The system voltage is 10-18 volts.
    • The engine speed is greater than 450 RPM for 8 seconds.
    • Not in fuel cutoff.
    • The PCM detects an illegal TFP Val. Position Sw. state.
    • All conditions met for 60 seconds

Condition 2

    • No VSS Assy. DTCs P0502 or P0503.
    • The system voltage is 10-18 volts.
    • The engine speed is less than 80 RPM for 0.1 second; then
       - the engine speed is 80-550 RPM for 0.06875 second; then
       - the engine speed is greater than 550 RPM.
    • The vehicle speed is less than 3 km/h (2 mph).
    • The detected gear range is D2, D4 or Rev.
    • All conditions met for 5 seconds

Condition 3

    • No VSS Assy. DTCs P0502 or P0503.
    • The selected gear range is D4.
    • The engine speed is greater than 450 RPM for 8 seconds.
    • Not in fuel cutoff.
    • The speed ratio is 0.65-0.8 (the speed ratio is the engine speed divided by the transmission output speed).
    • The system voltage is 10-18 volts.
    • The TP angle is 8-35%.
    • The engine torque is 40-400 lbs ft.
    • The engine vacuum is 0-105 kPa.
    • The TCC is locked ON.
    • The detected gear range is Park/Neutral.
    • All conditions met for 10 seconds

Action Taken When the DTC Sets

    • The PCM illuminates the Malfunction Indicator Lamp (MIL).
    • The PCM commands D2 line pressure.
    • The PCM commands a D4 shift pattern.
    • The PCM freezes shift adapts from being updated.
    • DTC P1810 stores in PCM history.

Conditions for Clearing the MIL/DTC

    • The PCM turns OFF the MIL after three consecutive trips without a failure reported.
    • A scan tool can clear the DTC from the PCM history. The PCM clears the DTC from the PCM history if the vehicle completes 40 warm-up cycles without a failure reported.
    • The PCM cancels the DTC default actions when the fault no longer exists and the ignition is OFF long enough in order to power down the PCM.

Diagnostic Aids

    • Refer to the TFP Val. Position Sw. Logic Table for the normal range signals and the illegal combinations. In the table, ON is 0 volts, OFF is 12 volts.
    • Inspect the wiring at the PCM, the transmission 20-way connector and all other circuit connecting points for the following conditions:
       - A bent terminal
       - A backed out terminal
       - A damaged terminal
       - Poor terminal tension
       - A chafed wire
       - A broken wire inside the insulation
       - Moisture intrusion
       - Corrosion
    • When diagnosing for an intermittent short or open condition, massage the wiring harness while watching the test equipment for a change.
    • Refer to Automatic Transmission Fluid Pressure Manual Valve Position Switch Resistance Check or Functional Test Procedure for further information.

TFP Manual Valve Position Switch Logic

Gear Position

Range Signal A

Range Signal B

Range Signal C

Park

OFF

ON

OFF

Reverse

ON

ON

OFF

Neutral

OFF

ON

OFF

D4

OFF

ON

ON

D3

OFF

OFF

ON

D2

OFF

OFF

OFF

D1

ON

OFF

OFF

Illegal

ON

OFF

ON

Illegal

ON

ON

ON

Test Description

The numbers below refer to the step numbers on the diagnostic table.

  1. This step compares the indicated range signal to the manual valve range actually selected.

  2. This step tests for correct voltage from the PCM to the transmission 20-way connector.

DTC P1810 Transmission Fluid Pressure Manual Valve Position Switch Circuit Malfunction

Step

Action

Value(s)

Yes

No

1

Was the Powertrain On-Board Diagnostic (OBD) System Check performed?

--

Go to Step 2

Go to Powertrain OBD System Check

2

Perform the following inspections:

    • Ensure that the transmission linkage from the select lever to the manual valve is adjusted properly.
    • Perform the Transmission Fluid Checking Procedure.

Did you perform the inspections?

--

Go to Step 3

--

3

  1. Install the Scan Tool .
  2. With the engine OFF, turn the ignition switch to the RUN position.
  3. Important: Before clearing the DTC(s), use the scan tool in order to record the Freeze Frame and Failure Records for reference. Using the Clear Info function will erase the stored Freeze Frame and Failure Records from the PCM.

  4. Record the DTC Freeze Frame and Failure Records, then clear the DTC(s).
  5. While the engine is idling at normal operating temperature, apply the parking brake.
  6. Select each transmission range: P, R, N, D4, D3, D2 and D1.

Does each selected transmission range match the scan tool TFP Switch A/B/C display?

Refer to the TFP Val. Position Sw. Logic Table.

--

Go to Diagnostic Aids

Go to Step 4

4

  1. Turn the ignition OFF.
  2. Disconnect the transmission 20-way connector (additional DTCs may set).
  3. Install the J 39775 Jumper Harness on the engine side of the transmission 20-way connector.
  4. With the engine OFF, turn the ignition switch to the RUN position.
  5. Using the J 39200 Digital Multimeter and J 35616-A Connector Test Adapter Kit, check the voltage at connector terminals N, R, and P.

Is B+ displayed on all three circuits?

--

Go to Step 6

Go to Step 5

5

Inspect the circuits that did not indicate B+ for an open or short to ground.

Repair the circuits if necessary.

Refer to General Electrical Diagnosis Procedures.

Did you find an open or short to ground condition?

--

Go to Step 9

Go to Step 7

6

In order to verify that circuit 1224, circuit 1225 and circuit 1226 are not shorted together, use a fused jumper to ground on each circuit while monitoring the scan tool TFP Switch A/B/C display.

When a range signal circuit is grounded, are any other range signal circuits affected?

--

Go to Step 8

Refer to Transmission Fluid Pressure Manual Valve Position Switch Resistance Check .

7

Replace the PCM.

Refer to PCM/TAC Module Replacement.

Is the replacement complete?

--

Go to Step 9

--

8

Repair the affected wiring as necessary.

Refer to General Electrical Diagnosis Procedures.

Is the repair complete?

--

Go to Step 9

--

9

In order to verify your repair, perform the following procedure:

  1. Select DTC.
  2. Select Clear Info.
  3. Operate the vehicle under the following conditions:
  4. 3.1. With the engine OFF, turn the ignition switch to the RUN position for at least 2 seconds.
    3.2. Start the vehicle and idle for 5 seconds.
    3.3. Drive in D4 until the TCC locks for 10 seconds.
    3.4. The engine must be running for at least 60 seconds from start up.
  5. Select Specific DTC. Enter DTC P1810.

Has the test run and passed?

--

System OK

Begin the diagnosis again. Go to Step 1