GM Service Manual Online
For 1990-2009 cars only

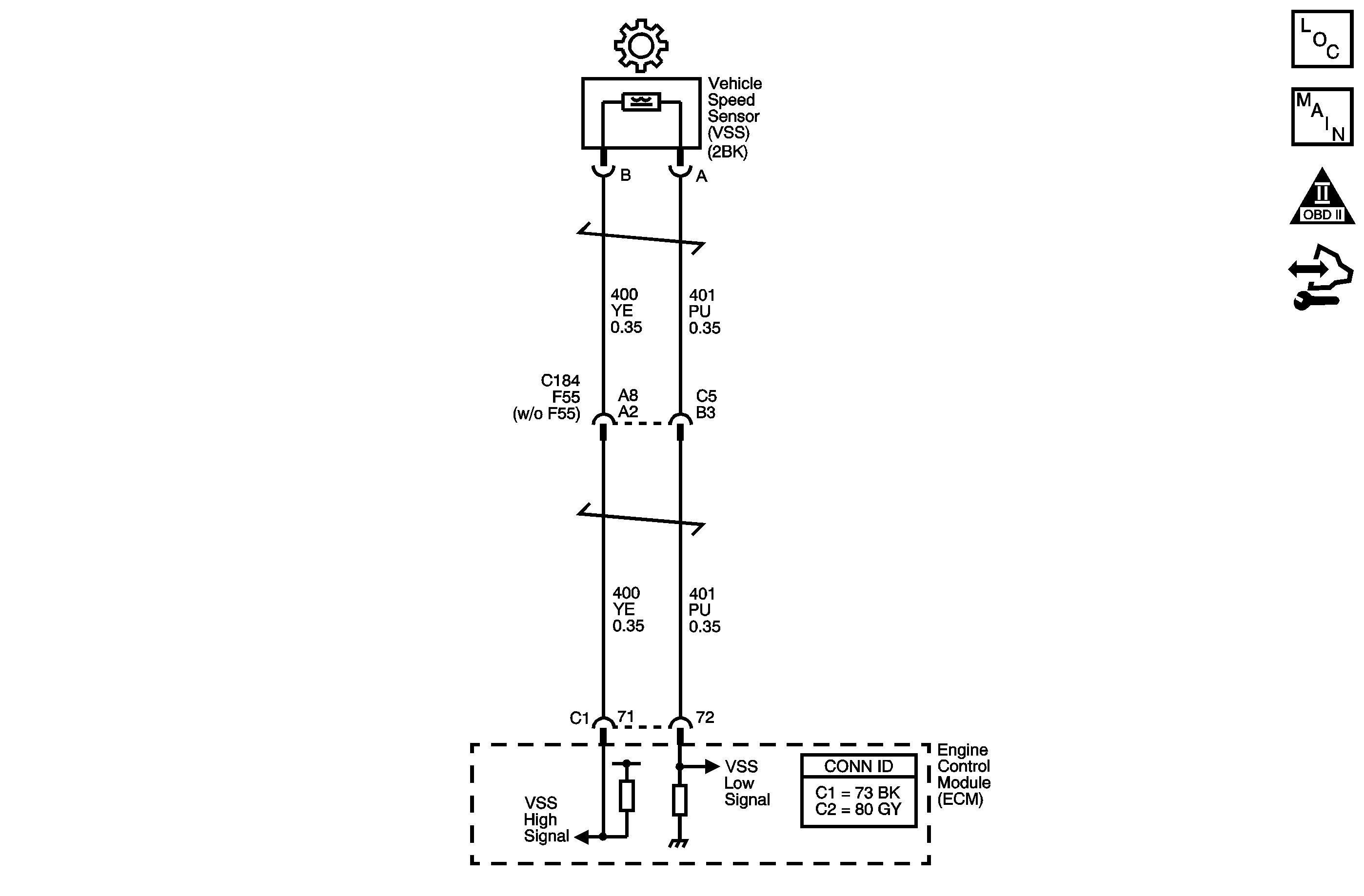
Object Number: 1617462  Size: MF
Master Electrical Component List
Manual Transmission Schematics
OBD II Symbol Description Notice
Control Module References

Circuit Description

Vehicle speed information is provided to the engine control module (ECM) by the vehicle speed sensor (VSS). The VSS is a permanent magnet generator that is mounted on the transmission and produces a pulsing voltage. The AC voltage amplitude and frequency increases with vehicle speed. The ECM converts the pulsing voltage into km/h (mph). The ECM supplies the necessary signal to the instrument panel for speedometer, odometer operation and to the cruise control module. The ECM also supplies the signal to the body control module (BCM), and the electronic suspension control module, if equipped.

If the ECM detects a vehicle speed drop for 6 seconds, DTC P0503 sets. DTC P0503 is a type B DTC.

DTC Descriptor

This diagnostic procedure supports the following DTC:

DTC P0503 Vehicle Speed Sensor (VSS) Circuit Intermittent

Conditions for Running the DTC

    • No MAP sensor DTC P0106.
    • No idle control system DTCs P0506 or P0507.
    • No TP sensor DTCs P0120 or P0220.
    • The vehicle speed is greater than 13 km/h (8 mph) for 6 seconds and has not increased by 6 km/h (4 mph) or greater for at least 0.5 seconds.
    • All conditions are met for more than 6 seconds.

Conditions for Setting the DTC

The ECM detects a vehicle speed drop for 6 seconds.

Action Taken When the DTC Sets

    • The ECM illuminates the malfunction indicator lamp (MIL) during the second consecutive trip in which the Conditions for Setting the DTC are met.
    • The ECM disables Cruise Control.
    • The ECM commands the coolant fan ON.
    • The ECM records the operating conditions when the Conditions for Setting the DTC are met. The ECM stores this information as Freeze Frame and Failure Records.
    • The ECM stores DTC P0503 in ECM history during the second consecutive trip in which the Conditions for Setting the DTC are met.

Conditions for Clearing the MIL/DTC

    • The ECM turns OFF the MIL during the third consecutive trip in which the diagnostic test runs and passes.
    • A scan tool can clear the MIL/DTC.
    • The ECM clears the DTC from ECM history if the vehicle completes 40 warm-up cycles without an emission-related diagnostic fault occurring.
    • The ECM cancels the DTC default actions when the fault no longer exists and the DTC passes.

Diagnostic Aids

Ensure the VSS is correctly torqued to the transmission housing.

Test Description

The numbers below refer to the step numbers on the diagnostic table.

  1. The vehicle speed detector in the ECM and the VSS are matched in such a way that an open or a short to ground in the VSS low signal circuit will not usually cause a loss of speed signal or a DTC P0503 to set.

  2. This step isolates the short between the VSS and the wiring.

  3. The DMM will detect AC voltage if the VSS high signal circuit is shorted to ground.

Step

Action

Value(s)

Yes

No

1

Did you perform the Diagnostic System Check - Vehicle?

--

Go to Step 2

Go to Diagnostic System Check - Vehicle

2

    Notice: In order to avoid damage to the drive axles, support the lower control arms in the normal horizontal position. Do not run the vehicle in gear with the wheels hanging down at full travel.

  1. Install a scan tool.
  2. Turn ON the ignition with the engine OFF.
  3. Important: Record the Freeze Frame and Failure Records before clearing the DTCs. Using the Clear Info function erases the Freeze Frame and Failure Records from the ECM.

  4. Record the DTC Freeze Frame and Failure Records.
  5. Clear the DTC.
  6. Raise the drive wheels.
  7. Start the engine.
  8. Allow the engine to idle in gear.

Does the scan tool display vehicle speed above the specified value?

0 km/h (0 mph)

Go to Step 3

Go to Step 4

3

  1. Turn OFF the ignition.
  2. Turn ON the ignition, with the engine OFF.
  3. Review the Freeze Frame data and note the parameters.
  4. Start the engine.
  5. Operate the vehicle within the Freeze Frame Conditions and the Conditions for Running the DTC.

Does the scan tool display vehicle speed above the specified value?

0 km/h (0 mph)

Go to Testing for Intermittent Conditions and Poor Connections

Go to Step 4

4

  1. Turn OFF the ignition.
  2. Disconnect the ECM.
  3. Measure the resistance between the VSS low signal and the VSS high signal circuits.

Is the resistance within the specified range?

966-2,200 ohms

Go to Step 6

Go to Step 5

5

Test the VSS high signal circuit and the VSS low signal circuit for the following conditions:

    • An open circuit or high resistance condition
    • VSS high signal circuit and VSS low signal circuit shorted together

Refer to Circuit Testing .

Did you find and correct the condition?

--

Go to Step 14

Go to Step 10

6

Measure the resistance between the VSS high signal circuit and ground.

Is the resistance greater than the specified value?

50 K ohms

Go to Step 9

Go to Step 7

7

  1. Leave the DMM connected between the VSS high signal circuit and ground.
  2. Disconnect the VSS.
  3. Measure the resistance between the VSS high signal circuit and ground.

Is the resistance greater than the specified value?

50 K ohms

Go to Step 10

Go to Step 8

8

Repair the short to ground in the VSS high signal circuit. Refer to Testing for Short to Ground and Wiring Repairs .

Did you complete the repair?

--

Go to Step 14

--

9

  1. Connect the DMM between the VSS low signal and the VSS high signal circuits.
  2. Measure the AC voltage with the DMM while rotating the drive wheels by hand.

Is the AC voltage equal to or greater than the specified value?

0.5 V

Go to Step 11

Go to Step 10

10

  1. Remove the VSS.
  2. Refer to Vehicle Speed Sensor Replacement .

  3. Inspect the VSS and the VSS rotor for the following conditions:
  4. • VSS damage
    • VSS rotor damage
    • Excessive air gap between the VSS rotor and the VSS
    • Incorrect alignment between the VSS and the VSS rotor
  5. Repair or replace any of the above items as necessary.

Did you find and correct the condition?

--

Go to Step 14

Go to Step 12

11

Test the high signal circuit of the VSS for a short to voltage. refer to Testing for a Short to Voltage and Wiring Repairs .

Did you find and correct the condition?

--

Go to Step 14

Go to Step 13

12

Replace the VSS. Refer to Vehicle Speed Sensor Replacement .

Did you complete the repair?

--

Go to Step 14

--

13

Replace the ECM. Refer to Control Module References for replacement, setup, and programming.

Is the action complete?

--

Go to Step 14

--

14

Perform the following procedure in order to verify the repair:

  1. Select DTC.
  2. Select Clear Info.
  3. Operate the vehicle in order to achieve a vehicle speed of greater than 3 km/h (2 mph) for 2 seconds.
  4. Select Specific DTC.
  5. Enter DTC P0503.

Has the test run and passed?

--

Go to Step 15

Go to Step 2

15

With the scan tool, observe the stored information, capture info and DTC info.

Does the scan tool display any DTCs that you have not diagnosed?

--

Go to Diagnostic Trouble Code (DTC) List - Vehicle

System OK