GM Service Manual Online
For 1990-2009 cars only

Object Number: 1617472  Size: MF
Master Electrical Component List
Manual Transmission Schematics
OBD II Symbol Description Notice
Control Module References

Circuit Description

Important: This diagnostic procedure is for manual transmission vehicles with RPO VD1 and/or RPO Z06.

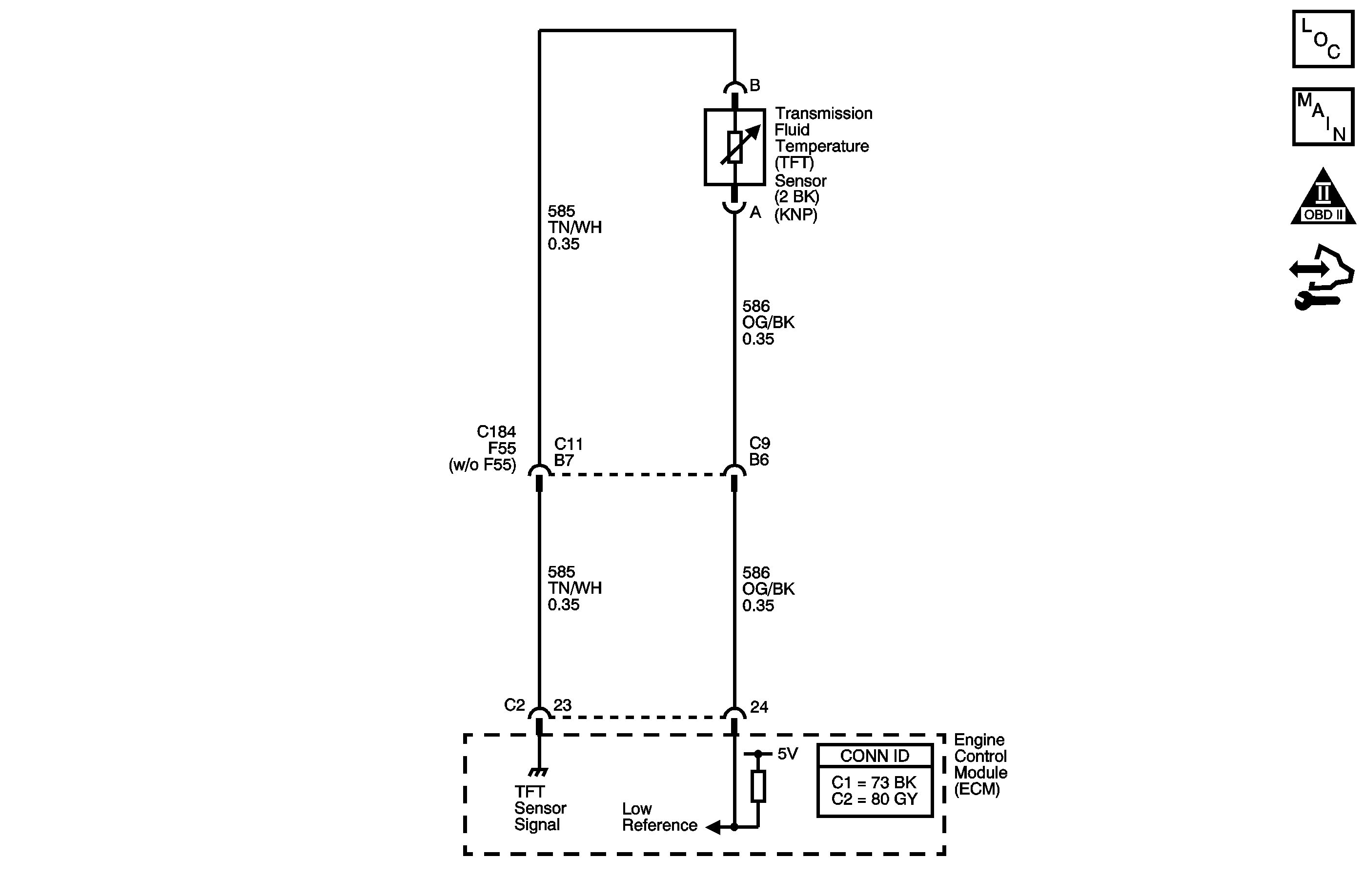
The transmission fluid temperature (TFT) sensor contains a semiconductor device which changes the resistance based on the temperature, a thermistor. The TFT sensor has a signal circuit and a ground circuit. The engine control module (ECM) applies a voltage, approximately 5 volts, on the signal circuit to the sensor. The ECM monitors the changes in this voltage caused by changes in the resistance of the sensor in order to determine he fluid temperature.

When the ECM senses a signal voltage lower than the normal operating range of the sensor, DTC P0712 sets. DTC P0712 is a type C DTC.

DTC Descriptor

This diagnostic procedure supports the following DTC:

DTC P0712 Transmission Fluid Temperature (TFT) Sensor Circuit Low Voltage

Conditions for Running the DTC

The engine speed is above 1,000 RPM for 7 seconds.

Conditions for Setting the DTC

    • The TFT is greater than 145°C (299°F).
    • All conditions are met for 5 seconds.

Action Taken When the DTC Sets

    • The ECM does not illuminate the malfunction indicator lamp (MIL).
    • The ECM records the operating conditions when the Conditions for Setting the DTC are met. The ECM stores this information as Failure Records.
    • The ECM stores DTC P0712 in ECM history.

Conditions for Clearing the DTC

    • A scan tool can clear the DTC.
    • The ECM clears the DTC from ECM history if the vehicle completes 40 warm-up cycles without a non-emission-related diagnostic fault occurring.
    • The ECM cancels the DTC default actions when the fault no longer exists and the DTC passes.

Diagnostic Aids

Important: 

   • Remove any debris from the ECM connector surfaces before servicing the ECM. Inspect the ECM connector gaskets when diagnosing/replacing the module. Ensure that the gaskets are installed correctly. The gaskets prevent contaminate intrusion into the ECM.
   • For any test that requires probing the ECM or a component harness connector, use the J 35616 GM terminal test kit. Using this kit prevents damage to the harness/component terminals. Refer to Using Connector Test Adapters .

    • If the engine has sat overnight, the TFT and the intake air temperature values should display within a few degrees of each other. If the temperatures are not within 3°C (5°F), refer to Temperature Versus Resistance .
    •  For an intermittent, refer to Symptoms - Engine Controls .

Test Description

The numbers below refer to the step numbers on the diagnostic table.

  1. This step determines if the malfunction is present.

  2. Using the Freeze Frame/Failure Records data may aid in locating an intermittent condition. If you cannot duplicate the DTC, the information included in the Freeze Frame/Failure Records data can help determine how many miles since the DTC set. The Fail Counter and Pass Counter can also help determine how many ignition cycles the diagnostic reported a pass and/or a fail. Operate the vehicle within the same freeze frame conditions, such as RPM, load, vehicle speed, temperature, that you observed. This will isolate when the DTC failed.

  3. A TFT below -30°C (-22°F) indicates the ECM and the TFT sensor wiring are OK.

  4. Disconnecting the ECM enables the DMM to test continuity of the circuits. This aids in locating an open or a shorted circuit.

  5. This step inspects for proper terminal tension/connections at the ECM harness before replacing the ECM.

Step

Action

Values

Yes

No

1

Did you perform the Diagnostic System Check - Vehicle?

--

Go to Step 2

Go to Diagnostic System Check - Vehicle

2

  1. Install a scan tool.
  2. Turn ON the ignition, with the engine OFF.
  3. Important: Record the Failure Records before clearing the DTCs. Using the Clear Info function erases the Failure Records from the ECM.

  4. Monitor the TFT sensor display on the Manual Trans Data List of the scan tool under Engine Controls.

Is the TFT sensor above the specified value?

150°C (302°F)

Go to Step 4

Go to Step 3

3

  1. Turn ON the ignition, with the engine OFF.
  2. Review the Failure Records data for this DTC and observe the parameters.
  3. Turn OFF the ignition for 15 seconds.
  4. Start the engine.
  5. Operate the vehicle within the conditions required for this diagnostic to run, and as close to the conditions recorded in the Failure Records as possible. Special operating conditions that you need to meet before the ECM will run this diagnostic, where applicable, are listed in Conditions for Running the DTC.
  6. Select the Diagnostic Trouble Code (DTC) option, the Specific DTC option, then enter the DTC number using the scan tool.

Does the scan tool indicate that the diagnostic failed this ignition?

--

Go to Step 4

Go to Diagnostic Aids

4

  1. Disconnect the TFT sensor electrical connector.
  2. Observe the TFT sensor display on the scan tool.

Is the TFT sensor below the specified value?

-30°C (-22°F)

Go to Step 6

Go to Step 5

5

  1. Turn OFF the ignition.
  2. Disconnect the ECM connector C2.
  3. Test the TFT sensor signal circuit for a short to a ground. Refer to Testing for Short to Ground .
  4. If you find the TFT sensor signal circuit is grounded, repair the circuit as necessary. Refer to Wiring Repairs .

Did you find and correct the condition?

--

Go to Step 8

Go to Step 7

6

Replace the TFT sensor.

Refer to Transmission Fluid Temperature Sensor Replacement .

Is the action complete?

--

Go to Step 8

--

7

Replace the ECM. Refer to Control Module References for replacement, setup, and programming.

Is the action complete?

--

Go to Step 8

--

8

Perform the following procedure in order to verify the repair:

  1. Select DTC.
  2. Select Clear Info.
  3. Operate the vehicle under the following conditions:
  4. • Turn ON the ignition, with the engine OFF.
    • The Trans. Fluid Temp. must be 144°C (291°F) or less for 10 seconds.
  5. Select Specific DTC.
  6. Enter DTC P0712

Has the test run and passed?

--

Go to Step 9

Go to Step 2

9

With the scan tool, observe the stored information, capture info and DTC info.

Does the scan tool display any DTCs that you have not diagnosed?

--

Go to Diagnostic Trouble Code (DTC) List - Vehicle

System OK