GM Service Manual Online
For 1990-2009 cars only
Makes
🢒
Chevrolet
🢒
2008
🢒
Epica
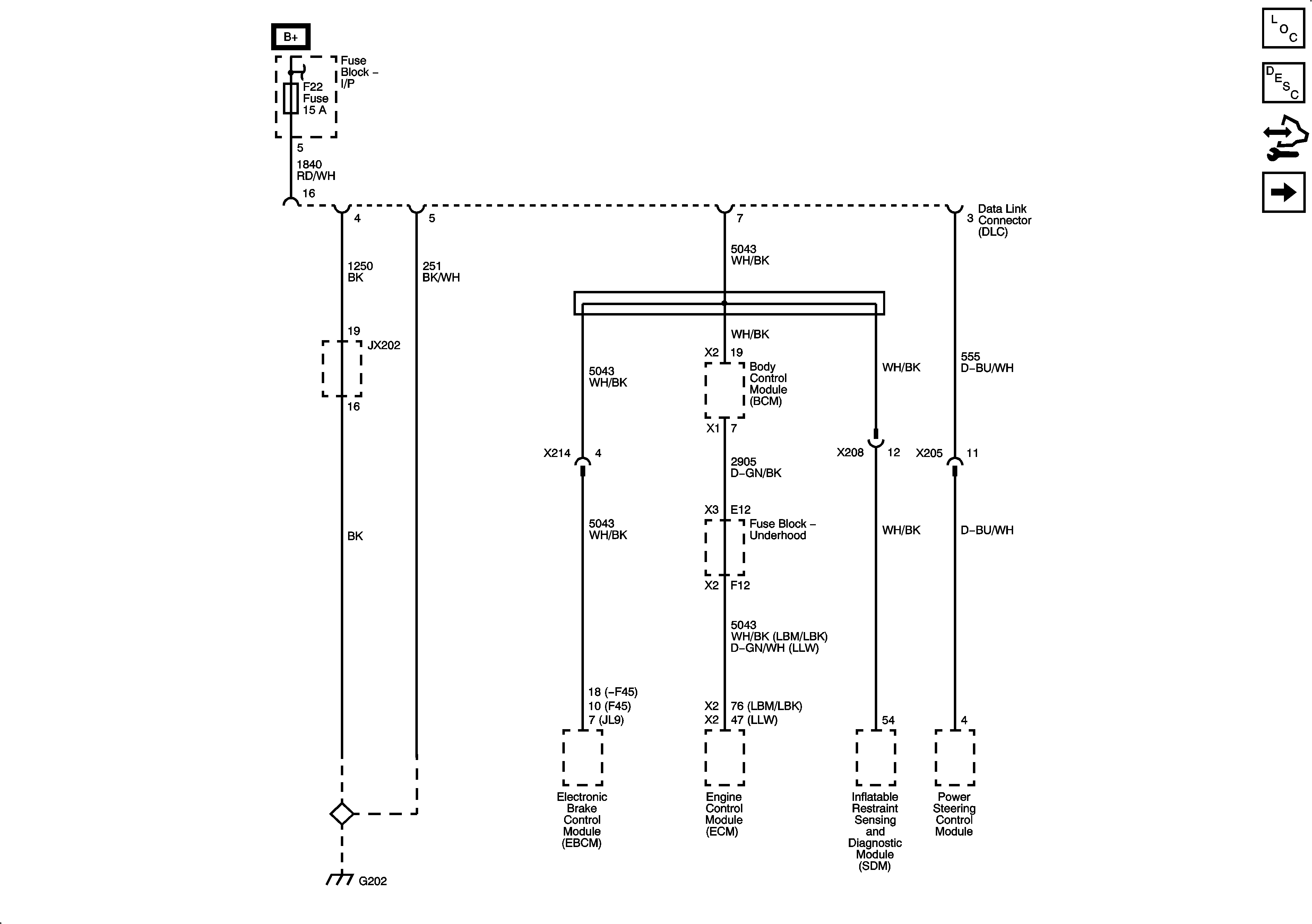
🢒 Power, Ground, Class 2
Power, Ground, Class 2
Power, Ground, Class 2
Master Electrical Component List
Data Link Communications Description and Operation
Control Module References
High Speed GMLAN - M98 (LHD)
Fuse Block - I/P F8, F9, F15, F22, F23 Fuses
G202, 2 of 2